Église Saint-Léger de Cheylade
L'église Saint-Léger de Cheylade, petite commune française du Cantal, est un édifice religieux de style roman érigé au XIIe siècle, ruiné pendant la guerre de Cent Ans, rebâti et remanié à plusieurs reprises entre le XVe et le XVIIe siècles, puis retouché encore au XIXe.
Consacrée à Léger d'Autun et vouée au culte catholique, l'église a longtemps appartenu à l'évêché de Clermont mais dépend depuis la Révolution française du diocèse de Saint-Flour.
De conception et de dimension modestes, elle est comme beaucoup d'églises de la région construite en pierre volcanique, avec une toiture en lauzes. Si l'intérieur, presque sans ornements sculptés, compte très peu de meubles ou œuvres d'art remarquables, il se distingue en revanche par un plafond à caissons de bois tout à fait original : 1 360 carrés peints probablement au XVIIIe siècle de motifs polychromes, d'une facture naïve mais imprégnés de symboles chrétiens. Ce sont ces peintures, réalisées sur les trois voûtes par un artiste anonyme, qui ont permis en 1963 le classement de l'église Saint-Léger de Cheylade aux monuments historiques.
Historique
L'histoire de l'église Saint-Léger de Cheylade reste semée d'incertitudes en dépit de quelques recherches dont le fascicule que lui a consacré en 2004 l'association Valrhue[alpha 1] offre le bilan le plus récent.
De l'église primitive à l'édifice roman
Si l'existence à Cheylade d'une église chrétienne antérieure est attestée, seule la construction de l'édifice roman est datée de façon à peu près sûre du début du XIIe siècle.

La christianisation de la Gaule s'est étendue à l'Auvergne, sans doute grâce à Austremoine de Clermont, entre le IIIe et le IVe siècle. La vallée de Cheylade est mentionnée dans les fausses chartes rédigées vers le XIe siècle par lesquelles Théodechilde, petite-fille de Clovis, était censée, cinq siècles auparavant, avoir réglé un différend entre le prieuré de Mauriac et l'abbaye Saint-Pierre-le-Vif de Sens : un village existait sûrement là au VIe siècle mais rien ne prouve que ce territoire reculé ait alors déjà bénéficié d'un lieu de culte[2].
Au cours du IXe en revanche, les conditions paraissent réunies : la population éparse de la vallée de la Petite Rhue a suffisamment augmenté pour justifier une église paroissiale aux yeux de l'évêché[3], et les seigneurs de « Chaszlada »[alpha 2], issus de la puissante famille de Nonette, ont les moyens d'en financer la construction[2],[5]. L'existence d'une église à Cheylade autour de l'an 900 semble confirmée par le cartulaire de Sauxillanges : il inclut en effet une copie de l'acte par lequel le chevalier Étienne 1er fait don à cette abbaye clunisienne, lorsqu'il s'y fait moine en 1029, de l'église de Cheylade et de « tout ce qui s'y rattache visiblement », qu'il a hérité de son père puis transmis à ses fils, qui confirmeront la donation[6],[7]. Dédié à l'évêque martyr saint Léger en raison sans doute de sa notoriété dans la région[alpha 3], ce premier édifice paraît être rapidement devenu trop petit[9].
L'histoire de l'église romane qui l'a remplacé n'est guère mieux connue. Elle a été bâtie, sinon à la charnière des XIe et XIIe siècles[8], du moins au début de celui-ci, tandis que les seigneurs de Cheylade gagnaient le titre de Comptours de Valrus[10]. Construite en roches volcaniques de la vallée[11], elle se composait probablement d'une nef centrale, de deux collatéraux voûtés en quart de cercle, et d'un chœur flanqué de deux absidioles ne communiquant pas avec lui : ouvertes avant la fin de la période médiévale, ces absidioles en cul-de-four constituent, avec le chœur en berceau légèrement brisé typique de l'arrondissement de Mauriac, avec l'abside et son chevet rectangulaire, avec quelques chapiteaux à entrelacs et cordelettes ainsi qu'avec une partie du mur nord, ce qui subsiste encore du XIIe siècle[12],[13].
Destructions et reconstructions
Outre l'usure naturelle, l'église romane de Cheylade a pâti d'un contexte historique troublé, d'où plusieurs restaurations, accompagnées d'ajouts architecturaux[10].
Jusqu'à la fin du XIVe siècle, en pleine guerre de Cent Ans et en dépit du traité de Brétigny, des bandes armées anglaises écument l'Auvergne, occupant dès 1357 la vallée de la Petite Rhue. Cette insécurité, qui profite aux exactions d'autres pillards, est par ailleurs renforcée par les conflits féodaux locaux, ainsi que par les ravages du choléra[14] et de la peste noire[15] : vers 1359-1360 l'église s'en trouve très endommagée[16].
Concernant sa remise en état, les hypothèses divergent sans être irréconciliables. Soit l'église est demeurée en ruines après les raids anglais[12],[13], soit elle a connu des réfections, ce que pourrait indiquer le fait qu'en 1368, deux seigneurs de la vallée sollicitent du duc Jean de Berry l'autorisation d'y apposer leurs écus[17],[18] : quoi qu’il en soit, le traité de Brétigny n'ayant pas suffi à endiguer le chaos dans la région[19], c'est seulement un siècle plus tard, grâce à la reprise économique et démographique, qu'elle est agrandie[20], sinon relevée[12],[13].

La reconstruction du XVe siècle la dote de quatre chapelles latérales sous voûtes d'ogives[12] et d'un porche, côté sud, qui soutient un clocher carré[17] desservi à l'époque par un escalier à vis creusé dans le mur ; garni de deux bancs de pierre faisant corps avec ses murs latéraux, ce porche a dû tenir lieu de « Maison commune ». L'argent manquant sans doute pour reconstruire sous voûte de pierre la nef et ses bas-côtés, la charpente reste apparente. Elle prend feu un siècle plus tard, accidentellement ou bien à cause des guerres de Religion, ce qui occasionne une campagne de restauration beaucoup plus importante au tournant des XVIe et XVIIe siècles[13] — signe d'une prospérité retrouvée[21].
Il est alors fait appel à un architecte renommé et actif en Auvergne, Pierre Levesville : des contrats signés chez le notaire toulousain Parrouton prouvent qu'il a supervisé les travaux du 11 mai 1610 au 27 mars 1614, dirigeant lui-même les tailleurs de pierre mais déléguant sur place un certain Jean Tardieu, maître-maçon, pour veiller à l'approvisionnement du chantier en pierres, sable, chaux et lauzes[22]. On ignore le nom des commanditaires[23] comme la nature et l'ampleur exacte des travaux, hormis l'érection de quatre piliers séparant la nef des collatéraux ainsi que la réfection de la toiture, de la charpente et de la voûte[22]. Celle-ci est entièrement lambrissée en bois de sapin, à l'aide de douelles longues d'une toise, épaisses d'un pouce et compartimentées par des moulures[24] en carrés de 33 × 33 cm[25].
Concernant la décoration des caissons, Louis Baritou, dont la monographie historique fait peu de place à l'église, les pense contemporains de ces grands travaux du XVIIe siècle, arguant de plafonds du même genre trouvés à la maison consulaire de Montauban et à la chapelle des Pénitents bleus de Toulouse, dus aussi à Levesville[21],[17]. Michel Maronne et Antoine de Rochemonteix, au contraire, affirment que les lambris ont d'abord été enduits d'une peinture claire uniforme[26], et que c'est bien plus tard qu'ils ont été peints, par un artiste inconnu probablement italien. La mémoire populaire ainsi que des documents du XIXe siècle situent son intervention autour de 1740, sur la foi d'une inscription — « finis opus 1743 »[alpha 4] —[27],[26] qui aurait été recouverte en 1884 : cette année-là en effet, la construction de deux fausses tours et d'une tribune dans le fond ouest de l'église fait disparaître plusieurs dizaines des 1 428 caissons originaux[28].
Entre 1834 et 1866, la sacristie, qui jouxtait peut-être le chevet au nord, a été installée derrière lui, côté est[29].
Dans sa monographie sur les églises de Haute-Auvergne, Adolphe de Chalvet de Rochemonteix conclut qu'au gré d'une histoire mouvementée obligeant les habitants à la reconstruire chaque fois dans le goût du moment[30], Saint-Léger de Cheylade a subi l'influence « de l'école auvergnate mitigée par le faire limousin » pour ses voûtes à peine brisées, et celle, plus éloignée, du Velay, à travers les arcatures qui relient le chœur aux absidioles[31],[alpha 5].
Saint-Léger et sa paroisse
Relevant à l'origine de l'évêché d'Auvergne, la paroisse de Cheylade est successivement rattachée à celui de Clermont puis à celui de Saint-Flour.
Au XIVe siècle, la paroisse dépend de l'archiprêtré d'Ardes, dans l'archidiaconé de Saint-Flour. L'église et la seigneurie de Valrus, rétrocédées à une date inconnue par l'abbaye de Sauxillanges, sont au XIIIe siècle devenues propriété personnelle des évêques de Clermont[alpha 6]. Lors de la division de l'évêché d'Auvergne en 1317, Cheylade intègre celui de Clermont comme toutes les autres paroisses alentour. Elle en dépend jusqu'à la Révolution française, tandis que la terre de Valrus, vendue en 1592 par l'évêque François de La Rochefoucauld[alpha 7], connaît différents propriétaires avant d'être saisie comme bien national[10].
Durant la Révolution, l'église de Cheylade a été peut-être dégradée, en tout cas sûrement fermée quelques années[33], d'autant que son curé semble s'être rétracté après son serment à la Constitution civile du clergé[34]. À la suite d'un décret de 1791, les quatre cloches ont été emportées à Murat pour y être fondues, et le beffroi n'en reçoit trois nouvelles que vers 1830. En 1790, la création des départements français entraîne le rattachement définitif de l'église et de la paroisse au diocèse de Saint-Flour[33],[alpha 8]. La coutume séculaire de déposer devant le presbytère, la veille de la fête de saint Léger, quantité de provisions pour qu'il exauce les vœux de la communauté est encore attestée au milieu du XIXe siècle par Henri Durif[36].
L'église actuelle
Aspect extérieur
Mis à part la sacristie, l'aspect extérieur de Saint-Léger est à peu près celui qui a résulté de la restauration du XVIIe siècle[37].
Aujourd'hui excentrée à la lisière ouest du « village balcon » de Cheylade, l'église surplombe la vallée[38] et présente comme beaucoup d'autres en Auvergne une silhouette trapue[39] : son clocher-porche à huit baies, coiffé d'une flèche basse à quatre pans, la domine de peu[13]. L'édifice est entièrement construit en rhyolite, pierre volcanique dont la couleur varie du gris au beige rosé, tandis que les toits bien pentus sont couverts de lauzes en phonolite, roche magmatique au son presque cristallin[10].

La sacristie moderne, hémicycle accolé extérieurement au mur plat du chevet, prolonge celui-ci en lui donnant « la forme des chevets romans classiques[8] » ; l'appentis qui la jouxte indique peut-être l'emplacement de l'ancienne sacristie[29]. En haut des absidioles sont encore visibles des modillons de facture assez grossière, qu'ils soient nervurés, torsadés ou sculptés de têtes d'homme et d'animaux[41].
Si le chevet est selon la tradition tourné, à peu de degrés près, vers l'orient, l'entrée se fait par le sud et non par la façade ouest[40]. Le porche à deux travées voûtées en ogives, toujours bordé de ses étroits bancs de pierre, porte en son centre un écusson marqué ITIS (« In Terra Ierusalem Socii »[alpha 10]) rappelant la participation des habitants de la vallée à la première croisade. Il donne accès à l'église par un portail dont l'archivolte est faite de cinq voussures sobres, la dernière formant une minuscule accolade sous une statuette de la Vierge[13].
Architecture intérieure
Presque inchangé depuis le XVIIe siècle et abstraction faite de son plafond décoré, l'intérieur du bâtiment est d'une simplicité rustique et donne une impression d'espace[10].
La nef à trois voûtes de hauteur égale — la nef centrale mesurant 4,5 × 14 m —[25] reçoit peu de lumière des petites ouvertures latérales « sans style[42] » et son sol est gris, le plancher de bois très usé ayant été remplacé au XXe siècle par un dallage provenant du réfectoire du grand séminaire de Saint-Flour. Légèrement brisé comme le sont les trois voûtes en berceau lambrissées, l'arc triomphal du chœur s'appuie sur deux colonnes à chapiteaux ornés de feuilles d'acanthe, motif fréquent dans l'architecture romane[43] et qui se retrouve ici sur le chapiteau droit de l'arc du fond de l'abside[11]. Le chapiteau de gauche, dit des sirènes poissons, offre une composition qui n'est pas rare dans la région[44] mais inhabituelle à cet endroit, car les sirènes, à l'influence maléfique, apparaissent plutôt à l'entrée des églises[43] : une sirène dotée ici d'une seule queue tient soit un filet à poissons, soit une harpe symbolisant son rôle tentateur, tandis qu'un autre personnage, indéfini, remonte ses longues jambes dans la position des sirènes bi-caudales[41].
Quelques éléments de l'église primitive réemployés au XIIe siècle se distinguent également[9] : deux colonnes encastrées dans des piliers, plusieurs colonnettes disposées dans le chœur et l'abside[11], et quelques chapiteaux du chœur d'époque carolingienne[8] — parmi les plus anciens du département[41]. Les arcatures reliant le chœur aux absidioles reposent ainsi sur de petites colonnes dont certains fûts ont été refaits en trachyte, et dont les chapiteaux à entrelacs sont surmontés à l'occasion de cordelettes horizontales[41].
La fausse tour sud contient l'escalier qui mène à la tribune et au clocher ; son opposée abrite dans sa partie basse les fonts baptismaux[28].

Fond de la nef, absidiole sud, chevet à mur plat et sacristie arrondie.
Archivolte entourant l'entrée de l'église au fond du porche.
Nef centrale, chœur et bas-côtés, avec à droite, éclairée, l'absidiole sud.
Fond du chœur et chevet avec son Assomption de la Vierge anonyme.
Mobilier
L'église de Cheylade comportant six chapelles en plus du chœur, le mobilier liturgique, les statues et les tableaux y sont assez nombreux[45].
Ont été classés au titre des monuments historiques le bénitier en granit[25] du XVe siècle, sobrement sculpté, les fonts baptismaux en trachyte plusieurs fois restaurés, un christ en croix de bois de la fin du XIVe siècle et la statue de saint Léger qui se dresse à gauche du chœur : cette effigie en chêne recouverte de couleurs et d'or date du XVe siècle mais ses bras, qui tiennent un livre et une crosse épiscopale peut-être en lieu et place des instruments de son supplice, ne sont pas d'origine. Quoique remarquables, les portes des deux fausses tours, réalisées en 1884 par un sculpteur de Saint-Flour et figurant saint Léger et saint Jean Baptiste, ne sont pas classées[45], non plus que les petites statues en bois polychrome du XVIe siècle représentant sainte Anne (au-dessus de l'arc triomphal), saint Pierre et saint Roch[46].
L'église compte en tout sept autels, surmontés d'écussons d'armoiries ou de retables peints[47]. Le maître-autel du chœur, en pierre du pays supportant une table de calcaire blanc, a été dessiné au milieu du XXe siècle pour remplacer l'autel en marbre du siècle précédent, qui lui-même avait succédé en 1859 à un autel en bois surmonté d'un retable démonté alors. Le tableau central, qui a pour sujet l'Assomption de la Vierge, en a toutefois été retiré et — après un purgatoire au presbytère — accroché au mur du chevet[28]. Les autels des absidioles datent tous deux du XVIIIe siècle.
Le retable du XIXe de la première chapelle sud (face au chœur) est dédié à saint Léger, celui de la suivante, remontant au XVIIIe siècle, à saint Joseph[45]. La première chapelle nord contient une Allégorie de la remise du rosaire à saint Dominique et sainte Catherine de Sienne peinte au début du XIXe siècle par un artiste de Salers[48]. L'autre s'orne d'une Adoration des bergers du XVIIe siècle classée depuis 1979 : longtemps attribuée au peintre local François Lombard, elle est reconnue désormais comme une œuvre importante de son maître caravagesque Guy François[47], assez demandé dans la région après son retour d'Italie[48].
Les peintures de la voûte
En 1902, Adolphe de Rochemonteix appelait à la conservation d'un ouvrage malhabile mais unique dans le département[25] : c'est de fait essentiellement à son plafond que l'église Saint-Léger doit son inscription à l'inventaire des monuments historiques en 1927, puis son classement le [46],[49]. Bien que très postérieurs à la construction de l'édifice, les 1 360 caissons encore visibles — 560 pour la nef centrale, 400 pour chacun des collatéraux[24] — s'y intègrent d'autant mieux qu'ils sont peints à fresque dans des couleurs en harmonie avec la pierre : peu de vert mais du bleu, du noir et toute la palette des ocres. Si Pierre Moulier ne s'attarde pas sur ces représentations naïves qu'il juge strictement décoratives[17], Pascale Bulit-Werner en revanche, spécialiste des peintures de la fin du XVe siècle[alpha 11], les rapproche de l'imagerie médiévale[51] : empruntant parfois à l'art héraldique, les motifs lui semblent inspirés des sculptures et enluminures du Moyen Âge et presque tous empreints d'une symbolique chrétienne[52].
Représentations animales

Le bestiaire de Cheylade, tel ceux du Moyen Âge, mêle animaux réels et créatures imaginaires[51].
Les animaux terrestres sont ceux de la vie quotidienne rurale : chien, poules, âne, cheval, porc, vache, bélier, cerf, loup, renard, etc. Les uns représentent des vertus positives comme la fidélité et la loyauté (chien), la force et la fécondité (bélier), d'autres au contraire des vices — saleté et goinfrerie (porc), ruse perverse (renard), vanité (cheval) ; à moins qu'ils ne soient ambivalents comme l'âne, symbole de lâcheté aussi bien que de patience et d'humilité (Jésus de Nazareth monte toujours un âne)[53]. À l'opposé du cerf, qui suggère le renouveau naturel et spirituel, le serpent est l'image habituelle du diable tentateur niché au cœur de l'homme[54].
Les oiseaux s'avèrent nombreux et variés, souvent d'une couleur bleue aux connotations célestes. Si le cygne implique dans l'art des blasons la beauté et la pureté, d'autres oiseaux ont une valeur précise dans le symbolisme chrétien, ne serait-ce que parce que leurs ailes sont dans la Bible « le symbole constant de la spiritualisation des êtres qui en sont pourvus[55] » : ainsi la colombe symbolise la paix et l'Esprit-Saint ; le pélican renvoie au sacrifice du Christ ; le paon — qui souvent incarne la vanité — peut signifier la résurrection et l'éternité ; et l'aigle, s'élevant dans les airs avant de fondre sur sa proie, rappelle au chrétien qu'il lui faut prendre de la hauteur pour terrasser le péché[56].
Quant au poisson, symbole universel de fécondité particulièrement répandu dans l'iconographie chrétienne, c'est l'image du fidèle qui a reçu l'eau du baptême[52].
Les voûtes de Cheylade offrent en outre quelques animaux exotiques et/ou fantastiques : le lion ou d'autres félins, stylisés de profil comme en héraldique, voire pourvus d'une queue de dragon, peuvent évoquer « aussi bien la force créatrice que, dans les Psaumes, l'orgueil ou le diable[54] ». Apparaissent également un cheval ailé tel Pégase[53], le basilic, volontiers associé à la luxure et à la vanité, ou encore la Méduse figurant les dangers de l'inconnu[54].
Images végétales
Oscillant entre imitation de la nature et stylisation créative, la flore et les fruits de la vigne abondent au plafond de Cheylade[57].
Certaines fleurs, dont les pétales entourent le cœur, relèvent de la famille des rosacées, très présentes sur les chapiteaux romans. Elles sont vues de face, en rosette, souvent entourées d'un cercle lui-même festonné. D'autres, telle l'églantine, présentent une double corolle[52], d'autres encore des tiges à deux voire trois brins, l'artiste jouant sur les courbes des fleurs et de leurs feuilles[57].
Parmi les fleurs des champs herbacées, boutons-d'or par exemple, certaines peuvent prendre une valeur symbolique : les campanules sont souvent associées à la coquetterie, la marguerite commune au contraire à l'innocence et à la simplicité de cœur, tandis que la tulipe, liée généralement à l'amour, est pour les chrétiens l'image de la grâce. Foisonnant dans les montagnes environnantes et figuré souvent ici par trois fleurs rouges ou bleues partant d'une même tige, l'œillet sauvage pourrait constituer une allusion à la Trinité. Le tournesol quant à lui, très facilement identifiable, symbolise la prière, l'amour divin, « l'âme qui tourne vers Dieu ses pensées et ses sentiments »[57].

D'une façon générale dans le christianisme, la fleur symbolise les vertus de l'âme et sa réceptivité à ce qui vient du Ciel[52]. Or, à côté des fleurs, le raisin tient une grande place dans les peintures de Cheylade, avec ses lourdes grappes, ses feuilles trilobées et les vrilles soutenant ses rameaux[57]. Vigne et vin sont des éléments majeurs du symbolisme judéo-chrétien : la vigne y représente la communauté humaine, chaque grappe une âme, le cep Jésus, et le vin son sang versé en sacrifice[58].
Autres motifs
Si certains caissons portent les armoiries de plusieurs familles seigneuriales auvergnates (Valrus, Anjony, Estaing…), la plupart des images restantes s'inscrivent encore dans l'iconographie chrétienne.
La tour marque la volonté de l'homme de s'unir à Dieu et le tabernacle la présence protectrice parmi les hommes du Christ ressuscité. Les cloches, quoi qu'elles annoncent, rassemblent les fidèles. La fleur de lys plus ou moins stylisée, jaune, rouge, bleue, seule ou accompagnant un autre motif, est le symbole de toutes les vertus chrétiennes ainsi que l'attribut de la Vierge Marie[59].
À l'exception d'un seul, les anges ne sont pas en pied : leur tête repose ou se détache sur une paire d'ailes, tantôt rouges comme celles des séraphins qui soulignent en peinture la représentation glorieuse de Dieu le Père, tantôt bleues comme celles des chérubins, image de sainteté[60]. Certains sont entourés d'étoiles rappelant leur appartenance céleste[59].
Le thème du cœur entre dans l'iconographie vers le milieu du XVe siècle ; toujours rouge, il symbolise la vie intérieure, l'amour profane ou sacré, la charité. Un cœur posé sur une main est signe d'honnêteté et de franchise : un des caissons de Cheylade présente ce motif sous sa forme « enflammée », cinq traits rouges jaillissant en haut. Ce cœur enflammé occupe à plusieurs reprises la totalité du cadre, laissant échapper un faisceau de flammes stylisées : symbole de passion qui peut désigner les blessures du Christ (les flammes figurant alors son sang) et exprimer l'amour divin, il renvoie peut-être déjà au Sacré-Cœur[58]. De ce culte apparu au XVIIe siècle relèverait aussi le cœur surmonté de trois flèches noires et ceint d'une guirlande — à moins que cet élément, brandi aussi par un personnage qui tient par ailleurs une grande croix, ne symbolise plutôt l'échange, l'union avec Dieu[60].
Vers un sens possible
Sans prétendre percer tous les mystères de ces peintures, Pascale Bulit-Werner observe qu'elles obéissent à un principe de symétrie, reproduisant à différentes échelles l'idée d'équilibre dans une conception chrétienne du monde.
Elle le voit d'abord dans certaines figures, telles une cigogne à deux têtes ou un cygne bleu se reflétant dans l'eau, puis surtout, nonobstant les caissons devenus invisibles, dans la composition d'ensemble, qui « s'articule autour d'axes de symétrie » : chaque motif est répété de part et d'autre de l'arête centrale de chaque voûte, conférant un sens à ce qui paraîtrait sinon juxtaposé au hasard[61]. Loin des plafonds bleus semés d'étoiles, substitut fréquent de la voûte céleste, les caissons de Cheylade offrent l'image du monde dans son ordre et sa belle diversité[51] : ils témoignent du regard admiratif porté par la créature sur la Création, dont ils suggèrent le cycle éternel (animaux en mouvement, fleurs en bouton/épanouies, fleurs du printemps/raisin de l'automne)[61].
L'homme n'est pas oublié, quoiqu'une seule fois représenté en entier. Le motif très surprenant d'un utérus avec une petite tête humaine au milieu rappelle sa naissance, peut-être aussi le dogme fondamental de l'Incarnation. À travers tous les symboles, notamment animaliers, sont rendues manifestes les qualités de l'être humain mais aussi ses doutes et ses inquiétudes. « Tout est en accord, autant sur le plan structurel que spirituel » et traduit l'élan de l'homme vers Dieu[61].
Notes et références
Notes
- Association destinée à faire découvrir le patrimoine naturel et culturel de la vallée de la Petite Rhue[1].
- De l'ancien occitan « Chaslada » (« Chailada » en occitan moderne), issu du bas latin « Castellata » : munie d'un château, d'une maison forte[4].
- Les reliques du saint ont en effet traversé la Haute-Auvergne quand elles ont été transférées de Noirmoutier à Ébreuil[8].
- « Fin des travaux : 1743 ».
- Bien qu'aucun auteur n'en parle, pas même lui, les photographies prises par Adolphe de Rochemonteix avant 1902 semblent attester que les murs et arcades de l'église étaient au XIXe siècle peints de motifs et arabesques colorés.
- Louis Baritou avance que les comtors de Valrus en auraient fait hommage aux évêques de Clermont afin d'échapper à la suzeraineté directe du duc de Poitiers, frère de Louis XI[32].
- Il vend tous les droits de l'évêché sur la terre et la seigneurie de Cheylade à un neveu, de la famille d'Estaing[32].
- Elle fait à présent partie de la paroisse Saint-Luc du Nord-Cantal, dépendant du doyenné de Mauriac, dans un diocèse qui correspond exactement au département[35].
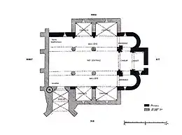
- Plan établi par Adolphe de Rochemonteix en 1902. N'y figurent pas les ajouts du XIXe : la sacristie arrondie derrière le chevet et les deux « tours » intérieures carrées (l'escalier creusé dans le mur n'est plus utilisé)[40].
- « Compagnons alliés pour la Terre Sainte ».
- Sa thèse de 1996, soutenue en musicologie à l'université Paris-Sorbonne, porte sur la représentation des anges musiciens dans l'iconographie du XVe siècle[50].
Références
- « Bienvenue », Association de la vallée de la Petite Rhue,
- Maronne et Rochemonteix 2004, p. 4.
- Baritou 1979, p. 17.
- Éric Vial, Les noms de villes et de villages, Paris, Belin, coll. « Le français retrouvé », , p. 256
- Baritou 1979, p. 18.
- Maronne et Rochemonteix 2004, p. 5.
- Baritou 1979, p. 19.
- Moulier 2001, p. 168.
- Maronne et Rochemonteix 2004, p. 6.
- Maronne et Rochemonteix 2004, p. 9.
- Maronne et Rochemonteix 2004, p. 15.
- Rochemonteix 1902, p. 107.
- Maronne et Rochemonteix 2004, p. 11.
- Baritou 1979, p. 39.
- Maronne et Rochemonteix 2004, p. 41.
- Baritou 1979, p. 41.
- Moulier 2001, p. 169.
- Baritou 1979, p. 42.
- Baritou 1979, p. 43.
- Baritou 1979, p. 49-51.
- Baritou 1979, p. 82.
- Maronne et Rochemonteix 2004, p. 13.
- Maronne et Rochemonteix 2004, p. 44.
- Maronne et Rochemonteix 2004, p. 26.
- Rochemonteix 1902, p. 110.
- Maronne et Rochemonteix 2004, p. 28.
- Rochemonteix 1902, p. 108.
- Maronne et Rochemonteix 2004, p. 17.
- Maronne et Rochemonteix 2004, p. 14.
- Rochemonteix 1902, p. 106.
- Rochemonteix 1902, p. 111.
- Baritou 1979, p. 21.
- Maronne et Rochemonteix 2004, p. 42.
- Maronne et Rochemonteix 2004, p. 46.
- « Paroisses et horaires des messes », Diocèse de Saint Flour,
- Henri Durif, Guide historique, archéologique, statistique et pittoresque du voyageur dans le département du Cantal, Aurillac, Éditions de la Butte-aux-Cailles, (réimpr. 1990), p. 401.
- Maronne et Rochemonteix 2004, p. 14.
- Maronne et Rochemonteix 2004, p. 3.
- Maronne et Rochemonteix 2004, p. 1.
- Maronne et Rochemonteix 2004, p. 7.
- Moulier 2001, p. 170.
- Rochemonteix 1902, p. 204.
- Maronne et Rochemonteix 2004, p. 16.
- Rochemonteix 1902, p. 17.
- Maronne et Rochemonteix 2004, p. 22.
- Maronne et Rochemonteix 2004, p. 25.
- Maronne et Rochemonteix 2004, p. 18.
- Maronne et Rochemonteix 2004, p. 20.
- « Église Saint-Léger », notice no PA00093496, sur la plateforme ouverte du patrimoine, base Mérimée, ministère français de la Culture.
- « Images de la musique céleste dans l'art français du XVème siècle : Les anges musiciens dans l'iconographie mariale et les scènes du Jugement dernier », Theses.fr,
- Bulit-Werner et Bulit 2004, p. 29.
- Bulit-Werner et Bulit 2004, p. 34.
- Bulit-Werner et Bulit 2004, p. 30.
- Bulit-Werner et Bulit 2004, p. 33.
- Bulit-Werner et Bulit 2004, p. 31.
- Bulit-Werner et Bulit 2004, p. 32.
- Bulit-Werner et Bulit 2004, p. 35.
- Bulit-Werner et Bulit 2004, p. 36.
- Bulit-Werner et Bulit 2004, p. 38.
- Bulit-Werner et Bulit 2004, p. 37.
- Bulit-Werner et Bulit 2004, p. 40.
Annexes
Bibliographie

: document utilisé comme source pour la rédaction de cet article.
- Adolphe de Chalvet de Rochemonteix, Les Églises romanes de la Haute-Auvergne, Paris, Picard, , 518 p. (lire en ligne).
. - Louis Baritou, Cheylade : Une communauté rurale en Haute-Auvergne à travers les âges, Aurillac, Éditions Gerbert, , 175 p., 24 cm (ASIN B0014LCXIG).

- Pierre Moulier, Églises romanes de Haute-Auvergne : Région de Saint-Flour, vol. III, Nonette, Créer, , 192 p., 24 cm (ISBN 978-2-909797-69-4, lire en ligne), p. 168-170.

- Michel Maronne (dir.) et al., Association Valrhue, Église Saint-Léger, Cheylade, Nonette, Créer, , 48 p., 22 cm, ill. en noir et en coul. (ISBN 2-84819-035-3).
- Michel Maronne et Antoine de Rochemonteix, « Le monument et son histoire », dans Église Saint-Léger, Cheylade, op. cit., p. 4-28.

- Pascale Bulit-Werner et Gérard Bulit, « La décoration de la voûte », dans Église Saint-Léger, Cheylade, op. cit., p. 29-40.

- Michel Maronne et Antoine de Rochemonteix, « Le monument et son histoire », dans Église Saint-Léger, Cheylade, op. cit., p. 4-28.
Article connexe
Liens externes
- Ressources relatives à la religion :
- Ressource relative à l'architecture :
- Fascicule de l'Association Valrhue sur Saint-Léger
- « Fonds Jean-Philippe Usse, Église de Cheylade », sur France Archives.
- Portail du Cantal et de la Haute-Auvergne
- Portail de l’architecture chrétienne
- Portail des monuments historiques français
