Area Apollinis
L'aire d'Apollon Palatin (en latin :Area Apollinis) est une aire sacrée située sur le Palatin. Elle contient le temple d'Apollon Palatin et un portique auquel s'ajoute une bibliothèque (bibliotheca Apollinis) et un arc (arcus Octavii).
| Aire d'Apollon Palatin Area Apollinis | ||
| Lieu de construction | Regio X Palatium Mont Palatin |
|
|---|---|---|
| Date de construction | 28 av. J.-C. | |
| Ordonné par | Auguste | |
| Type de bâtiment | Aire sacrée | |
Le plan de Rome ci-dessous est intemporel.
|
||
| Coordonnées | 41° 53′ 19″ nord, 12° 29′ 08″ est | |
| Liste des monuments de la Rome antique | ||
Localisation
L'aire est aménagée sur les pentes du Palatin qui surplombent la vallée de la Murcia où s'étend le Circus Maximus. Le complexe religieux est construit sur une terrasse de 70 × 30 mètres soutenue par une structure en opus quadratum.
Description
Dans ses Élégies, Properce en laisse une description admirative :
« Tu me demandes pourquoi je me suis fait attendre ? C'est que le divin Auguste vient d'ouvrir le magnifique portique d'Apollon. Il est soutenu de tous côtés par des colonnes de marbre d'une beauté admirable, et l'on compte au milieu d'elles autant de statues que le vieux Danaüs avait de filles. Là, j'ai vu un dieu en marbre, plus beau qu'Apollon lui-même, accompagner ses chants sur la lyre, et autour de l'autel quatre génisses, ouvrage merveilleux de Myron, auxquelles on donnerait la vie. Au milieu du portique s'élevait, en marbre, le temple, qu'Apollon préfère à Délos, où il reçut le jour. On admirait sur le faîte un char du Soleil en or ; et la double porte, noble dépouille de l'éléphant d'Afrique, qui représentait d'un côté les Gaulois précipités des sommets du Parnasse, de l'autre la mort cruelle de l'infortunée Niobé. Enfin Apollon, revêtu d'une robe traînante, fait retentir ses chants entre sa sœur et sa mère. »
— Properce (traduction de J. Genouille, 1834, voir en ligne), Élégies, livre II, XXXI.
Tout comme Ovide qui s'imagine parcourir Rome accompagné d'un guide :
« Nous poursuivons notre route, et mon guide me conduit, par de magnifiques degrés, au temple en marbre blanc élevé au dieu dont la chevelure est toujours intacte. C'est là qu'on voit les statues des Danaïdes et celle de leur barbare père, l'épée à la main, placées contre des colonnes qu'on tira des carrières étrangères. Là, toutes les créations des génies anciens et modernes sont mises à la disposition des lecteurs. J'y cherchais mes frères, excepté ceux dont notre père déplore la naissance, et, pendant que je les cherchais en vain, le gardien de ces lieux[n 1] sacrés m'ordonna d'en sortir. »
— Ovide (traduction de M. Nisard (dir.), 1838, voir en ligne), Tristes, livre III, 1.
L'aire sacrée devait également contenir un autel orné de quatre colonnes (Tetrastylum), la mystérieuse Roma Quadrata commémorant la fondation de Rome par Romulus, mentionnée par les sources antiques, et l'Auguratorium (qui ne fait peut-être qu'un avec la Roma Quadrata) qui commémore l'endroit où Romulus a été témoin du présage envoyé par les dieux[1]. Ce monument est restauré sous Hadrien.
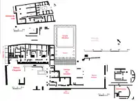
![]() |
![]() | |
Plan de la résidence d'Auguste et du complexe dédié à Apollon qui y est adjoint (à gauche, plan simplifié, à droite, plan plus détaillé. | ||
Le temple d'Apollon
Le temple est voué par Octavien en 36 av. J.-C.[a 1],[a 2] et dédié le 9 octobre 28 av. J.-C.[a 3]. Le Sénat s'y réunit souvent durant le règne d'Auguste, signe que le pouvoir est passé entre les mains du princeps.
Le portique des Danaïdes
Le temple est probablement construit en relation avec un portique, qui l'entoure ou est contigu. Entre les colonnes de marbre jaune antique de ce portique se dressent les statues de marbre noir des cinquante filles de Danaos devant lesquelles ont été placées les statues équestres de leurs époux, fils d'Aegyptus, et une statue de Danaos qui tient son épée dégainée.
La bibliothèque d'Apollon
À l'est du portique des Danaïdes, un second portique donne accès à la bibliothèque qui est divisée en deux grands halls, chacun prolongé par une abside. L'un est consacré aux ouvrages des auteurs latins et l'autre aux ouvrages des auteurs grecs. Les murs sont décorés de colonnes entre lesquelles ont été placés des portraits d'écrivains célèbres[2]. La bibliothèque est détruite lors de l'incendie de 64 et restaurée sous Domitien. Le Sénat s'y réunit parfois.
Notes et références
Notes
- Selon Suétone, il s'agit de Caius Julius Hyginus, responsable de la bibliothèque palatine.
Références
- Sources modernes :
- Coarelli 2007, p. 142-143.
- Platner et Ashby 1929, p. 16-18.
- Duret et Néraudau 2001, p. 308-309.
- Sources antiques:
- Suétone, Vie des douze Césars, Auguste, 29, 2.
- Dion Cassius, Histoire romaine, livre XLIX, 15, 5.
- Dion Cassius, Histoire romaine, livre LIII, 1, 3.
Bibliographie
- (en) Samuel Ball Platner et Thomas Ashby, A topographical dictionary of Ancient Rome, Londres, Oxford University Press, , 608 p.
- (en) Filippo Coarelli, Rome and environs : an archaeological guide, University of California Press, , 555 p. (ISBN 978-0-520-07961-8)
- Luc Duret et Jean-Paul Néraudau, Urbanisme et métamorphose de la Rome antique, Les Belles Lettres, coll. « Realia »,
- Portail de l’archéologie
- Portail de l’architecture et de l’urbanisme
- Portail des religions et croyances
- Portail de la Rome antique
- Portail de Rome


