Basilique Sainte-Marie-Madeleine de Vézelay
La basilique Sainte-Marie-Madeleine de Vézelay est une ancienne abbatiale française du XIIe siècle située à Vézelay, dans le département de l'Yonne en Bourgogne-Franche-Comté. Haut lieu de la chrétienté au Moyen Âge, Vézelay est un lieu de pèlerinage important sur le chemin de Saint-Jacques-de-Compostelle.
| Basilique Sainte-Marie-Madeleine Ancienne abbatiale de l'abbaye de Vézelay | |
La façade de la Basilique en 2021 après restauration. | |
| Présentation | |
|---|---|
| Culte | Catholique romain (Archidiocèse de Sens-Auxerre) |
| Dédicataire | Sainte Marie Madeleine |
| Type | Basilique (ancienne abbatiale) |
| Rattachement | Fraternités monastiques de Jérusalem |
| Début de la construction | 1120 1185 (chœur et transept) |
| Fin des travaux | 1150 1190 (chœur et transept) |
| Style dominant | Roman Gothique (chœur et transept) |
| Protection | |
| Site web | www.basiliquedevezelay.org |
| Géographie | |
| Pays | |
| Région | Bourgogne-Franche-Comté |
| Département | Yonne |
| Ville | |
| Coordonnées | 47° 27′ 59″ nord, 3° 44′ 54″ est |
Construit entre 1120 et 1150, l'édifice est une illustration majeure de l'architecture romane et de l'art roman en général, avec notamment le tympan intérieur du narthex qui représente un Christ en gloire. Reconstruit à la fin du XIIe siècle, le chœur présente un style gothique qui accroît la luminosité et contribue à renforcer la symbolique autour du thème de la lumière divine. En passant du narthex à la nef puis au chœur, le visiteur progresse d'un espace obscur à un espace de plus en plus lumineux. Chaque année au solstice d'été, les vitraux sud projettent une ligne de points lumineux au milieu de la nef.
Rénovée par Viollet-le-Duc à partir de 1840, la basilique fait l’objet d’un classement et figure sur la première liste des monuments historiques, celle de 1840[1]. En 1979, elle est inscrite sur la liste du patrimoine mondial de l'Unesco.
Depuis 1993, le service liturgique est assuré par les Fraternités monastiques de Jérusalem. Des offices ont lieu plusieurs fois par jour.
Histoire de l'abbaye
La France du IXe siècle
À la suite de la mort du carolingien Louis le Pieux en 840, l'empire se morcelle ; après trois ans de guerres fratricides, son fils Charles le Chauve est roi de Francie occidentale de 843 (traité de Verdun) à 877 et est couronné empereur d'Occident en 875. Mais sous la pression des attaques vikings et sarrasines, l'autorité royale s'est fortement affaiblie et les princes territoriaux et les seigneurs ont pris leur indépendance de fait, avec un effacement du pouvoir royal particulièrement prononcé au sud de la Loire. C'est le début de la féodalité.
Au milieu du IXe siècle, le comte de Bourgogne Girart de Roussillon prend conscience de ce que Charles le Chauve, qui s'est pourtant rapproché de ses frères et neveux à coups de traités et d'alliances, ne va pas renoncer à s'approprier le sud de la Bourgogne et à rattacher Lyon et Vienne à Mâcon et Autun. Quand Louis II attaque le domaine royal en 858, c'est en Bourgogne que Charles le Chauve se réfugie. Il a d'ailleurs un soutien fort dans la région : l'abbaye Saint-Germain à Auxerre est une fidèle du pouvoir royal (tendance que l'on retrouve au fil des siècles et des guerres pour cette abbaye). Charles le Chauve y est venu le (deux mois après la bataille de Fontenoy du contre son frère Lothaire) pour la translation des reliques de saint Germain, et en 859 pour la consécration des cryptes de l’abbaye. Saint-Germain d'Auxerre est alors au sommet de sa première phase de rayonnement intellectuel : l'établissement compte à l'époque jusqu'à six cents moines et cinq mille étudiants ; c'est l'un des principaux centres intellectuels du siècle et son influence n'est pas à négliger[2].
Une double fondation éminemment politique vers 859
La riposte du comte Girard est simple et efficace : il fonde deux monastères en deux endroits hautement stratégiques, les met sous la protection directe du pape c'est-à-dire hors d'atteinte des confiscations royales, et s'en réserve l'usufruit. Ces deux monastères sont d'une part Saint-Père, diocèse d'Autun et pagus d'Avallon , et d'autre part Pothières, diocèse de Langres et pagus du Lassois, au nord de l'actuelle Côte-d'Or.
Le premier monastère est un monastère de moniales, le second une abbaye d'hommes. Celui ci est fondé en 858 ou 859 par le comte et sa femme Berthe à l'emplacement actuel du village de Saint-Père et placé sous l'invocation de la Vierge Marie.
Accessoirement à ces manipulations politiques du côté laïc, les moines y gagnent aussi leur émancipation de leurs évêques respectifs — Autun et Langres, ce qui diminue d'autant le pouvoir épiscopal face à l'autorité laïque[3].
Non seulement l'abbaye de moniales de Saint-Père et celle d'hommes de Pothières sont toutes deux situées à la limite des terres du comte et jouxtent celles véritablement contrôlées par Charles le Chauve mais ces deux pagi donnent tous deux accès à la vallée de la Seine au nord, et pour le pagus d'Avallon à la Loire à l’ouest. Le pagus d'Avallon est aussi un lieu d'échanges entre les diocèses d'Auxerre et d'Autun. À Saint-Père cette position de poste-frontière est particulièrement évidente, avec le village en rive gauche de la Cure relevant du domaine royal et plusieurs dépendances et hameaux en rive droite relevant du duché de Bourgogne[3].
Une bulle pontificale du pape Nicolas Ier, en 863, garantit la protection directe par le Saint-Siège de l'abbaye de Vézelay qui échappe ainsi à l'autorité des évêques d'Autun. Les privilèges de l'abbaye sont confirmés en 868 par le roi Charles le Chauve[4].
Destructions et reconstruction sur la colline de Vézelay
En 873[n 1], l'abbaye de Saint-Père est dévastée par les Normands qui remontent la Seine, l'Yonne et la Cure.
Les moines bénédictins se réinstallent au sommet de la colline de Vézelay. Le pape Jean VIII dédicace la première église carolingienne du monastère en 878, dont la crypte subsiste de nos jours.
En 882, à la suite de troubles provoqués par les Sarrasins en Provence, un moine nommé Badilon est envoyé à Saint-Maximin en Provence pour ramener des reliques de Marie de Magdala.
Conflits de hiérarchie au début du XIe
Les premiers conflits entre les abbés de Vézelay et les comtes de Nevers éclatent en 1027. Elles resurgiront, notamment en 1147, 1149, 1152 et 1161. Avec l'appui de Landry comte de Nevers, l'abbé de Cluny Odilon intervient à Vézelay pour rétablir l'ordre ; et il en chasse l'abbé Hermann. Cette intervention en elle-même est litigieuse aux yeux de l'évêque ; le choix du remplaçant d'Herman vient envenimer la querelle, car Odilon et l'évêque diffèrent sur le choix du prochain abbé de Vézelay.
En cette affaire, Odilon justifie l'intervention de Cluny en citant les privilèges apostoliques qui consacrent la liberté de l'abbaye de Vézelay face à l’autorité de l'évêque ; en effet, ces privilèges apostoliques octroyés depuis 863 par le pape Nicolas Ier affranchissent Vézelay de la soumission à l'évêque en rattachant l'abbaye directement à Rome. Et il revendique son choix dans la succession d'Herman en arguant d'un privilège par le pape Grégoire V (996-999) sur le libre choix du prélat consécrateur.
Cet épisode intervient à une période d'affrontement entre Cluny, les évêques et la papauté. Le point de contention fondamental entre ces trois protagonistes est la soumission des établissements religieux à l'autorité épiscopale, en opposition avec laquelle Cluny se place en usant de l'autorité du siège de Rome pour revendiquer l'indépendance vis-à-vis de l’évêque. Il s'agit aussi de définir les limites respectives des influences épiscopales et papales, cette dernière cherchant par ailleurs à se renforcer face au pouvoir séculaire impérial.
Les évêques s'opposent vigoureusement à cette intervention de Cluny dans les affaires de Vézelay. Réunis dans un concile à Anse en 1025, ils rappellent que ce privilège d'indépendance est en violation du canon IV[n 2] du concile de Chalcédoine qui soumet les monastères à l'évêque de leur diocèse.
En réponse aux évêques, le pape Jean XIX réunit un concile à Rome le ; il y réaffirme la primauté de l'Église romaine, « tête et gond » de toutes les églises de la chrétienté. Il ajoute qu'une traditio avait fait de Cluny la propriété de la seule papauté et que l'abbaye était, de ce fait, placée sous la seule juridiction de l'évêque de Rome. L'acte pontifical du confirme l'exemption clunisienne.
À la suite de ce concile de Rome, les abbés de Cluny cherchent à utiliser cette tradition du rattachement de Vézelay à Rome pour obtenir que tous les monastères dépendant du siège de Rome relèvent de l'acte pontifical du 28 mars 1027. Ces affrontements des différents acteurs du pouvoir exacerbent les sentiments. L'évêque Adalbéron de Laon va jusqu'à railler en 1027 le « roi Odilon »[5] ; Guillaume de Volpiano, clunisien et réformateur, écrit que la réforme de Vézelay est dangereuse pour Cluny, qui doit abandonner son projet et laisser Hermann, l'abbé « ignominieusement » chassé, revenir à Vézelay avec ses moines.
L'essor de l'abbaye de Vézelay au XIe
En 1037, l'abbé Geoffroy (1037-1052) remplace l'abbé Hermann et réforme l'abbaye. Il expose les reliques de Marie-Madeleine. Des miracles se produisent. Les pèlerins affluent et font de Vézelay un point de passage important sur le chemin de Saint-Jacques-de-Compostelle.
En 1050 l'abbaye, qui était à l'origine placée sous l'invocation de sainte Marie, passe sous le patronage de Marie-Madeleine.
En 1058 le pape reconnaît solennellement les reliques. Les textes ne permettent pas de connaître la succession des abbés de Vézelay entre 1050 et 1096, date de l'élection de l'abbé Artaud. On suppose que le rattachement de l'abbaye de Vézelay à l'abbaye de Cluny n'a pu intervenir qu'après la mort de l'abbé Geoffroy, probablement avant 1058, et que l'abbé de Cluny, Hugues de Semur, a rempli la fonction d'abbé de Vézelay pour rétablir la discipline monastique. C'est ce que laisse penser la Vie de saint Hugues rédigée par Renaud de Semur vers 1126 : « Qui ramena l'église Sainte-Marie-Madeleine à la primitive observance régulière, si ce n'est ce saint homme ! » Un acte délivré par le pape Étienne IX en mars 1058 place l'abbaye de Vézelay au nombre des monastères soumis, à cette époque, à l'abbé Hugues de Cluny. Cette hypothèse est d'autant plus probable qu'un acte du pape Victor II délivré le confirmant les concessions de Cluny, ne mentionne pas l'abbaye de Vézelay. En 1069 les textes mentionnent un abbé Boniface.
La réputation de l'abbaye permet au village de prospérer. Le bourg se développe et devient une ville qui attire de plus en plus de pèlerins tels que le duc de Bourgogne Hugues II et sa cour en 1084. Ou, plus tard, Bernard de Clairvaux (saint Bernard) qui vient pour prêcher la 2e croisade en 1146, Philippe Auguste et Richard Cœur de Lion, avant leur départ pour la 3e croisade en 1190, ou encore Louis IX en 1248… En 1076 le pape Grégoire VII cite l'abbaye de Vézelay parmi les neuf abbayes soumises à l'ordinatio de Cluny.
La grandeur de l'abbaye clunisienne au début du XIIe
En 1096, l'abbé Artaud entreprend l'édification d'une nouvelle église, un nouveau chœur et un nouveau transept sont construits, les travaux dureront jusqu'en 1104. Seule la nef de l'église carolingienne sera conservée.
En 1098 l'évêque d'Autun, Norgaud de Toucy (1098-1112), profitant de la querelle avec l'église de Saint-Maximin, jaloux de l'indépendance de l'abbaye, interdit le pèlerinage.
Dans un acte du 15 novembre 1100, le pape Pascal II confirme le rattachement de l'abbaye de Vézelay à celle de Cluny. Dans cet acte il réduit les dépendances de Cluny au rang de prieurés, mais autorise douze maisons à garder leur titre d'abbayes. Il rappelle que l'abbé doit être désigné, sans violence ni ruse, par l'accord de tous les frères ou par la sanior pars, selon la règle de saint Benoît, mais avec l'avis de l'abbé de Cluny. Ces abbayes, comme Vézelay, étaient souvent plus anciennes que Cluny et acceptaient mal cette dépendance. En 1103 les moines obtiennent l'appui du pape Pascal II qui fait une bulle d'approbation des reliques.
Le a lieu la dédicace du chœur et du transept de la nouvelle église. Mais en 1106 les habitants, qui ne supportent plus la charge du financement des travaux de construction de la nouvelle église, se révoltent et tuent l'abbé Artaud. Renaud de Semur (1106-7 août 1129), petit-neveu de l'abbé de Cluny Hugues de Semur, devient abbé de Vézelay avant d'être archevêque de Lyon. Les chapiteaux sont peut-être commencés dès cette date.
Nommé en 1116/1117 par l'abbé Pons de Melgueil, Pierre le Vénérable est écolâtre et prieur à Vézelay jusqu'en 1120 avant de rejoindre l'abbaye de Cluny et d'en devenir l'abbé en 1122. Il est probable qu'il a dû inspirer les thèmes des chapiteaux et des tympans[6].
Le , lors de la veillée de Sainte-Madeleine, la charpente de l'abbatiale prend feu et s'effondre (causant la mort de 1 127 personnes d'après la Chronique de Saint-Maixent). L'abbé Renaud de Semur, reparator monasterii Vezeliacensis, entreprend la reconstruction de la nef. Elle est achevée vers 1132. Les irrégularités du plan de la nef près du transept sont dues au raccordement avec les piles de l'église de l'abbé Artaud. La construction aurait été entreprise d'ouest en est. Après 1125 les moines auraient fait appel au célèbre Gislebertus d’Autun pour le tympan du portail central qui offre, malgré les destructions révolutionnaires, quelques traces de son style. Par contre Jean Adhémar attribue le tympan du portail central au maître des chapiteaux du déambulatoire de Cluny.
En 1129, malgré les avis répétés des papes Calixte II en 1120 et Honorius II en 1125, après le départ de Renaud de Semur qui a été nommé archevêque de Lyon, les moines passent outre l'avis de l'abbé de Cluny et désignent un abbé qui reçoit la bénédiction de l'évêque d'Autun, trop heureux de rétablir son autorité sur l'abbaye. En 1131, avec l'approbation du pape Innocent II, l'abbé de Cluny Pierre le Vénérable choisit le sous-prieur de Cluny, Albéric, comme abbé de Vézelay. Les moines rebelles à l'autorité de Cluny sont répartis dans des monastères clunisiens. Le nouvel abbé doit affronter l'opposition des moines, celle de l'évêque d'Autun Étienne Ier de Baugé puis Robert de Bourgogne, et l'hostilité des comtes de Nevers Guillaume II et Guillaume III.
En 1132, consécration de la chapelle des pèlerins qui est très probablement la chapelle de l'hôtellerie. Après 1135 et l’achèvement de la nef, les travaux se poursuivirent par l’avant-nef, construction des trois travées du narthex roman à l'avant de la nef. Renaud de Semur avait voulu donner une signification particulière à sa réalisation grâce à un vaste programme sculpté : les trois portails de la nef ont été confiés à des sculpteurs dont le principal avait exécuté les chapiteaux de l’abside de Cluny. La construction de cette avant-nef s'était imposée pour permettre la formation des processions comme à Cluny.
En 1138, Albéric est nommé cardinal-évêque d'Ostie. C'est le propre frère de l'abbé de Cluny Pierre le Vénérable, Ponce de Montboissier, qui est élu abbé de Vézelay. Ce nouvel abbé voulut asseoir l'indépendance de l'abbaye vis-à-vis de l'évêque d'Autun. Entre 1145 et 1152 réalisation de la voûte de la chapelle Saint-Michel située à l'étage sur la tribune avec une croisée d'ogives, la plus ancienne de Bourgogne et l'une des plus anciennes de France. Consécration de la chapelle par Hugues d'Amiens, archevêque de Rouen (1129-1164).
En 1151, le pape Eugène III institue une enquête sur les droits respectifs des évêques d'Autun et des abbés de Vézelay.


C'est à Vézelay qu'est célébré dès 1152 le souvenir de la désastreuse la seconde croisade. Bernard, abbé de Clairvaux, y aurait tenu un prêche en ce sens le , jour de Pâques, devant une foule immense réunie sur le versant nord de la colline.
Le prestige de l'abbaye indépendante de la fin du XIIe
En 1159, à la mort du pape Adrien IV, élection du pape Alexandre III. Une minorité de cardinaux favorables à l'empereur Frédéric Barberousse élisent l'antipape Victor IV. Alexandre III doit se réfugier à Sens en 1162 jusqu'en 1165. Pendant ce schisme, l'abbé de Cluny soutient l'antipape Victor IV et l'abbé de Vézelay, Guillaume de Mello, le pape Alexandre III.
En 1162, le pape Alexandre III, pour récompenser le soutien de l'abbé de Vézelay, permet à l'abbaye de se séparer de la congrégation de Cluny. L'abbaye s'affranchit de l'évêque d'Autun en se plaçant sous la protection du roi de France.
En 1165, un incendie ravage la crypte située sous le chœur.
Lors de la fête de la Sainte-Madeleine de 1166, l'archevêque de Cantorbéry Thomas Becket expose au peuple assemblé la cause de son différend avec le roi d'Angleterre et la persécution sacrilège dont il était l'objet. Il prononce dans l'église une série d'excommunications importantes, comme celle de Jean d'Oxford, évêque de Norwich, pour avoir usurpé le doyenné de la cathédrale de Salisbury et communiqué avec les partisans de l'antipape. Il excommunia également Richard de Ilchester, évêque de Winchester, pour communications avec les ennemis du pape, ainsi que Richard de Luci et Jocelin de Balliol pour avoir rédigé les constitutions de Clarendon. Ranulf de Broc, Hugh de Saint Clair et Thomas Fitzbernard furent excommuniés pour avoir occupé les possessions de Canterbury. Il s'abstint in extremis d'excommunier le roi Henri II d'Angleterre car il venait de tomber gravement malade.
La construction d'un chœur et d'un transept gothique est entreprise en 1185 vraisemblablement à l'initiative de l'abbé Girard d'Arcy (1171-1198).
Le , l'armée anglaise de Richard Cœur de Lion et l'armée française de Philippe Auguste partent de Vézelay pour la 3e croisade. Le chœur a dû être terminé par l'abbé Gautier (1207-1216) qui a fait bâtir le transept.
La fondation du premier couvent franciscains de France, sur le flanc nord-est de la colline à la chapelle de la Cordelle, date de 1217.
Le déclin de l'abbaye au bas Moyen Âge
L'abbé Jean d'Auxerre (1252-1269) veut revivifier la dévotion à Sainte-Marie-Madeleine et procède à une reconnaissance solennelle de ses reliques par Pierre, évêque de Panéade, et Guy de Mello, évêque d'Auxerre (1247-1270). Guy de Mello, investi par le pape Clément IV du commandement d'une expédition destinée à maintenir Charles d'Anjou sur le trône de Naples et de Sicile, fait une halte à Vézelay et fait procéder aux constations[7] dont le procès-verbal est daté du , jour de la Saint-Denis[8].
Cette reconnaissance est suivie deux ans plus tard, le par un transfert officiel des reliques en présence du cardinal Simon de Brion, légat du pape, et du roi Saint Louis, venus spécialement à l'abbaye à qui ce dernier offre deux reliquaires. D'autres grands personnages sont présents comme le duc de Bourgogne et le comte de Champagne.
En 1279, l'ouverture du tombeau de la sainte à Saint-Maximin confirme aux yeux de l'église qu'il contient bien les reliques de la sainte. Les pèlerins vont progressivement se détourner de l'abbaye.
Le , le pape Boniface VIII prend alors le parti de l'abbaye de Saint-Maximin et réunit les reliques de la Sainte-Baume avec celles de Saint-Jean-de-Latran à Rome. Une bulle pontificale confirme l'établissement de dominicains à Saint-Maximin[9].
Vers 1343, l'abbaye reçoit la régie du grenier à sel de Vézelay, et les moines font combler vers la même époque le puits à sel des Fontaines-Salées[10]
Vers 1347, la tour occidentale en style gothique est érigée. Ce sera le dernier grand chantier de l'abbaye avant son déclin.
L'abbé de Vézelay délivre un certificat le constatant les titres établissant l'exemption de l'abbé de Saint-Martin d'Autun de la juridiction de l'évêque d'Autun au sujet d'Anzy-le-Duc[11].
En 1458, le pape Pie II constate que les pèlerins ont délaissé l'abbaye et que les aumônes sont trop faibles pour les finances de l'abbaye.
« L'église du monastère de sainte Marie-Madeleine de Vézelay […] a besoin de réparations considérables […]. Il faut en particulier reconstruire son clocher principal, détruit dernièrement par la foudre, lequel était fort beau et répondait à l’importance dudit monastère, ses cloches ont été fondues […]. Mais, à raison des guerres cruelles et meurtrières qui ont duré longtemps en France et surtout dans ces régions, très dépeuplées pour ce motif, à raison aussi des épidémies qui ont sévi, des sinistres événements qui s’y sont produits, ce lieu est peu fréquenté aujourd’hui, et les populations sont tellement appauvries et la piété s’est tellement refroidie, que le sacristie a peine maintenant, et aura plus de difficultés encore dans la suite, à subvenir, par ces offrandes et ces aumônes si modiques, à une partie du luminaire et à la sonnerie des cloches[12]. »
Des guerres de religion à la Révolution
En 1537, le pape Paul III sécularise l'abbaye. Les moines sont remplacés par quinze chanoines séculiers placés sous l'autorité d'un abbé commendataire nommé par le roi.
En 1555, le cardinal Odet de Coligny est nommé abbé de Vézelay et se convertit officiellement au calvinisme au colloque de Poissy en septembre 1561. Il devient avec ses frères l'amiral de Coligny et François de Coligny d'Andelot un chef de file des huguenots en France.
En 1568 et 1569, l'abbaye est occupée par les soldats huguenots puis par les troupes royales. L'indépendance de l'abbaye vis-à-vis du pouvoir ecclésiastique réalisée par Girart d’Arcy prend fin par un arrêt du Conseil d’État de 1673, les évêques acquérant légalement un droit de prédominance hiérarchique sur l’abbaye[13].
L'ensemble des bâtiments sont au bord de la ruine dans un rapport de 1668 et 1680[14]. En 1760, les bâtiments abbatiaux à l'abandon sont partiellement vendus et démolis.
En 1790, l'abbatiale Sainte-Marie-Madeleine devient une simple église paroissiale, et le collège des chanoines est supprimé le 6 décembre de la même année. L'abbaye est vendue à la Révolution et sert de carrière de pierres : il n'en reste pratiquement rien. Seule la salle capitulaire est encore en bon état de conservation, servant aujourd'hui de chapelle. Le long de cette salle, il reste quelques arcades du cloître. Les maisons adjacentes portent toutes des traces des bâtiments conventuels qui étaient sans doute de grande proportion. En 1793, les sculptures extérieures et intérieures des portails sont décapitées et mutilées par Hubert Lerond, maçon qui travailla ensuite à la restauration de l'église[14].
Le , un incendie est dû à la foudre qui s'abat sur la tour Saint-Michel.
Redécouverte et restauration de l'église abbatiale de Vézelay
Le , Prosper Mérimée découvre l'église abbatiale de Vézelay en ruine et décrit la majesté du monument dans ses Notes de voyage dans le midi de la France[15],[16].
« Il me reste à parler des dégradations épouvantables qu'a subies cette magnifique église. Les murs sont déjetés, pourris par l'humidité. On a peine à comprendre que la voûte, toute crevassée, subsiste encore. Lorsque je dessinais dans l'église, j'entendais, à chaque instant, de petites pierres se détacher et tomber autour de moi. La toiture est dans un état pitoyable. Enfin il n'est aucune partie de ce monument qui n'ait besoin de réparations. […] Si l'on tarde encore à donner des secours à la Madeleine, il faudra bientôt prendre le parti de l'abattre pour éviter les accidents. »
En 1840, le jeune architecte Eugène Viollet-le-Duc entreprend la restauration du bâtiment, à la suite de l'inspection faite par Prosper Mérimée, et le placement sur la liste des monuments historiques de 1840[1]. Cette protection au titre des monuments historiques inclut le bâtiment des moines, comme confirmé par la Commission supérieure des monuments historiques du 25 mars 1968[1].
Le , Victor-Félix Bernadou, archevêque de Sens, remet des reliques de sainte Marie Madeleine remises par le pape Martin IV et conservées au trésor de la cathédrale de Sens depuis 1281. Cette cérémonie marque le rétablissement des pèlerinages modernes qui seront de nouveaux arrêtés en 1912. Le , les reliques sont dérobées. Elles seront trouvées par un enfant, le . Les reliques étaient dissimulées sur une tombe, dans le cimetière de Briare. Le , les reliques sont déposées de nouveau dans la crypte avant d'être célébrées le 22 juillet suivant dans une grande cérémonie d'action de grâce.
En 1920, Sainte-Marie-Madeleine est érigée par le Vatican au rang de basilique et les pèlerinages peuvent reprendre officiellement.
À partir de 1945, des moines réinvestissent la basilique avec la venue d'une petite équipe de moines bénédictins de l'abbaye de la Pierre-Qui-Vire.
Du 18 au 22 juillet 1946, la croisade pour la paix réunit à Vézelay 30 000 pèlerins[17].
De 1953 à 1993, les franciscains succèdent aux bénédictins.
La basilique et la colline sont classées au patrimoine mondial de l'UNESCO en 1979[18].
En 1993 à la demande de l'archevêque de Sens et Auxerre, les Fraternités monastiques de Jérusalem assurent l'animation liturgique de la basilique et proposent des visites de l'édifice pour en faire découvrir toutes les richesses spirituelles et architecturales. Le 7 octobre 1993, sous les auspices de l'UNESCO et de la Présidence de la République, a lieu la recréation française télévisée de la Messe solennelle d'Hector Berlioz, par le chœur et l'orchestre de la Philharmonie de Cracovie, sous la direction de Jean-Paul Penin.

Liste des abbés de Vézelay
Le chapitre est composé d'un abbé à la nomination du roi, d'un doyen, d'un archidiacre, d'un chantre et de douze chanoines, alternativement à la nomination du roi et de l'abbé qui est seigneur de la ville.
Hôtes illustres
De nombreuses personnalités ont séjourné à l'abbaye de Vézelay, parmi lesquelles :
- Hugues de Poitiers, moine de l'abbaye, écrivain actif entre 1140 et 1167 ;
- Pierre le Vénérable ;
- Thomas Beckett ;
- Innocent II ;
- Louis VII ;
- Saint Louis ;
- Philippe Auguste ;
- Frederic Barberousse ;
- François Ier
Abbayes et prieurés dépendants
Outre le pèlerinage et les habitants de la ville de Vézelay, l‘abbaye tirait aussi bénéfice des nombreuses dépendances qu‘elle comptait. Il est malaisé de procéder à un décompte précis de ses possessions, dont nous pouvons cependant constater la croissance à travers trois principaux documents : la charte de fondation, la bulle pontificale de 1102 et celle de 1170.
- Au début du XIe siècle, le monastère comptait uniquement douze possessions dont les deux-tiers faisaient partie de la dotation initiale.
- En 1102, elles passent à trente-neuf, réparties dans onze diocèses différents, de Clermont à Noyon et de Saintes à Mâcon.
- En 1170, un peu plus d‘une centaine en particulier dans les diocèses du Nord, les possessions dans le Beauvaisis, le diocèse de Sens et celui de Noyon-Tournai.
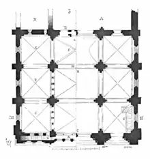
L'architecture de la basilique en quelques chiffres



- Longueur extérieure : 120 m
- Le narthex (avant-nef)
- Largeur intérieure du narthex : 23,5 m
- longueur du narthex : 22 m
- hauteur du narthex : 19,5 m
- La nef
- Longueur de la nef : 62,50 m
- Hauteur des voûtes du vaisseau central de la nef : 18,55 m
- Largeur de la nef, y compris ses deux collatéraux : 23,25 m
- Largeur du vaisseau central entre les deux axes des piles : 11 m
- Largeur de chaque collatéral : 6,2 m
- hauteur de chaque collatéral : 7,5 m
- Le chœur
- Hauteur sous voûte du chœur : 22 m
- Longueur du chœur : 26,6 m
- Largeur du chœur : 10,65 m
- Les tours
- Hauteur de la tour Saint-Michel : 38 m
- Hauteur de la tour Saint-Antoine : 35 m
- Autres
- Les piles de la nef sont cruciformes avec quatre demi-colonnes engagées. Chaque pile fait 2,5 mètres de large.
- L'élévation de la nef est à deux niveaux (grandes arcades et fenêtres hautes). Celle du chœur est à trois niveaux (grandes arcades, triforium aveugle et fenêtres hautes). Quant au narthex, il comporte deux niveaux : grandes arcades et tribunes.
- La voûte de chaque travée du vaisseau central de la nef pèse 45 tonnes.
Descriptif de l'extérieur de la basilique
Flanc sud.
La façade occidentale.
Flanc sud.
Portail du flanc sud.
La façade occidentale

Elle a été profondément remaniée au XIXe siècle. La façade d'origine avait déjà été modifiée dès le XIIIe siècle par l'adjonction du grand pignon, comportant d'étroites baies élancées. Elle présente trois portails dont seul le portail central est doté d'un tympan sculpté.
Le pignon de la façade présente une disposition très originale. Car non seulement il sert à masquer les combles de l'édifice — ce que font normalement tous les pignons —, mais il sert aussi de tympan aux voûtes du narthex. Les baies de la partie inférieure de ce pignon forment en effet un jour qui procure de la lumière au narthex. Fait très rare, les rampants de ce pignon, au lieu d'être rectilignes, sont formés par deux courbes formant un arc brisé.
Les statues qui décorent la partie supérieure de ce pignon représentent, au sommet, le Christ assis, tenant le livre des Évangiles et bénissant ; deux anges portent une large couronne au-dessus de sa tête. À la droite du Christ, se trouve la Vierge, à sa gauche Marie Madeleine. Enfin aux deux extrémités du groupe deux anges sont représentés.
Entre les fines baies de la façade situées dans la partie inférieure du pignon, et éclairant le narthex, on peut voir de grandes statues de saints : saint Jean l'Évangéliste, saint André, Jean le Baptiste, saint Pierre, saint Paul et saint Benoît.
Saint Jean l'Évangéliste (1240-1250), calcaire, façade occidentale.
Le pignon (1240-1250), façade occidentale, partie centrale.
Jean le Baptiste(1240-1250), calcaire, façade occidentale.
Pignon central de la façade.
Deux tours devaient compléter l'ensemble, mais celle de gauche ne fut jamais construite. Celle de droite, ou tour Saint-Michel, se termine par une plate-forme et est accessible par un escalier débutant dans le narthex (du sommet, on a une vue absolument splendide). Construite au XIVe siècle, la tour est de style gothique.
Le tympan du Jugement dernier

Le tympan qui surmonte le portail central de la façade représente le Jugement dernier. Il fut exécuté en 1856 par le sculpteur Michel-Pascal, sous la direction de l'architecte Viollet-le-Duc. La réalisation de ce tympan au XIXe siècle, dans le style néo-roman, fortement critiquée au départ, semble cependant être une bonne réussite. L'ancien tympan, qui avait été martelé à la Révolution et était devenu presque lisse, a été replacé contre le mur extérieur de la huitième travée de la nef, du côté sud (à droite).
La composition est classique et inspirée d'autres Jugements Derniers de la même époque. Au centre le Christ préside la scène, les deux bras grand ouverts. À ses pieds, à sa gauche, l'archange saint Michel, un diable hideux à ses côtés, procède à la pesée des âmes. Les damnés, généralement nus, se dirigent vers l'enfer et sont avalés par la gueule d'un monstrueux Léviathan. À la droite du Christ, les élus sont menés vers la Jérusalem céleste.
Le chevet
Le chevet est construit autour d'un chœur à déambulatoire et chapelles rayonnantes voûté d'ogives. L'ensemble est d'époque gothique. Il a été élevé en même temps que le transept vers 1185 1190, sous l'abbatiat de Girard d'Arcy, à la suite de l'effondrement du chœur roman d'origine.
Flanc sud du chevet, seconde moitié du XIIe siècle, calcaire.
Face est du Chevet, seconde moitié du XIIe siècle, calcaire.
Tribunes (1140-1150), calcaire, avant-nef, bas côté nord.
Descriptif de l'intérieur de la basilique
Le narthex

Le narthex est une des grandes constructions de la période romane. C'est une pièce qui s'était imposée pour permettre la formation des processions dans la nef.
Son rez-de-chaussée et les arcades des tribunes furent érigées entre les années 1135 et 1145. L'étage, caractérisé par des voûtes au style très différent, ne put être construit qu‘aux environs des années 1146-1147.
Profond de trois travées, il est de vaste dimension : à peu près carré, il mesure 23,5 mètres de largeur sur 22 de profondeur et comporte trois vaisseaux comme la nef.
Au fond du narthex, trois portails s'ouvrent sur la nef de la basilique ; ils sont chacun surmontés d'un tympan sculpté. Deux petits portails encadrent le grand portail. Celui de droite est consacré à l'Enfance du Christ, celui de gauche, à des scènes après la Résurrection. Le portail central traite de deux thèmes : le Christ monté au Ciel, trônant en gloire à la droite du Père, accomplit la promesse qu'il a faite aux apôtres le jour de l'Ascension, il les remplit du don du Saint-Esprit à la Pentecôte. Jean Adhémar y voyait une illustration du De Miraculis de l'abbé de Cluny, Pierre le Vénérable.
Une particularité : il possède un étage de larges tribunes, contrairement au reste de l'édifice. Celles-ci surmontent les deux collatéraux ainsi que la troisième travée du vaisseau central. Cette dernière tribune (au-dessus du grand portail situé au fond du narthex), ou tribune centrale, ouvre sur la nef. La balustrade de cette tribune centrale est ornée d'une frise d'arcs en mitre. Détail très important : la voûte sur cette tribune centrale est gothique et possède des arcs ogives. C'est un des premiers exemples qu'il y ait en France de ce genre de structure, les autres voûtes du narthex étant romanes, d'arêtes très surhaussées. Les tribunes latérales qui se trouvent au-dessus des collatéraux s'ouvrent sur la partie centrale par des petits arcs en plein cintre reposant sur des colonnettes.
Eugène Viollet-le-Duc qui donnait aux narthex le nom de « porches fermés », estimait que celui de Vézelay était « certainement une des œuvres les plus remarquables du Moyen Âge »[19] et en fit plusieurs fort beaux croquis[20].
Les travaux de ferronnerie ont été confiés à Pierre Boulanger qui réalisa toutes les pentures et serrures des portes à l'intérieur du narthex[21] et de la porte extérieure d'accès à la nef latérale nord[22].
La porte de gauche du narthex.
Serrure de la porte du narthex.
Coupe sur le narthex ou avant-nef.
Vue en perspective de l'intérieur du narthex, prise de la galerie qui traverse la façade.
Le portail central du narthex et son tympan

(1120-1140), calcaire.

Le tympan du portail central, ou grand tympan du narthex, est un des plus grands chefs-d'œuvre de l'art sculptural roman en France. L'ensemble du tympan, linteau et voussures compris, se compose de cinquante-huit blocs de tailles très variables. Il mesure un peu plus de neuf mètres de large sur cinq mètres vingt-cinq de haut.
Il représente la création historique de l'Église, avec le Christ bénissant les apôtres et leur assignant la mission de convertir les nations. Cette thématique est tout à fait unique dans l'art roman. Toute la scène est organisée autour du Christ en gloire. Ce dernier domine les autres personnages par sa taille. Celle-ci est en effet proportionnelle à l'importance des personnages représentés.
Le visage impassible du Christ contraste avec sa position en forme d'éclair et le mouvement tourbillonnant de ses vêtements. Des rayons partent latéralement de ses mains, en direction des apôtres. Cela symbolise la transmission de l'esprit du Christ ainsi que l'attribution d'une mission à ces derniers : « Allez et enseignez toutes les Nations ».
Les Douze Apôtres tiennent à la main le livre sacré et sont prêts à partir aux quatre coins du monde. Et ce monde est représenté dans toute sa diversité : dans huit caissons, disposés en demi-cercle en bordure supérieure du tympan, on peut reconnaître les peuples d'Asie (de gauche à droite), d'abord deux apôtres en train d'écrire (sans doute les évangélistes Luc et Marc, lesquels, n'étant pas des Douze, ne figurent pas dans la scène centrale), puis les Juifs, les Cappadociens, les Arabes semble-t-il, qui partagent leur case avec les Cynocéphales censés habiter aux Indes ; à droite, les Phrygiens, les Byzantins, un homme tenant une lance renversée, et les Arméniens chaussés de cothurnes.
Dans la première voussure entourant ce tympan, les signes du zodiaque alternent avec les travaux des mois.
Au linteau, on a représenté à gauche les peuples d'Europe (Hyperboréens pêcheurs de poisson, Barbares chasseurs à l'arc, et Méditerranéens agriculteurs) et à droite les peuples d'Afrique (on reconnaît au milieu un Pygmée montant à cheval à l'aide d'une échelle, et à droite un peuple aux longues oreilles, Panotéens ou Antipodes ?) marchant vers le centre, c'est-à-dire l'Église du Christ, symbole de leur conversion. Ces peuples connus et inconnus se dirigent ainsi vers deux personnages de haute taille placés aux pieds du Christ et qui doivent les amener à ce dernier ; il s'agit de saint Pierre, reconnaissable grâce à sa clé, et saint Paul, les deux piliers principaux de l'Église.
Notez que ce tympan correspond aux cartes de géographie de l'époque, où les trois continents sont disposés en T ; elle est bien orientée, car l'Asie se trouve dirigée au levant de la basilique, l'Europe au nord et l'Afrique au sud. Un double trait ondulé sous les pieds des Apôtres figure les deux fleuves principaux, le Danube (séparant l'Europe et l'Asie) et le Nil (séparant l'Afrique et l'Asie) ; à moins qu'on n'ait voulu représenter les mers Noire et Rouge, qui ont les mêmes fonctions. Le cube sous les pieds du Christ symbolise sans doute la ville de Jérusalem, au centre du monde.
Au trumeau de ce portail central se dresse la statue de saint Jean le Baptiste, précurseur du Christ. Il tient de la main droite son traditionnel plateau, portant l'agneau mystique surmonté de la croix.
Descente de l'Esprit saint à la Pentecôte et la mission universelle des apôtres (1120-1140). Calcaire, portail central, tympan.
Le Christ dans sa mandorle (1120-1140). Calcaire, portail central, tympan.
Groupe d'apôtres à droite du Christ (1120-1140). Calcaire, portail central, tympan.
Les portails latéraux du narthex

- Le tympan et les voussures du portail sud est consacré aux scènes de l'enfance du Christ d'après les récits des évangiles de Matthieu et de Luc. Dans le registre supérieur du tympan est représenté conformément à la tradition byzantine, la Vierge assise de face, tenant l'Enfant Jésus sur les genoux. Celui-ci reçoit les présents des Rois mages : l'or, l'encens et la myrrhe, symboles de sa royauté, de sa divinité et de la Passion à venir.
Tympan et voussures (1120-1140).
Calcaire, nef, portail sud.
Registre supérieur du tympan (1120-1140).
Calcaire, portail sud.
L'Ange à l'olifant (1120-1140).
Calcaire, portail sud, piédroit de gauche, chapiteau no p. 7.

- Le tympan et les voussures du portail nord représente deux scènes liées à la Résurrection du Christ. Le registre supérieur représente l'Ascension. Les onze apôtres, dont les têtes ont été brisées en 1793, sont animés par une crainte religieuse et mus par un souffle ascensionnel qui soulève le bas de leurs tuniques en leur donnant cette forme appelée « pli en cloche » caractéristique d'un atelier clunisien au moment où s'élèvent les portails monumentaux de Cluny et de Vézelay.
- Le registre inférieur du tympan du portail nord retrace l'épisode de l'apparition du Christ aux deux disciples d'Emmaüs, et se développe en trois temps.
Le portail nord et bas-côté (1120-1140). Calcaire, nef.
Le portail nord s'ouvrant sur la nef.
Une des piles du narthex avec ses 4 colonnes engagées et ses chapiteaux. Ici : Samson terrassant le lion.
La nef romane

(1120-1140), calcaire, nef.

Plus longue (62 m) que celle des grandes cathédrales françaises comme Notre-Dame de Paris (60 m) ou Notre-Dame d'Amiens (54 m), la large nef est impressionnante. Plus claire que le narthex, elle apparaît comme un long chemin vers le chœur.
Cette nef romane fut achevée en 1140, sous l'abbatiat de Ponce de Montboissier.
Comme dans le narthex, son élévation est à deux niveaux (grandes arcades donnant sur le collatéral, et fenêtres hautes). Elle comporte dix travées dont neuf avec des voûtes d'arêtes séparées par des arcs-doubleaux en plein-cintre, supportés par des colonnes à trois étages. Elle comporte deux bas-côtés, voûtés d'arêtes eux aussi et reposant sur des colonnes à chapiteaux historiés. Les arcs-doubleaux sont bicolores du fait de l'alternance entre les claveaux clairs et les claveaux foncés qui les composent.
La dernière travée de la nef, qui jouxte le transept est voûtée d'ogives, ceci pour ménager une transition avec la croisée du transept où débute la partie gothique de l'édifice (chœur et transept). Elle est donc plus haute que les travées de la nef précédentes.
La nef frappe par sa grande clarté, si on la compare avec d'autres sanctuaires romans. Cela est dû à plusieurs facteurs : la position de l'édifice au sommet d'une colline abondamment baignée par les rayons du soleil, la présence de fenêtres hautes donnant directement dans le vaisseau et aussi larges que le permettait la technique romane, l'absence de vitraux également, et les collatéraux, eux aussi dotés de baies de bonne dimension.
Dépouillée de mobilier et de vitraux, les seuls ornements de l'édifice sont constitués par les décors sculptés liés à son architecture, ce qui accentue l'horizontalité des lieux : frise d'oves, chapiteaux étonnamment et superbement décorés des colonnes et bases des piles élégamment travaillées. Séparant les deux niveaux de l'édifice un joli ruban plissé court sous les voûtes tout au long des murs gouttereaux, enjambant les abaques (ou tailloirs) des puissantes piles.
Narthex et nef.
Narthex et nef de la basilique (photographie prise en 1981).
La nef.
La nef et sa voûte romane pendant un office religieux.
Une des ailes de la nef.
Les parties hautes de la nef vues depuis le collatéral sud : au premier plan, la 5e pile côté sud dont le chapiteau représente David et le lion, en arrière-plan, les fenêtres hautes du côté nord de la nef surmontant les arcades donnant sur le collatéral nord.
Les voûtes d'arêtes qui recouvrent la large nef sont rarement utilisées sur d'aussi grandes portées dans l'architecture romane. Cette technique est généralement réservée aux collatéraux. Ce procédé présente dans tous les cas l'avantage d'alléger la pression sur les murs porteurs et donc de permettre la création de fenêtres plus grandes (quoiqu'encore de taille assez réduite comme le montrent les photos). Mais il ne résout pas le problème des poussées et du poids. Ainsi à Vézelay, la déformation (le devers) des murs est bien visible si l'on se place dans le chœur. Elle était inévitable si l'on considère l'énorme poids de 45 tonnes par travée que les murs devaient supporter. Cette déformation fut rapidement constatée à l'époque, si bien qu'on dut maintenir la voûte, d'abord grâce à des tirants de fer traversant la nef, puis au XIIIe siècle par de solides arcs-boutants extérieurs. Notons que le narthex, puissamment épaulé par ses hauts collatéraux à étage, et doté en outre de voûtes à berceau brisé très surélevées, n'eut pas le même problème et n'a donc pas eu besoin d'arcs-boutants.

Pour un sanctuaire comme Vézelay qui recherchait avant tout la lumière, l'évolution vers le gothique était indispensable, et c'est ce qui advint rapidement avec l'édification dès la fin du siècle d'un chœur et d'un transept gothique, soixante-cinq ans seulement après le début de la construction romane de cette nouvelle église.
Les chapiteaux de la nef
Les colonnes engagées dans les piles de la nef (et du narthex), sont surmontées de superbes chapiteaux sculptés datant du XIIe siècle. Ces remarquables sculptures datent des années 1125-1140, c'est-à-dire de l'époque du roi Louis VI le Gros et de son fils Louis VII le Jeune. Ils montrent l'extraordinaire maîtrise de la pierre dont firent preuve les sculpteurs bourguignons du Moyen Âge.
Les chapiteaux sont parfois, mais rarement sculptés de feuillages ; ils sont pour la plupart historiés et représentent une série de thèmes et sujets bibliques, mythologiques ou fantastiques d'une grande richesse (parmi les plus célèbres, on peut citer le fameux Moulin mystique). On trouve aussi un certain nombre de thèmes moralisants, avec à l'avant-plan le châtiment des méchants. Enfin d'autres chapiteaux décrivent certains épisodes de la vie des saints.
L'ensemble des 118 chapiteaux de la basilique (94 pour la nef et 24 pour le narthex), probablement réalisés par un atelier de cinq maîtres-sculpteurs, est le plus important de la Bourgogne avec celui de la cathédrale Saint-Lazare d'Autun. Parmi eux, seuls huit ont été refaits au XIXe siècle. Les fragments originaux de ces derniers se trouvent alors au musée lapidaire. Les chapiteaux refaits se remarquent aisément à la couleur blanche de la pierre.
Parmi les sujets apparaît l’Enlèvement de Ganymède par Zeus, sujet païen et homosexuel. Certaines rares scènes sont obscures et n'ont pas encore été interprétées.
_Basilique_Sainte-Marie-Madeleine_-_Int%C3%A9rieur_-_Chapiteau_-_106.jpg.webp)
L'un des chapiteaux représente le frère Eugène ouvrant sa robe de moine sous l'œil d'un juge et d'une femme, découvrant ses seins. Selon Chloé Maillet, ce chapiteau constituerait une trace historique de la question des transitions de genre, abordant le fait qu'une personne assignée femme à la naissance a pu vivre en prenant l'identité sociale d'un homme au Moyen Âge[24].
L'Enlèvement de Ganymède : Zeus, se transformant en aigle, l'enlève pour en faire son amant et l'échanson des dieux
Adam et Ève, le serpent et le péché originel.
Les Pélicans (1120-1140), calcaire, nef, parties hautes, côté nord, chapiteau no 90.
Hérode et Hérodiade
Hérodiade demande la tête de saint Jean Baptiste à son époux.
Moïse et le veau d'or
À droite, un homme apporte une chèvre pour la sacrifier au Veau d'or chevauché par un démon ; à gauche, Moïse brandit un bâton et les Tables de la Loi (6e pile côté nord).
La Conversion de saint Eustache ou de saint Hubert
(3e pile, côté sud de la nef).
Mort du mauvais riche
deux démons s'emparent immédiatement de son âme. Sous le lit du mort se trouve un serpent, symbole du Mal.
Mort du pauvre Lazare
(le personnage de la parabole de l'évangile de Luc, et non celui ressuscité par Jésus); son âme monte au ciel dans une mandorle, accueillie par deux anges.
Les chapiteaux du narthex
Tout aussi splendides que les chapiteaux de la nef, ceux du narthex datent de la même époque et traitent le même type de thèmes. Ils sont en général en excellent état de conservation.
L'un d'eux, (avant-nef 31) représentant un guerrier terrassant un monstre, a été souvent interprété comme un Saint Georges. Les autres faces de ce chapiteaux indique plutôt une représentation tirée du livre de Job, interprété comme une figure du combat spirituel, assimilant le moine à un chevalier du Christ. Dans la littérature clunisienne - chez Pierre le Vénérable ou Julien de Vézelay - ce thème est mis en parallèle avec la figure de David, bien présente dans d'autres chapiteaux de la basilique[25].
Saint Pierre et saint Paul priant pour la conversion du monde entravé par le Mal.
La Décollation de saint Jean-Baptiste. Le bourreau lui tire les cheveux avant de lui trancher la tête
Le prophète Nathan et David : Nathan lui reproche sa relation avec Bethsabée, épouse d'un de ses généraux
Saint Benoît ressuscitant un enfant sous l'œil incrédule de son père
Le chœur gothique


Construit à la fin du XIIe siècle, le chœur est de style gothique de transition, ou gothique primitif. Son élévation est à trois niveaux : grandes arcades, triforium aveugle et fenêtres hautes. Légèrement plus étroit que la nef, il est baigné d'un flot de lumière et donne une grande impression de verticalité, ce qui contraste avec la moindre clarté et les lignes essentiellement horizontales de la nef. Les voûtes ne reposent plus que sur les faisceaux des piles. Les épais murs porteurs, tels ceux de la nef romane, devenus inutiles, ont été remplacés par de grandes baies vitrées.
Il est entouré d'un déambulatoire sur lequel s'ouvrent neuf chapelles peu profondes, gothiques elles aussi et dotées de grandes fenêtres vitrées, contribuant à inonder le chœur de lumière. Le déambulatoire prolonge, au-delà du transept, les collatéraux de la nef, mais il est nettement plus étroit que ces derniers.
Le chœur proprement dit se termine par une abside semi-circulaire à cinq pans, auxquels correspondent cinq chapelles rayonnantes qui communiquent avec le rond-point du déambulatoire.
La pierre blanche utilisée pour la construction du chœur accentue encore son éclatante luminosité.
Le chœur est plus élevé que la nef. Sa hauteur sous voûte est de 22 mètres contre 18,55 pour la nef. Le triforium comporte des baies géminées, séparées par une paire de colonnettes jumelées et surmontées d'un arc en plein cintre. Les fenêtres hautes sont à lancette simple. Les voûtes semblent en contradiction avec les grandes arcades des travées correspondantes : ainsi la voûte de la seconde travée est quadripartite alors que le niveau de la grande arcade correspondante est divisé en deux par une colonne supplémentaire au sud et une double colonne au nord.
Le transept
Construit en même temps que le chœur, c'est-à-dire pendant les dernières années du XIIe siècle, en style gothique primitif, le transept n'est pas très large.
Son élévation est similaire à celle du chœur et comporte donc trois niveaux (grandes arcades, triforium et fenêtres hautes). Chaque croisillon comprend deux travées, qui sont dissymétriques au sud : la première travée possède une baie géminée au niveau du triforium, tandis que la seconde n'a qu'une baie simple ; de plus, seule la première travée comporte une grande arcade. Chacune des travées du transept (nord et sud) possède des voûtes quadripartites.
Les extrémités des deux croisillons ne possèdent pas de grands portails. Au nord, il existe seulement une petite porte précédée d'un escalier. Au sud le premier niveau du mur de fond du croisillon consiste en un haut mur qui jouxte le bâtiment de la salle capitulaire. Le deuxième étage des extrémités de ces croisillons est constitué de belles balustrades pleines ou bahuts décorés d'une série de petites arcatures aveugles, sur lesquels sont posées les colonnettes d'un triforium. Comme au niveau du chœur, ce triforium est constitué de baies géminées coiffées par un arc en plein cintre. Enfin le troisième et dernier étage est constitué de trois baies d'une seule lancette chacune, qui contribuent à éclairer le transept.
La crypte
.jpg.webp)

XIe – XIIe siècles, calcaire, crypte.

De plan trapézoïdal, la crypte est couverte de voûtes d’arêtes supportées par deux files de colonnes qui déterminent trois vaisseaux de sept travées. Une première partie, romane, à l’Occident, est communément attribuée à la campagne d’Artaud. Elle compte trois travées délimitées par six colonnes. Une seconde partie fut réalisée durant l’abbatiat de Gautier à une époque contemporaine de l’érection du transept actuel, entre 1207 et 1216, et s’étend dans le prolongement de la première, à l’orient. Elle mesure 19 mètres de long sur 9 mètres 20 de large.
Elle est couverte de voûtes d'arêtes qui retombent sur douze colonnes de grosseur inégale.
Un récit nous raconte que lorsque l'abbé Geoffroy entreprit de démolir la crypte pour l'agrandir, la sainte fit disparaître l'église dans l'obscurité la plus totale et terrifiante, décourageant toute nouvelle tentative de construction[26].
Une architecture signifiante
La symbolique du chœur
La structure du chœur s'inscrit dans la logique du symbolisme de la lumière, suivant l'idée que le Christ est la « Lumière du Monde ». En ce sens, ce chœur apparaît comme le parfait aboutissement de la construction de la basilique, et remplace fort avantageusement l'ancien chœur roman.
Le dépouillement est extrême, l'austérité est quasi totale. Pas de vitraux, pas de chapiteaux historiés, pas de mobilier tant soit peu luxueux. Par de grandes baies, une lumière abondante se répand et enveloppe tout.
Un symbolisme caché règne en ces lieux, et contraste avec l'enseignement fort explicite de la sculpture romane de la nef. Ainsi onze colonnes encadrent ce chœur ; elles représenteraient les onze apôtres rassemblés autour du Christ, lors de la Dernière Cène, après le départ de Judas. Ainsi encore, au triforium, un pilastre remplace les colonnettes jumelées au niveau de la deuxième travée à droite. Il s'agirait du symbole de Judas, la section carrée du pilastre symbolisant le Mal[27].
Les alignements de la lumière naturelle

En 1976 après plus de huit siècles, Hugues Delautre (1922-2008), l'un des pères franciscains chargés depuis 1966 de la desserte du sanctuaire de Vézelay, découvre que non seulement l'axe d'orientation de La Madeleine, mais aussi sa structure interne, ont été déterminés en tenant compte de la position de la terre par rapport au soleil. Chaque année la fête de Jean-Baptiste révèle les dimensions cosmiques de cette église : au plein midi du solstice d'été, quand le soleil est en culmination par rapport à la terre, la lumière venue des fenêtres sud projette des flaques lumineuses qui s'établissent dans le plein milieu de la nef avec une rigoureuse précision[28],[29],[30],[31] (voir photographie ci-dessus).
Pour atteindre la signification de ce signe objectif le père Hugues Delautre se réfère aux textes du XIIe siècle (Suger de Saint-Denis, Pierre le Vénérable, Honoré d'Autun) et habite longuement le monument avec la mentalité symbolique de l'époque pour laquelle le sens se révèle à partir des signes sensibles par la voie anagogique (littéralement ascension vers l'Incréé) où le regard dépasse la réalité du signe pour atteindre cet au-delà du signe qui est Dieu et son mystère. Se laissant informer progressivement par la lumière de Vézelay, il conclut ainsi : « Le bâtisseur, fasciné par la beauté de l'univers qu'il reconnaît être l'œuvre de Dieu, n'a-t-il pas édifié cet « atrium du Ciel » à l'image de Dieu qui a créé « dans l'ordre, la mesure et la beauté » ? Il pourrait affirmer comme Salomon qui a construit le Temple de Jérusalem dans une totale soumission aux normes directrices fixées par Dieu : « Tu m'as ordonné de bâtir un temple, sur ta montagne sainte… une copie de la Demeure sacrée que tu fondas dès l'origine » (Sagesse 9, 8). La nef est l'expression de la soumission admirative de l'homme roman à l'égard de l'ordonnance du plan divin exprimé dans la création tout entière. « Les Cieux racontent la gloire de Dieu et l'œuvre de ses mains le firmament la clame » (Psaume 18, 2) ».
Les dépendances monastiques
Le bâtiment monastique
- Les élévations extérieures
Des bâtiments monastiques nécessaires à la vie en communauté des moines de Saint-Benoît et de leur abbé, les dortoirs, le réfectoire, le château de l'abbé, les écuries, le cloître, la boulangerie, la forge et autres lieux d'intérêts pratiques, il ne reste rien. Seul le bâtiment accolé au bras sud du transept est parvenu jusqu'à nous, mais toutes ses différentes parties ne sont pas précisément identifiées. Il s'agit de la salle capitulaire, de ce qui devrait être le scriptorium au premier étage de l'actuelle sacristie et d'un petit bâtiment à trois lancettes en plein cintre :
- la salle capitulaire ;
- le scriptorium ;
- les fragments conservés au musée de l'œuvre.
La basilique aujourd'hui
Basilique et colline de Vézelay *
| |
La basilique et la colline | |
| Pays | |
|---|---|
| Type | Mixte |
| Critères | (i) (vi) |
| Superficie | 183 ha |
| Zone tampon | 18 373 ha |
| Numéro d’identification |
84 |
| Région | Europe et Amérique du Nord ** |
| Année d’inscription | 1979 (3e session) |
| Année d’extension | 2007 (31e session) |
| * Descriptif officiel UNESCO ** Classification UNESCO |
|
Animation spirituelle
Depuis 1993, les Fraternités monastiques de Jérusalem ont en charge l'animation spirituelle de la basilique en y célébrant trois fois par jour la liturgie, en renouant avec les liturgies de Noël, du dimanche des Rameaux, des vigiles pascales et de la grande fête de Pâques. Moines et moniales assurent aussi les visites de la basilique tout au long de l'année et vivent de leur travail à mi-temps (pour préserver leur vie contemplative) en assurant le secrétariat des visites, le secrétariat de l'accueil spirituel. Ils accueillent tous ceux qui le désirent dans deux hôtelleries (Maisons Béthanie et Saint-Bernard). Ils tiennent un magasin monastique, « La Pierre d'angle ». La basilique de Vézelay est également une paroisse dont le recteur est François Tricard en 2014.
Tourisme : quelques chiffres
En 2013 la basilique Sainte-Marie-Madeleine de Vézelay a reçu 829 653 visiteurs[32].
C'est le premier monument visité en Bourgogne devant la basilique du Sacré-Cœur de Paray-le-Monial (475 000), et les Hospices de Beaune (411 148)[33].
Notes et références
Notes
- Sain et al (2015) donnent l'année 887 pour le raid viking remontant la Cure et détruisant le monastère de Saint-Père. Voir Sapin, Henrion et Büttner 2015, p. 63.
- Canon 4 du concile de Chalcédoine : « Les moines ne doivent rien entreprendre contre l'avis de leur évêque ni fonder un monastère, ni se charger d'affaires temporelles »
Références
- « Église de la Madeleine », notice no PA00113932, sur la plateforme ouverte du patrimoine, base Mérimée, ministère français de la Culture
- Vaast-Barthélemy Henry, Mémoires historiques sur la ville de Seignelay, département de l'Yonne, depuis sa fondation au VIIIe siècle, jusqu'en 1830 ; précédés de recherches sur l'état du pays au temps des Gaulois et des Romains ; et suivie d'une notice historique sur les communes environnantes, avec les principales pièces justificatives, vol. 1 et 2, Avallon, Éd. Comynet, , 369-370 p. (lire en ligne). (les deux volumes sont sur la même page web liée.)
- Sapin, Henrion et Büttner 2015, p. 60-61.
- Jean-Luc Flohic, Le patrimoine de la Basilique de Vézelay, Flohic Éditions, , p. 18
- G.A. Hückel, « Les poèmes satiriques d'Adalbéron », dans Luchaire (dir.), Mélanges d'histoire du Moyen-Âge, Université de Paris, , p. 49-184. Cité dans Étienne Delaruelle, « L'idée de croisade dans la littérature clunisienne du XIe siècle et l'abbaye de Moissac », Annales du Midi, vol. 75, no 64, , p. 419-440 (lire en ligne, consulté le ), p. 422-423, note (9).
- Viviane Huys Clavel, Image et discours au XIIe siècle. Les chapiteaux de la basilique Sainte-Marie-Madeleine à Vézelay, L'Harmattan, Paris, 2009 (ISBN 978-2-296-10497-6)
- Lebeuf 1743, vol. 1, p. 394.
- Abbé Étienne et Michel Faillon, Monuments inédits sur l’apostolat de sainte Marie Madeleine en Provence, et sur les autres apôtres de cette contrée : saint Lazare, saint Maximin, sainte Marthe, les saintes Marie Salomé et Jacobé, vol. 2, , p. 754.
- The Relics of Saint Marie-Magdalene at La Sainte Baume, sur ewtn.com.
- M. Chaume, présentation de quelques ouvrages autour des Fontaines Salées de Saint-Père-sous-Vézelay, dont : René Louis, « Recherches topographiques sur le champ de bataille de Vaubeton, d'après la Chanson de Girart de Roussillon », dans Romania, t. LXII, 1936, p. 173-195.
- Cartulaire de l'abbaye de Saint-Martin d'Autun, charte n° CL.
- Vatican. registri. Secret., 502, fo 437-438. Transcrpt. : Ludivine Saulnier, Neil Stratford, op. cit., 1984, p. 10, no 48.
- Aimé Chérest, op. cit., 1976, p. 6.
- La Sculpture oubliée de Vézelay : catalogue du musée lapidaire par Lydwine Saulnier, Neil Stratford, chapitre 2, Droz, 1984
- Prosper Mérimée (1803-1870) - Vézelay, sur senat.fr.
- Musée de l’œuvre, Viollet-Le-Duc.
- La Croisade pour la Paix à Vézelay 1946-2006 : 60 ans, sur routesdevezelay.cef.fr.
- Basilique et colline de Vézelay, sur whc.unesco.org.
- Eugène Viollet-le-Duc, Dictionnaire raisonné de l'architecture française du XIe au XVIe siècle, article « Porche ».
- Eugène Viollet-le-Duc, dessins de la basilique de Vézelay sur WikiMedia Commons.
- « Portail de la nef dans le narthex », notice no APMH052416, sur la plateforme ouverte du patrimoine, base Mémoire, ministère français de la Culture
- Adolphe N. Didron et Édouard Didron, Annales archéologiques, vol. 15, Librairie Archéologique de Didron, (lire en ligne).
- Voir Michel Zink, « Moulin mystique. À propos d'un chapiteau de Vézelay : figures allégoriques dans la prédication et dans l'iconographie romanes », Économies, sociétés, civilisations, no 3, , p. 481-488.
- Chloé Maillet, « Des seins de moine à Vézelay. Eugène-Eugénie, nouvelle image transgenre au xiie siècle », Gradhiva. Revue d'anthropologie et d'histoire des arts, no 28, , p. 220–243 (ISSN 0764-8928, DOI 10.4000/gradhiva.3897, lire en ligne, consulté le )
- Marcel Angheben, « Le combat du guerrier contre un animal fantastique. À propos de trois chapiteaux de Vézelay », in Bulletin Monumental, 1994-3, p.245-256, (lire en ligne).
- Miracula S. Mariae Magdalenae, in Analecta Bollandiana, 17, 1898, p. 177-178.
- Photo du pilastre symbolisant Judas, au triforium du chœur
- Hugues Delautre, Solstices à Vézelay, Zodiaque no 122, Abbaye Sainte-Marie de la Pierre-qui-Vire (Yonne), Les ateliers de la Pierre-qui-Vire, dépôt légal 1240-3-79, octobre 1979, p. 1-6 (Regard renouvelé sur l'église de la Madeleine) suivi de p. 7 à 16 (Entretien au sujet des éclairages des solstices à Vézelay)
- Hugues Delautre, Jacqueline Gréal, La Madeleine de Vézelay, Guide et plans, Éditions Franciscaines, Lescuyer, Lyon, (ISBN 2-85020-001-8), 1981, p. 27-29 (Architecture cosmique et mystique de la lumière), traduit en anglais, allemand, espagnol, italien et néerlandais
- Raymond Oursel, Lumières de Vézelay, éditions Zodiaque, abbaye Sainte-Marie de la Pierre-qui-Vire (Yonne), (ISBN 2-7369-0203-3), 1993, p. 21 et 105-109 (Les taches solaires)
- Damien Voreux, Vézelay, Éditions Ouest-France, Edilarge, (ISBN 2-7373-1608-1), 1994, p. 15-18 (Les jeux de la pierre et du soleil)
- http://www.bourgogne-tourisme-pro.com/sites/default/files/commun/ORT/La-frequentation/SP_PORTEUR_Je_veux_connaitre_leschiffrescles_BOURGOGNE_SITES_2013.pdf
- http://www.bourgogne-tourisme-pro.com/la-fr%C3%A9quentation
Annexes
Sources
- Francis Salet, La Madeleine de Vézelay : Étude iconographique par Jean Adhémar, Melun, Librairie d‘Argences, , 141 p.
- (en) Rosalind Kent Berlow, Spiritual Immunity at Vézelay (ninth to Twelfth centuries), vol. 42, The Catholical Historical Review, , 573–588 p. (ISSN 0008-8080, OCLC 5792113594), chap. 4
- Lydwine Saulnier et Neil Stratford, La sculpture oubliée de Vézelay, Genève-Paris, société française d‘archéologie, .
- Francis Salet, Cluny et Vézelay : l'œuvre des sculpteurs, Paris, société française d‘archéologie, .
- Marcel Angheben (dir.), Le patrimoine de la basilique de Vézelay, Charenton-le-Pont, Flohic, coll. « Le patrimoine mondial », , 319 p. (ISBN 978-2-84234-043-8, OCLC 46471990).
- Arnaud Timbert, Vézelay : le chevet de la Madeleine et le premier gothique bourguignon, Rennes, Presses Universitaires de Rennes, coll. « art & Société », , 282 p. (ISBN 978-2-7535-0759-3).
Bibliographie
: document utilisé comme source pour la rédaction de cet article.
- Jean de La Monneraye, Sainte Marie-Madeleine de Vezelay, Paris, Horizons de France - Société Française des presses suisses, 1968.
- Raymond Oursel, Bourgogne romane, (7e édition), Édition Zodiaque, La Pierre-qui-Vire (France), 1979.
- Raymond Oursel, Bourgogne romane, (8e édition), Édition Zodiaque, La Pierre-qui-Vire (France), 1986, 284 pages. Au sujet de Vézelay : p. 253-284 ; plan : p. 280.
- Dom Claude Jean-Nesmy, Vézelay, Édition du Zodiaque, 1991, 88 p., nomb. ill. (ISBN 2-7369-0185-1).
- Alain Erlande-Brandenburg, Histoire de l'architecture française, t. 1, Éditions du Patrimoine, Mengès, Paris, 1995 (ISBN 2-85620-367-1).
- Christian Sapin, « Vézelay - Abbaye Sainte-Marie-Madeleine (Yonne) », dans les Dossiers d'archéologie, juillet-août 2002, no 275.
- Gérard Denizeau, Histoire visuelle des Monuments de France, Larousse, Paris, 2003 (ISBN 2-03-505201-7), p. 53.
- Édith de la Héronnière (photogr. Geneviève Ameilhau et Pierre Pitrou), Histoires lapidaires : Vézelay, Périgueux, Fanlac, , 89 p. (ISBN 978-2-86577-261-2, OCLC 717708357, BNF 41139100).
- Maï Le Gallic, Le tympan de Vézelay: les peuples de la terre dans la pensée et l'art roman, Thèse soutenue sous la direction de Xavier Barral I Altet, Université européenne de Bretagne, 2012, p. 128.
- Francis Salet, « La Madeleine de Vézelay et ses dates de construction », Bulletin monumental, t. 95, , p. 5-25 (lire en ligne)
- Christian Sapin, « La crypte de Vézelay (Yonne) : quelle place pour les reliques de Marie-Madeleine et la statue de la Vierge ? L’apport de l’archéologie du bâti et des sources textuelles », Bulletin du Centre d'études médiévales, Auxerre, 2015, no 19-1 [lire en ligne].
- Christian Sapin, Fabrice Henrion et Stéphane Büttner, « Les origines de l’abbaye de Vézelay et les débuts de son organisation claustrale (IXe – XIIe siècle) », Varia, no 45, , p. 59-84 (lire en ligne).
- Stéphane Büttner, « Vézelay. Une lecture archéologique de l'abbatiale romane », dans Bulletin monumental, 2016, no 174-4, p. 499-501 (ISBN 978-2-901837-65-7).
Articles connexes
Liens externes
- Ressources relatives à la religion :
- Ressources relatives à l'architecture :
- Ressource relative aux beaux-arts :
- Ressource relative à la musique :
- (fr) Site officiel de la basilique de Vézelay
- (fr) Fiche de la basilique de Vézelay sur romanes.com et plan
- (fr) Fiche de la basilique sur le site Structurae
- (fr) Page de Vézelay sur le site Bourgogne romane
- (fr) La basilique de Vézelay sur le site lormes.net
- (fr) Célébrations nationales Consécration de la Madeleine de Vézelay
- (fr) Étude sémiotique des énonciations visuelles architecturales de la basilique de Vézelay et leur impact sur notre compréhension du discours historique produit par les images romanes
- La Maison du Visiteur, lieu d’interprétation de la symbolique de la lumière, de l'architecture et de la sculpture de la basilique de Vézelay
| Étape précédente Lieu de rassemblement |
Pèlerinage de Saint-Jacques-de-Compostelle Via Lemovicensis |
Étape suivante Ville de départ Vézelay |
- Portail du catholicisme
- Portail du monachisme
- Portail de l’architecture chrétienne
- Portail des monuments historiques français
- Portail du patrimoine mondial
- Portail de l’Yonne
- Portail du Morvan
_-_2021-05-17_-_2.jpg.webp)


