Boîte à fumée
La boîte à fumée est l'élément le plus en avant de la chaudière d'une locomotive à vapeur.

Caractéristiques
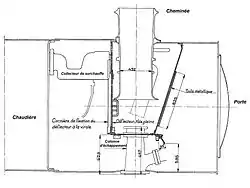
Après avoir traversé le faisceau tubulaire de la chaudière, les gaz de combustion sont récupérés dans la boîte à fumée et chassés à l'extérieur par la cheminée, grâce à la vapeur d'échappement des cylindres sortant sous pression depuis la colonne d'échappement positionnée dans l'axe de la cheminée, tout en provoquant une dépression dans la boîte à fumée aspirant ces gaz depuis le foyer.
En France

L'avant de la boîte à fumée est fermé par une porte qui fut en France de différents modèles, dont un des plus connus fut le modèle type « Nord » qui sera repris sur les locomotives construites sous la SNCF en étant désigné par le terme « unifié ». Elle comporte une penture en forme de Y "couché" maintenant la porte fixée en son centre, et dont le volant de fermeture se trouve positionné à l'extrémité de ce Y. Des taquets de verrouillage répartis sur sa circonférence en assurent l'étanchéité. L'autre type le plus répandu est maintenu de manière plus conventionnelle par deux charnières latérales, et équipé d'un volant de fermeture central permettant le verrouillage de la porte sur une barre fixée horizontalement dans la boîte à fumée, équipement caractéristique notamment des machines du PO[1]. La première série des 141 R était équipée d'une porte de boîte à fumée à volant de fermeture central (voir la photo de la 141 R 420).
La penture en Y de la porte type « Nord » présente l'avantage de supprimer cette barre horizontale de verrouillage inhérente au volant de fermeture central, fixée en travers de la boîte à fumée, et très gênante pour accéder à l'intérieur lors des vidanges ou des travaux de petits entretiens.
On trouve également accumulé dans la partie basse de la boîte à fumée des machines à vapeur chauffées au charbon, un résidu imbrûlé de ce combustible appelé aussi fraisil. Ce résidu est vidangé manuellement lors du stationnement des locomotives au dépôt, puis utilisé dans les chaufferies des dépôts ou des bâtiments annexes (par exemple : les dortoirs).
Aux États-Unis

Les boîtes à fumée des locomotives américaines sont équipées d'un dispositif de nettoyage automatique appelé Self-cleaning.
Il s'agit d'un caisson composé de tôles, muni d'une ouverture grillagée sur sa partie avant, et installé sur les deux tiers supérieurs du diamètre interne de la boîte à fumée, depuis le dessus de la tuyère d'échappement tout en englobant la base de la cheminée. Ce dispositif oblige donc les gaz venant du foyer à passer sous ce caisson en balayant le fond de la boîte à fumée, là où ont justement tendance à s'accumuler les résidus imbrûlés, et dont l'évacuation forcée se fait par la partie grillagée du caisson, avant d'être expulsés par la cheminée.
Ce système permet de simplifier les opérations de remisage et d'entretien des locomotives en s'affranchissant, entre autres, des récurrentes opérations de vidanges de boîtes à fumée, ou de ramonages des tubes de la partie basse de la chaudière, régulièrement bouchés par l'accumulation du fraisil sur les échappements classiques[2]. Les 141 R de la première tranche seront équipées de ce dispositif qui donnera entière satisfaction.
Les portes de boîtes à fumée des locomotives américaines sont de formes différentes des modèles européens. Du fait de l'application du Self-cleaning, elles sont moins souvent ouvertes et sont de petites dimensions sans volant de fermeture central. Elles sont maintenues fermées par grand nombre de taquets de verrouillage leur donnant un aspect caractéristique, mais il existe toutefois des exceptions où sur des locomotives américaines, on peut observer des portes de boîtes à fumée de grandes dimensions se rapprochant du type européen, comme sur les Big Boy de l'Union Pacific.
Notes et références
- La machine locomotive, par Édouard SAUVAGE et André CHAPELON, 1947, Librairie Polytechnique Ch. Béranger.
- Les 141 R Ces braves américaines, par Bernard COLLARDEY et André RASSERIE, 1995, Éditions La Vie du Rail.
Galerie d'images
Face avant de la 150 P 13 avec sa porte de boîte à fumée type unifié
La 141 R 420 avec sa porte de boîte à fumée à volant central
La 241 A 65 avec sa porte de boîte à fumée à volant central
Vidange de la boîte à fumée de la locomotive polonaise ex PKP OL 49-12. La pelle du chauffeur contient du fraisil
Voir aussi
Articles connexes
Liens externes
- Portail du chemin de fer