Clepsydre à tambour
Une clepsydre à tambour est une ancienne horloge à eau d'un type particulier. Cette appellation de « clepsydre » est un abus de langage, mais elle correspondait au vocabulaire en usage à l'époque où elle était utilisée en France (XVIIe et XVIIIe siècles). Disparue aujourd'hui, l'appellation lui est restée.
- « Cette horloge hydraulique a pour fonction principale de donner l'heure et accessoirement de servir de réveil.
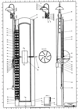
- La fonction « donner l'heure » est assurée par un tambour hydraulique régulateur qui descend lentement suspendu à une cordelette fixée au châssis et enroulée autour de son axe ; cet axe, comme une aiguille, marque durant sa course les heures sur une échelle graduée située sur l'un des montants du bâti.
- La fonction « réveil » est assurée par un éventuel mécanisme qui peut varier suivant le constructeur ou l'époque »[1].

Description et analyse

Au XVIIIe siècle, la ville de Sens, dans l'Yonne, était un centre de production de ces horloges. En 2015, subsistent au moins cinq exemplaires de ces machines sénonaises. L'étude s'appuie sur un modèle de clepsydre existante, illustrée dans l'introduction et conservée à la Société Archéologique de Sens dans les réserves des Musées de la ville.
Le tambour hydraulique
Le tambour est le cylindre moteur de la machine, il assure, de par sa conception, la régularité du mouvement.
Constitution
Une source sénonaise, Maucler, nous indique, en 1828[2] :
- « Cette horloge est composée d’un tambour ou barillet d’étain bien soudé. Le barillet a ordinairement 5 à 6 pouces de diamètre [soit entre 135 et 162 mm ; trois clepsydres sénonaises ont un tambour de diamètre 132 mm et une épaisseur de 57 mm] divisé intérieurement par sept cloisons du même métal, soudées exactement tant aux deux fonds qu’à la bande circulaire ; ces cloisons ne vont pas du centre à la circonférence, elles sont un peu transversales et tangentes à un cercle intérieur, chaque cloison est percée d’un petit trou proche la circonférence du tambour. L’eau se met à la quantité de 7 à 8 onces [soit 210 à 240 g d’eau] et doit être distillée. »
L’inclinaison curieuse des cloisons permet le déversement rapide de l’eau dans les compartiments inférieurs lors de la remontée manuelle du cylindre, la laissant toujours à peu près dans une même position d’écoulement.
- Représentations
La clepsydre dessinée par Maucler, 1828.
La gravure de Montucla dont s'est inspiré Maucler, 1778.
Matériau
Le corps est préconisé en étain pur (Sn, Stannum) avec parfois un apport d’aloi (cuivre Cu : 1,5 à 2,5 %), qui améliore sa dureté. Cet alliage courant a la particularité de ne pas s’oxyder aux températures d’usage. Ce matériau ne commence à se dégrader sérieusement qu’au dessous de –13 °C. Ce fut là, la première qualité des tambours sénonais soulignée par Tarbé, autre source locale :
- « Les montres à l’eau, confectionnées à Sens [par des potiers d’étain] étaient en étain ; à Paris et ailleurs, on en fabriquait en fer blanc, mais elles avaient l’inconvénient de se rouiller et étaient moins justes et bien moins recherchées que celles de Sens[3]. »
Ce choix est essentiel pour ne pas encrasser les trous de passage dans les cloisons et pour éviter de corrompre l’eau emprisonnée.
Ce matériau qui se travaille facilement (point de fusion : 232 °C) était transformé, à partir de lingots, soit en feuilles laminées pour les constructions soudées, ou alors, était directement moulé pour obtenir des pièces aux formes compliquées[4]. Les tambours de clepsydres sénonaises ont connu ces deux procédés d’obtention.
La construction soudée
.jpg.webp)

Les tôles sont tracées, découpées, percées et assemblées par soudage. Ce procédé long et délicat est réservé aux prototypes et aux travaux unitaires, mais nul doute que les premiers tambours ont été réalisés principalement par ce procédé.
Jacques Ozanam[5] traduit le procédé employé vers 1669 en Italie ; Nicolas Bion[6] le décrit, lui, dans le principe, pour des tambours d’argent ; Dom Jacques Alexandre[7] le détaille sur six pages dans son ouvrage écrit vers 1705. Synthétisons l’ensemble des textes : Le tambour est composé de deux platines, ou flancs, avec au centre un trou carré pour y placer un tuyau carré recevant l’axe. Sur l’une de ces platines, deux trous : l’un pour le remplissage de l’eau, l’autre pour avoir une prise d’air lors d’une éventuelle vidange. Les cloisons sont taillées en pointe d’écusson pour faire entonnoir et amener l’eau vers le petit trou central percé avec une “aiguille à soierie”. On soude alors les 7 cloisons sur une des deux platines, ainsi que le tuyau carré, puis la seconde platine est soudée sur le sous-ensemble précédent. Après équilibrage, il reste à entourer l’ensemble d’une bande qui sera soudée, en tournant, à chaque cloison et latéralement aux deux platines, puis pour finir sur elle-même. Le tambour est terminé. Il est très caractéristique avec un petit renflement central qui correspond à l’entonnoir et un petit bourrelet de chaque côté de la surface latérale, là où s’est effectuée la soudure. Il reste à mettre le juste nécessaire d’eau distillée – environ le cinquième du volume – avec parfois « de l’eau de vie bien claire » comme antigel ; les deux trous seront bouchés à la cire ou soudés adroitement pour terminer. Pour identification donc, la boîte soudée se caractérisera par ses trois renflements sur la surface latérale et par deux trous éventuels sur un flanc[4].
La construction moulée

Les potiers d’étain excellaient dans le moulage de toute pièce en étain ; pour la fabrication, ils pensaient d’abord « moule ». Il est fort probable que ce type de construction ait vu le jour autour des années 1700. Bion décrit un peu le procédé dans son ouvrage de 1709, repris en 1716. Mais le grand spécialiste fut incontestablement Salmon qui développe le sujet sur plus de sept pages de texte serré, avec une grande planche d'illustration, le tout in-folio. Il y décrit dans le détail la fabrication moulée qui vient, sans conteste des fabricants de Sens comme il nous le répète à maintes reprises[8] :
- Fabrication moulée
Exemple d'un moulage coquille.
Processus d'obtention d'un tambour moulé ; l'ensemble des pièces sont moulées à l'exception de l'axe 9.
Les moules sont à l’époque en « cuivre », plus précisément en laiton, matière facile à travailler. Un moule est constitué de plusieurs parties, comme nous pouvons le voir sur une planche de l’Encyclopédie. Dans le principe, ce type de moulage n’a pas changé aujourd’hui. Il s’agit du moulage dit « coquille ». Suivons le détail du processus sur la planche illustrée ; toutes les pièces sont moulées !
- en 2. : un fond alésé – pour recevoir la bobine 8. – et le bandeau-enveloppe forment la première pièce. Elle comporte des témoins pour localiser les cloisons percées – détail a – de 7. Le tout est pré-positionné par les témoins et un tube accessoire, puis soudé ;
- en 3. : le second fond moulé avec ses entailles 6. est introduit sur les cloisons, soudé extérieurement sur ces dernières et au bandeau sur sa circonférence. Il est enfin arasé ;
- en 4. : Par tournage, l’ensemble est entièrement dressé, le logement de la bobine est percé bien dans l’axe sur le fond 6. L’ensemble peut alors recevoir la bobine centrale 8. qui sera soudée.
Terminé le tambour pourra alors recevoir une quantité d’eau, toujours constante, qui sera introduite par une petite ouverture pratiquée en périphérie avec un petit fer. Cette ouverture sera rebouchée définitivement à l’étain - par une astuce de potier bien gardée, mais aujourd’hui connue - et escamotée par polissage. L’axe 9. est lui aussi surmoulé, détail b ; différents diamètres sont proposés pour ajuster la descente du cylindre à l’échelle des heures.
La vignette accompagnant la planche illustre différentes phases du processus d’assemblage.
Pour identification, comme pour le procédé d'assemblage, la boîte moulée se caractérisera essentiellement par un bandeau-enveloppe bien cylindrique, avec des sillons éventuels laissés par l’outil de tournage sur toutes ses surfaces et d’autres traces hypothétiques, en périphérie, d’un seul trou de remplissage.
Pour information, une série de radiographies industrielles montre la répartition des sept cloisons, les soudures et les petits trous de passage dans les cloisons (rehaussés sur la figure). Ces trous ont 0,8 mm de diamètre[9].
- Radiographies
Radiographie avec les soudures en blanc et un grain de soudure libre.
Radiographie sur chant ; les trous de passage dans les cloisons sont rehaussés en noir.
À ce jour, curieusement, il n'existe aucun exemplaire de clepsydre signé Salmon.
Le marquage des heures

L’axe, comme une aiguille, marque durant sa course les heures sur une échelle horaire qui peut être de différents types :
- forme verticale située sur l’un des montants du bâti (ou sur les deux). C’est le type le plus classique. Quatre clepsydres sénonaises adoptent cette solution ;
- forme de cadran d’horloge à une aiguille, telle l'exemplaire du Musée des Arts et Métiers de Paris ;
- forme mixte, illustrée sur la planche XXVI de L'art du potier d'étain de Salmon (voir supra). Cette dernière est suffisamment explicite pour se passer de commentaire. Ces deux dernières formes à cadran ne semblent pas avoir eu une diffusion importante, on ne trouve aucune trace de la forme mixte par exemple ;
- Citons, pour finir et pour l’anecdote, le déplacement sur plan incliné (fig. 16 de la planche XXVI), qui s’inspire de certaines pendules mécaniques originales.
Echelle verticale
Les heures (voir figure d'introduction) sont ici localisées sur le montant de gauche mais pourraient l’être, de la même façon, sur le montant de droite, des détails de fixation le confirmant. Les heures, dans leur ensemble, sont imprimées sur des vignettes indépendantes en papier-carton. Ces étiquettes forment un ruban. Elles sont reliées entre elles par deux fils sur lesquels elles peuvent coulisser avec un jeu d’environ une vignette-et-demi au total. Ce jeu doit permettre un ajustement de l’heure à la descente réelle du tambour.
De haut en bas on trouve sur les vignettes le nom du constructeur « HUNOT », suivi des heures [9…12…6…12…6…9 ] soit 25 heures au total, ce qui laisse une plage d’une heure pour remonter l’horloge journellement. La dernière étiquette indique l’origine du constructeur « À SENS »[10].
Fonctionnement

Prérèglage
L’axe qui sert d’aiguille ou d’index, traverse le tambour (voir figure). Il est dans sa partie centrale de section carrée et penté pour ajustement légèrement serré dans son logement. Chanfreiné sur une de ses arêtes, il laisser passer et coince la cordelette accrochée à deux pitons en haut du châssis.
L’ensemble tambour, axe, cordelette, réglé bien horizontalement, la cordelette est alors enroulée autour de l’axe comme pour « rouler une cigarette ». L’opération rapide - environ 30 secondes à partir de la position basse - mettra le tambour en position haute. Après quelques instants de recherche de son nouvel équilibre le tambour descendra d’un mouvement supposé uniforme devant l’échelle des heures.
Mouvement moteur
Voyons, sous une forme simplifiée, comment le mouvement s’établit. Le tambour est isolé mécaniquement, suspendu par la corde enroulée autour de son axe ; une portion de « camembert » est supposée représenter le volume d'eau contenue entre des parois sans trou d'écoulement.
- Le système isolé est soumis à l'action de deux forces extérieures : Fp la résultante du poids du tambour et du volume d'eau, appliquée au centre de gravité du système d'une part, et à Ft l'action de tension de la corde sur le cylindre d'autre part. Le système va alors trouver une position d'équilibre où les deux forces seront égales, opposées et sur la même ligne d'action avec une résultante des moments nulle.
- Supposons maintenant un petit trou d'écoulement dans la partie basse de la cloison inférieure. L'eau va s'écouler lentement par cet orifice entrainant un petit déplacement instantané du centre de gravité vers la gauche et le bas, donc un déséquilibre du système qui va avoir tendance à retrouver sa position d'équilibre ; il va alors tourner autour du centre instantané de rotation CIR dans le sens inverse des aiguilles d'une montre, et ceci, continuellement, tant que la corde ne sera pas entièrement déroulée[11].
- Mouvement moteur
Équilibrage statique du tambour.
Position de déséquilibre après un petit écoulement.
Dans le vrai cylindre, le débit de l’eau, au passage des petits trous, n’est pas régulier. En général, il dépend en partie de la hauteur de fluide situé au-dessus. Mais la loi des écoulements se complique du fait du passage simultané par plusieurs trous, et parce qu’un écoulement peut s’effectuer aussi dans un compartiment déjà rempli jusqu’au trou de passage. Il en résulte que le mouvement du cylindre n’est pas un mouvement circulaire uniforme. Mais la multiplication des compartiments tend à compenser les variations de débit donc les variations de vitesse angulaire et par-là même rend le mouvement approximativement régulier, en moyenne[12].
Exactitude
Les auteurs de l’époque soulignaient que cette machine était « très exacte » mais aussi qu’elle était « sujette à aller un peu plus vite en été qu’en hiver. ». Devant l’impossibilité, aujourd’hui, d’avoir une copie à l’identique de ces tambours, voyons ce que nous disent deux constructeurs actuels.
- J-M. Ansel, concepteur de cadrans solaires monumentaux a réalisé une clepsydre pédagogique en plexiglas pour l’observatoire-planétarium de Ludiver de Beaumont-Hague (50). Il écrit dans un article « La descente de 90 cm s’effectue en 2 h 40 min… L’instrument est d’une précision surprenante… »[13] ;
- A. Sterling, professeur honoraire d’hydraulique à l’université libre de Bruxelles en a fait construire un modèle, lui-aussi, en plexiglas, en 1997. Il écrivait alors : « Je viens d’en reconstituer une… Le cadran, solidaire de l’axe, tourne exactement à un tour à l’heure… Elle est exacte à une minute près par vingt-quatre heures. » ; information précieuse. Malheureusement il ne nous donne pas de détails supplémentaires sur la régularité du mouvement.
Des essais d'écoulement ont été entrepris pour savoir si cette machine était vraiment sujette à aller un peu plus vite en été qu’en hiver ; à un accroissement de 10° de température (en négligeant la pression atmosphérique) correspond une avance de une minute par heure, soit vingt-quatre minutes par jour. Cette information chiffrée est à considérer à sa juste valeur, le modèle n’étant pas similaire au tambour réel, mais l’hypothétique variation ne semble pas négligeable. À titre de comparaison, à cette époque, les horloges mécaniques basiques avaient facilement une variabilité de ± 3 minutes par 24 heures. Pour finir, quelques exemplaires contiennent encore de l'eau en 2015 ! Un propriétaire d'une clepsydre qui fonctionnait encore il y a peu a indiqué que pour éviter le problème lié à la température, la machine était placée dans une pièce située au nord[14] !
La fonction réveil
Sur la clepsydre de référence, cette fonction est assurée par une belle structure d’époque, tout en métal forgé. Un rail solidaire du bâti permet le réglage de la position du mécanisme de déclenchement dit « quatre-de-chiffre ». Lors de la descente du tambour, son axe, à l’heure de réveil choisie (de 9 h à 9 h plus tard), vient appuyer sur le levier de détente qui libère alors un système [cordelette, poids, contre-poids] qui va agir sur le mécanisme de sonnerie situé en haut à gauche du bâti de la clepsydre.
Ce mécanisme de sonnerie à verge à palettes et roue de rencontre est classique depuis le Moyen Âge. On peut remarquer aussi qu'il est strictement identique au mécanisme d’un réveil d’horlogerie dont on trouve l’illustration dans l’Encyclopédie de 1765[15].
- Organes
Système de sonnerie avec mécanisme de quatre-de-chiffre surligné.
Mécanisme de sonnerie à verge à palettes et roue de rencontre.
Analogie dimensionnelle du système de sonnerie avec celui décrit dans l'Encyclopédie de Diderot et d'Alembert de la même époque.
D'autres mécanismes de sonnerie ont pu être adaptés, au gré de l'imagination des concepteurs, à la clepsydre de base.
Production
Les potiers d'étain

En France, les sources bibliographiques sont nombreuses. Les écrits s’étalent sur la période de production, c'est-à-dire de la fin du XVIIe siècle à la fin du XVIIIe siècle :
- Ozanam dans son ouvrage de 1694 apporte quelques informations personnelles, mais c’est à travers une traduction annexée et commentée d’un écrit italien de 1669 qu’il nous éclaire le plus sur toutes les horloges mues par les « éléments » que sont l’eau, la terre (le sable), l’air, le feu ;
- Bion explique assez amplement, sur quatre pages, comment sont construites par soudage ou moulage ces « horloges à l’eau… qui servent de réveille-matin » ; une clepsydre est présente sur le frontispice de son ouvrage Usage des instruments mathématiques ;
- Dom Alexandre décrit dans le détail la fabrication originelle par soudage et nous dit qui a « inventé » ce type d’horloge ;
- Salmon, lui-même potier d’étain, est le grand spécialiste ; il répond pratiquement à toutes les interrogations sur la fabrication de son époque.
Les principaux centres de poterie sont à l’époque Paris, Lyon et Bordeaux. Sur Sens, ils n’étaient qu’une petite communauté : on y recense 10 potiers vers 1700, 4 en 1760, 2 ou 3 en 1800 et 1 vers 1860. Par comparaison, à Paris en 1773, on en dénombrait environ 150 avant 1690.
La famille Regnard, suivie de celle des Jean-Baptiste Hunot, sont pratiquement les seuls à commercialiser les horloges à eau sénonaises qui ont eu, du fait de leur simplicité et de leur prix un réel succès pendant plus d’une centaine d’années. Plus tard vers 1750, sur Chartres, Salmon et d'autres potiers ont élargi le champ de diffusion de ces machines[16].
- Clepsydres sénonaises
Modèle original marqué Regnard.
La même après adjonction d'un système de réveil.
Clepsydre Hunot, fonctionnant encore il y a peu.
Clepsydre fonctionnant encore ! Collection particulière.
Prix et coût
Salmon indique en préambule à son article sur les clepsydres : « Nous jouissons d’une horloge à eau d’un prix très modeste. » Cette information est minime. Seul, Millin, en 1807, nous donne une valeur chiffrée : « Le prix de chacune est de 3 à 6 francs, selon la grandeur[17]. »
Renseignement précieux. Quelle valeur cela représentait-il ? À l’époque, un journalier avait 0,25 F par jour pour vivre en plus de la nourriture, un ouvrier gagnait en moyenne 1 F à 1,5 F c'est-à-dire qu’il lui fallait trois jours pour s’offrir son “horloge”. À titre de comparaison, une horloge-réveil basique, comme celle illustrée dans l’Encyclopédie, pouvait valoir 150 F, une montre fabriquée à Ferney-Voltaire vers 1775 : 100 F. L’horlogerie mécanique, à cette époque commençait à fabriquer en grande série. Le prix fini d’une montre basique en acier devait tourner autour de 20-25 F. Quant à la clepsydre de cette étude, vendue au minimum 3 F, sans système de sonnerie supposé, elle devait coûter 2 F qui pouvaient grossièrement se répartir en 1 F pour le tambour et 1 F pour le châssis, les fournitures et la main-d’œuvre[18].
Utilisateurs
Les écrits sur les clients sont rares. Les sources sénonaises nous indiquent surtout les destinations de prestige : Millin, 1807 : « Beaucoup d’étrangers [en] font acquisition comme objet de curiosité… [on] en fait souvent des envois en Russie, en Espagne et jusqu’en Amérique… Plusieurs habiles horlogers de Genève ont fait venir de ces montres d’eau, afin de compléter leur collection. » ; Maucler, 1828, précise : « on a placé une de ces machines ingénieuses dans une salle de l’hôtel de ville [de Genève] » ; Tarbé, 1833, reprend toutes ces destinations et ajoute : « On en expédiait en général dans tous les pays méridionaux où l’on ne pouvait pas conserver longtemps des horloges de fer et de cuivre ». Les autres auteurs du XVIIIe siècle ne sont pas plus prolixes ; dans leur description fonctionnelle de la machine, ils insistent sur le fait que celle-ci est silencieuse et qu’elle trouve naturellement sa place dans les chambres et notamment dans celles des malades. Curieusement, rien sur les clients ordinaires. Seul, Salmon écrit : « Il n’y a pas un siècle que les potiers d’étain font de ces montres pour l’usage du Public, & particulièrement du Cultivateur… Mais comme si cette classe infatigable de Citoyens avait moins d’intérêt à connaître les heures du jour que celles où elle doit interrompre son repos pour aller prévenir dans les champs le retour du soleil, ils ne font l’achat d’une pareille horloge que pour se procurer, par un petit supplément de mécanisme qu’ils y ajoutent comme ils l’entendent, un réveille-matin plus sûr que le chant de leur coq. » On peut donc en conclure que c’était un objet « grand public » qui avait sa place aussi bien en ville qu’à la campagne. Le petit monde ecclésiastique ne les méprisait pas, des curés de campagne en possédaient probablement pour la célébration des offices. Le séminaire de Joigny en possédait une et le monde de la justice aussi ; c’est donc que ces machines étaient banales et diffusées « dans le circuit de la Province » de Sens et de Chartres soit en Bourgogne, Brie et Beauce [19].
Quantités fabriquées
Tout d’abord, voyons la période de production. On voit les premières horloges à eau vers 1690, Tarbé indique : « C’est un potier d’étain nommé Regnard, qui en fabriqua une grande quantité. Ses petits-fils [Nicolas Charles Félix et Louis Antoine, vers 1775] en ont continué la fabrication et le commerce, jusqu’à nos jours… Aujourd’hui, [en 1833], ce genre d’industrie est totalement abandonné ; le débit en était déjà devenu presque nul depuis près d’un demi-siècle [soit vers 1780], par l’immense quantité et le bas prix des montres à ressort…» Pour être exhaustif, soulignons que les almanachs « Tarbé » de la ville de Sens indiquent, jusqu’en 1843-46, dans la liste des commerçants sénonais : « Fabrique de montre d’eau et en étain : Pâris »
Quant aux « grandes » quantités produites, Salmon précise :
« On a fait de ces montres en étain une quantité prodigieuse… [à Sens et] Chartres, lieu de ma résidence, où M. Lainé en a fait, & où j’en fais encore tous les jours »

Devant ces maigres informations, on reste dans l'expectative. Il semble que la production était de type anecdotique. Pour argumenter en ce sens, on peut s’appuyer d’abord sur le nombre d’exemplaires subsistants – environ une vingtaine recensés aujourd'hui, exemplaires que l’on trouve principalement dans les musées – ensuite sur le fait que Salmon écrit à une époque où la poterie d’étain et les horloges à eau commencent à devenir obsolètes. On peut ajouter un petit texte de Reverchon de 1895 qui signale que « dans la région de la Brie, on en a retrouvé une vingtaine, mais toutes incapables de fonctionner. » ; Mathieu Planchon qui a écrit sur l'horloge[20] signale aussi dans la même revue[N 1], en 1897 qu’il en possède une et qu’elles ne sont pas très rares. Ces textes de la fin du XIXe siècle iraient plutôt contre cette hypothèse de production dérisoire. En effet, du fait même de leur banalité, ces machines, devenues obsolètes devaient être cassées pour récupérer l’étain des tambours, tout comme les anciens matériels agricoles qui attendaient au fond d’un bâtiment le passage du ferrailleur. D’où leur disparition progressive et quasiment complète aujourd’hui. Vis à vis des hypothèses envisagées – au regard des textes qui parlent de “grandes quantités”, de “quantités prodigieuses”, du fait aussi, qu’il en subsistait encore une vingtaine en Brie vers 1900 – il ne semble pas déraisonnable de supposer avec prudence que le millier d’exemplaires ou le double ait été atteint dans chaque centre de production[21]…
Histoire
Aux origines


Le mouvement rotatif d’un tambour régularisé par un fluide est connu par l’image dès le XIIIe siècle. Une miniature d’une Bible moralisée française (vers 1250) nous montre, entre autres, ce type de moteur qui actionne un ensemble de clochettes.
Suit, quelques années plus tard, la première description d’une horloge à tambour rotatif, accompagnée de schémas explicatifs. Elle est tirée d’une traduction des Livres du savoir astronomique, ensemble de traités d’origine arabe compilés en 1276 sous le patronage du célèbre roi Alphonse X. Cette horloge, à mercure, est censée actionner l’araignée d’un astrolabe par une démultiplication appropriée. Une tentative de reconstitution moderne a montré que ce type d’horloge avait pu fonctionner, mais sa fiabilité et sa précision n’étaient guère satisfaisantes[22].
D’après Bedini[23], il faudra attendre la fin du XVIe sièclepour que ressurgisse, en Italie, ce type de clepsydre à tambour décrit par Parisio dans un petit livre rare publié à Venise en 1598. Ici, le tambour est simple et ne comporte qu’une cloison rayonnante pour le passage de l’eau[N 2].
Plus tard, Salomon de Caus est cité par Anton Lübke[24] pour avoir présenté la machine dans un ouvrage de 1615 intitulé : Les raisons des forces mouvantes… Lübke, pour accompagner sa citation, présente la gravure d’une clepsydre et une coupe de tambour comportant 5 compartiments séparés par des cloisons apparemment fermées. Mais, de cette horloge, aucune trace, tout au moins dans l’édition de 1615 consultée[25].
Revenons en Italie, foyer du développement de cette machine. Les mécanismes décrits par différents auteurs – notamment Eschinardi et Campani cités par Bédini – évolueront, au cours du XVIe siècle, pour parvenir finalement à un ensemble de procédés très divers réunis dans le traité des horloges élémentaires de Martinelli paru à Venise en 1669 et traduit plus tard par Ozanam[26].
Tambour à une cloison de Parisio, 1598.
Clepsydre de Salomon de Caus, 1615.
Horloge-réveil à eau d'Eschinardi, 1669.
Différents tambours de Martinelli, 1669.
Une clepsydre à tambour de Martinelli, 1669.
En France, vers 1690
Dès la décennie suivante, on peut constater, en France, l’intérêt provoqué par cette curiosité :
- « Cet art ne tarda guère à passer les monts, et dès l’année 1673. on vit en France des Horloges à eau dans les Cabinets des Curieux. Du reste, les Français, nés pour perfectionner les inventions de leurs voisins, enchérirent sur les plus habiles artistes de l’Italie ; & M. Hubin, émailleur du Roi, exécuta en verre une clepsydre admirable d’un pied & demi de haut, & qu’on peut régler à la mesure du temps qu’on voudra[27]. »
Cette clepsydre, probablement de type « Amontons » ressemblait plutôt à un baromètre.
La première pendule d’eau, à priori française, qui soit connue, nous vient d’un dénommé Graverol, de Nîmes, chargé de mission en Italie. Il rapporte dans ses bagages une machine et toutes les informations nécessaires pour en construire une. Ce modèle, inspiré de Martinelli – d’après Graverol lui-même – sera perfectionné par deux Français cités, l’un de Toulouse et l’autre de Comenge. Graverol décrit longuement ce spécimen illustré dans Le Journal des Savants de 1691[28], ceci, dans l’espoir évident d’une commercialisation future. Parmi les détails, nous trouvons : les heures affichées à la mode italienne, le tambour en fer blanc, dont la coupe laisse apparaître un cloisonnement non fonctionnel (peut-être pour préserver le secret de sa fabrication), sur le haut du châssis, une devise « Esse incipit dum desint esse » qui enveloppe un phénix stylisé (traduction approchée : « Dévoré par les flammes, il ressuscite ».
La clepsydre de Graverol est la seule clepsydre connue qui porte ce type de devise que l’on retrouve souvent sur les cadrans solaires.
Plus tard, en 1694, Ozanam sera le premier à évoquer nos sénonaises : « Si je connaissais l’inventeur d’une montre si simple et si extraordinaire, je lui rendrais ici la justice qui lui est due. Je sais seulement que les premières qu’on vit à Paris en l’année 1693 furent apportées de Bourgogne : j’en ai vu une d’étain, qui avait été faite à Sens[29]. »
Enfin, voici Dom Alexandre, bénédictin de la congrégation de St-Maur, qui fit profession de foi à l’abbaye de Vendôme. Il écrit dans son Traité général des Horloges rédigé possiblement dès 1705 :
« le tambour horaire que le R. P. Charles Vailly Religieux Bénédictin de la congrégation de S. Maur a fait construire en la ville de Sens en Bourgogne par le sieur Regnard Etaminier de ladite ville en 1690. […] Le sieur Renard Etaminier de la ville de Sens en a fait & distribué dont tout le monde a été content. »
La clepsydre de Graverol, 1691.
Desin de Dom Alexandre, 1705.
Clepsydre à cadran de Bion, 1716.
Salmon, pour en finir, raconte dans ses notes :
« Un potier d’Etain de l’endroit [Sens], M Renard [Nicolas], disait que c’était un religieux Bénédictin qui avait donné à son père [René] la connaissance de cette machine hydraulique. »
Qui était Charles Vailly ?
- Un premier ouvrage de 1770, l’Histoire littéraire de la congrégation de St-Maur[30] – congrégation de l’ ordre des Bénédictins – nous renseigne sur le personnage : « Dom Charles Vailly, 1646-1726, fit profession à l’âge de 22 ans dans l’abbaye de la Sainte-Trinité de Vendôme […] Il se livra par goût à l’étude des Mathématiques. On ignore les connaissances qu’il y avait acquises, parce qu’il condamna au feu tout ce qu’il avait écrit […] Ce religieux peut être regardé comme le restaurateur de la clepsydre […] Dom Vailly, qui s’était particulièrement appliqué aux Mathématiques pratiques, remarqua les défauts de ces Horloges & travailla sérieusement à les perfectionner. A force d’expériences, de combinaisons & de calculs, il parvint enfin à leur donner le point de perfection, où elles sont à présent. Dans le temps de leur renouvellement, elles furent très en vogue, du moins en France. » ;
- Un second ouvrage : A History of Inventions and Discoveries[31], de 1817, précise, au chapitre « Water Clocks », à propos de Dom Vailly la petite phrase suivante : « Alexander, who was of the same order, seems to have ascribed to his brother Benedictine an honour to wich he was not entitled… », soit : « Alexandre, qui était du même ordre [que Charles Vailly] semble avoir accordé à son frère Bénédictin un honneur auquel il n’a pas droit… » ; suit une argumentation accordant, comme il se doit, à Martinelli la primeur du perfectionnement (le lecteur attentif a très certainement remarqué le propos laudatif du commentateur sur Vailly, et le fait que nos bénédictins-horlogers – Dom Vailly et Dom Alexandre – qui firent tous deux profession à Vendôme puissent être considérés, à double titre, comme frères).
Il n’en reste pas moins très vraisemblable que Charles Vailly ait été impliqué dans l’émergence de ces pendules d’eau qu’il perfectionna – ce fait est d’ailleurs reconnu par les historiens des sciences qui se sont penchés sur les horloges à eau[N 3] – et il est fort probable qu’il soit le religieux de l’abbaye de Saint-Pierre-le-Vif cité par Bouvier[32].
Pour conclure, terminons l’Histoire avec un grand H de “l’invention” de nos clepsydres sénonaises par cette petite histoire :
« Un moine bénédictin de la congrégation de Saint-Maur, Dom Charles Vailly, épris de Mathématiques et curieux de ses applications, vint à Saint-Pierre-le-Vif, abbaye de sa communauté, pour fréquenter la bibliothèque du lieu qui était fort renommée. Il trouva là, dans les nouvelles parutions, un petit livre, d’un frère italien, Martinelli, intitulé “Traité des horloges élémentaires”. Fort intrigué par ces drôles de machines, il voulut, après en avoir compris le mécanisme, en faire réaliser un exemplaire. Il s’adressa alors au potier d’étain de l’abbaye, le sieur Regnard, avec qui il mit au point un prototype en étain à sept compartiments. Devant la magie du mouvement silencieux de la machine et étonné par son exactitude, il encouragea vivement son partenaire à diffuser cette innovation dans le Public… Cette année là, notre moine avait 44 ans. »
Notre histoire ne dit pas ce qu’est devenu le prototype : peut-être a-t-il affiché les heures, discrètement dans la chapelle de l’abbaye, jusqu’à la disparition de celle-ci en 1791 ? ou peut-être a-t-il accompagné silencieusement notre moine, dans sa cellule, jusqu’à sa dernière heure[33] ?
Ailleurs
Il y a bien quelques exemplaires de ces horloges à eau en Allemagne, Espagne, États-Unis, Italie, Royaume-Uni, à Prague. Certaines sont des fabrications locales, d'autres sont d'origine indéterminée, mais toutes ces fabrications sont du domaine de l'anecdotique.
Clepsydre d'origine indéterminée conservée aux U.S.A., vers 1725.
Clepsydre anglaise à cadran rétroéclairable, 1735.
Clepsydre italienne de style… ; h = 1,5 m env., vers 1750 ?
Clepsydre marquée « Oméga », Musée du Locle, Suisse, vers 1825.
Clepsydre conservée au Deutsches Museum, Munich.
Clepsydre tchèque de construction relativement tardive, 1860.
Évolution des tambours

Chronologie simplifiée
- 1277, en Espagne : première illustration d’une horloge à tambour, où le fluide régularisateur est du mercure, dans : Libros del Saber…, traduction de textes arabes, sous la direction d’Alphonse X.
- 1598, en Italie : Parisio décrit une clepsydre à tambour avec cloison unique.
- 1615, en Allemagne et France : Salomon de Caus porte le nombre de cloisons du tambour à cinq, dans : Les raisons des forces mouvantes, (source non retrouvée).
- 1669, en Italie : Martinelli, décrit dans le principe de nombreuses clepsydres mues par les éléments que sont : l’eau, la terre, l’air, le feu, dans : Horloges élémentaires. Il donne quelques éléments de construction.
- 1690, en France : 1re clepsydre à tambour créée par Dom Charles Vailly, dans Alexandre, Jacques, Traité général des horloges, 1734.
- 1691, en France : 1er dessin d’une clepsydre à tambour d’après Graverol.
- 1693, à Paris : 1re clepsydre à tambour citée, venant de Sens, dans Ozanam, 1694.
- 1694 : une clepsydre à tambour de 5 pieds de haut, construite par le Barnabite Timothée, est citée dans Ozanam.
- 1705 : Dom Alexandre est supposé écrire le Traité général des horloges qui sera soumis à approbation en 1720 et qui ne sera édité qu’en 1734. La construction soudée des tambours y est détaillée.
- 1709 et 1716, 1723, 1725, 1752 : Différentes éditions de : Usage des instruments mathématiques de Nicolas Bion, mort en 1733. La construction moulée des tambours y apparaît dès 1716.
- 1725 : Louis Laisné devient maître à Chartres. D’après Salmon, il pourrait être le premier à construire des horloges à eau dans cette ville.
- 1774 : début de la rédaction (envisagée dès 1761) du Potiers d’étain de Salmon, paru en 1788, dans la collection Description des arts et métiers. C’est une mine d’informations.
- 1778 : Montucla reprend les textes d’Ozanam, Récréations mathématiques.
- 1780 : Ralentissement de la production à Sens des horloges à eau, d’après Tarbé dans l’ Almanach de 1833.
- 1788 : Salmon publie L’Art du Potier d’étain.
- 1833 : Abandon à Sens de la fabrication des clepsydres, d’après Tarbé dans l'Almanach de 1833.
- 1846 : Véritable abandon de la fabrication des « montres à l’eau et en étain » par le ferblantier Pâris (période d’activité : 1834-46), d’après Tarbé, dans les Almanachs de 1834 à 1846.
- 1860, à Prague : Romuald Bozek, horloger de renommée construit une clepsydre à tambour !
- 1867 : l’actuelle clepsydre du musée est citée dans les collections de la Société Archéologique de Sens, d’après Juillot, dans le Bulletin de la S.A.S. de 1867.
- 1888 : Planchon et d’autres auteurs décrivent ces machines disparues, avec un œil de curieux et parfois d’ignorants dans la revue Nature conservée au CNAM.
Notes et références
Notes
- La revue La Nature, conservée au Musée des arts et métiers, à Paris.
- Tycho Brahe, qui pestait sur l'inexactitude de ses horloges mécaniques a essayé d'utiliser une clepsydre à mercure, qui ne s'avéra pas meilleure que ses horloges. L'information donnée dans son ouvrage Astronomiæ Instauratæ Mechanica est trop vague pour dire qu'il s'agissait-il d'une clepsydre à tambour.
- Parmi eux, Bedini, Op. cit. est le plus récent.
Références
- Gérard Aubry 2011, p. 385
- (ms) Maucler, Mémoires pour servir à l'histoire… de Sens, Sens, .
- Théodore Tarbé, Recherches sur la ville de Sens, Sens, Tarbé, , p. 179.
- Gérard Aubry 2011, p. 410.
- Jacques Ozanam, Récréations mathématiques et physiques, t. 3, Paris, , p. 220-223.
- Nicolas Bion, Usage des instruments mathématiques, Paris, .
- Jacques Alexandre, Traité général des horloges, Paris, Léonce Laget, , chap. II, § II à V.
- Pierre-Augustin Salmon 1788.
- Gérard Aubry 2011, p. 413-414.
- Gérard Aubry 2011, p. 399.
- Voir par curiosité une démonstration sur le site Goutte que goutte (le fonctionnement d'une clepsydre à tambour) .
- Gérard Aubry 2011, p. 391.
- Voir l'article et la clepsydre pédagogique de J-M. Ansel : accès en ligne.
- Gérard Aubry 2011, p. 391-393.
- Gérard Aubry 2011, p. 395 et 399.
- Gérard Aubry 2011, p. 407-409.
- Aubin-Louis Millin, Voyage dans les départements du midide la France, .
- Gérard Aubry 2011, p. 416.
- Gérard Aubry 2011, p. 415-416.
- Mathieu Planchon, L'Horloge, Paris, H. Laurens, .
- Gérard Aubry 2011, p. 419-420.
- (en) A. A. Mills, The Mercury clock of the « Libros des Saber », vol. 45, coll. « Annals of Science », .
- (en) Silvio A. Bedini, The Compartimented cylindrical clepsydra, vol. 3-2, Spring, coll. « Technologie and culture », .
- Anton Lübke, Die Uhr, Dusseldorf, VDI-Verlag, .
- Salomon de Caus, Les raisons des forces mouvantes, Francfort, J. Norton, (lire en ligne).
- Dominique Martinelli, Traité des horloges élémentaires, Venise, , traduit dans : Jacques Ozanam, Récréations mathématiques, t. 3, Paris, Jombert, (lire en ligne).
- Félix de Juvenel de Carlencas, Essais sur l'histoire des belles-lettres, des sciences et des arts, ; Ozanam, Op. cit. p. 308 ; Le journal des savants, 1674, p. 182.
- Journal des Savants, , p. 99 et 184.
- Jacques Ozanam, Récréations mathématiques et physiques, t. 2, C-A. Jombert, , problème 44.
- Histoire littéraire de la congrégation de Saint-Maur, , p. 516.
- (en) Beckmann, A History of Inventions and Discoveries, .
- Bouvier, Histoire de l'abbaye de Saint-Pierre-le-Vif, Sens, .
- D'après Gérard Aubry 2011, p. 427.
Annexes
Bibliographie
: document utilisé comme source pour la rédaction de cet article.
Gérard Aubry, À la découverte de nos clepsydres : Trois clepsydres sénonaises, t. VII, Sens, Société archéologique, coll. « Bulletin - travaux et chroniques », .
Pierre-Augustin Salmon, L'art du potier d'étain, Paris, Moutard, coll. « Description des arts et métiers, faites et approuvées par MM. de l'Académie royale des sciences », (lire en ligne).
(en) Silvio A. Bedini, The Compartimented cylindrical clepsydra, vol. 3-2, Spring, coll. « Technologie and culture », (lire en ligne).
Articles connexes
Liens externes
- Un texte d' Emily Aleev-Snow
- Une animation du mouvement
- Page de Michel Lalos
- Page de J-M. Ansel
- Page du Musée des Arts et Métiers
- Portail de l’horlogerie