Dessin d'architecture
Un dessin d'architecture est un dessin de tout type technique et nature, utilisé dans le domaine de l'architecture. C'est généralement une représentation technique d'un bâtiment qui associée à d'autres, permet une compréhension de ses caractéristiques, qu'il soit une construction édifiée ou seulement en projet. Ainsi, divers plans forment le cœur d'un dossier de demande d'un permis de construire.
Un dessin d'architecture est toujours une mise en application de principes géométriques, de considérations esthétiques et d'exigences pratiques ; l'ensemble étant encadré par des conventions. La synthèse et la traduction graphique de tous ces impératifs sont modulées selon le mode de réalisation du dessin, depuis le croquis à main levée jusqu'au système informatique le plus sophistiqué.
Un dessin donné appartient habituellement à un ensemble de dessins concernant un même bâtiment ou projet. Dans le cas d'un projet, il est la concrétisation de l'intention du décideur ultime tout en laissant une part au talent propre de l'architecte[1] et même du dessinateur.
Le dessin d'architecture est associé à la carte géographique, à la photographie, à l'écrit sommaire (mémoire), à l'écrit détaillé[2] (devis descriptif), aux relevés (état des lieux) faits avec actuellement un outillage informatique[note 1].



Histoire
Le plus ancien plan architectural connu, gravé il y a environ 9 000 ans sur un bloc calcaire, est le plan détaillé et à l'échelle d'un desert kite jordanien, découvert en 2023 sur le site du kite[3],[4].
Lors de la Renaissance, le dessin s'est établi comme un élément essentiel de la conception architecturale, marquant une transition depuis une approche plus manuelle de l'architecture. À l'époque médiévale, les plans des édifices étaient tracés directement sur le sol, à l'échelle 1:1, pendant la construction des cathédrales. Plus tard, avec l'avènement de bases théoriques solides, l'architecture a été élevée au rang de sciences, redécouvrant des traités antiques tels que celui de Vitruve à la Renaissance. Après les Guerres mondiales, les architectes se sont éloignés du terrain pour se concentrer sur la conception, marquant une séparation entre la conception et la réalisation.
L'utilisation du dessin dans l'architecture a évolué, passant d'un outil de construction à un moyen de conception artistique. Au fil de l'histoire, le rôle de architecte et son utilisation du dessin ont évolué conjointement et séparément. Les dessins médiévaux étaient moins détaillés, laissant place à des décisions sur le chantier, contrairement aux dessins actuels fournis par les architectes. Les élévations de Sansedoni signalent une nouvelle évolution, où l'architecte devient le producteur des documents de conception, marquant la séparation d'avec les constructeurs.
La fonction de l'architecte s'est éloignée de celle de l'artisan pour se rapprocher de celle de l'artiste et du théoricien. Le dessin est devenu crucial, distinguant l'architecte et marquant la différence entre la conception et la réalisation. Les influences de l'architecture proviennent d'une variété de sources, des écoles d'architecture aux expériences personnelles. La curiosité et l'observation sont les moteurs de la création, et l'enrichissement des connaissances contribue à maintenir la fraîcheur dans la conception architecturale. En développant ses capacités, l'étudiant en architecture forge son identité et exprime ses principes à travers des productions graphiques originales[5].
Rôles et usages du dessin

Le dessin a pour rôle de communiquer à la personne concernée un ensemble de caractéristiques très diverses (et dans la plupart des cas sans liaison les unes avec les autres) de ce qui est en projet ou réalisé : la construction d'un bâtiment, d'un monument-sculpture, d'un parc, d'une pièce d'eau, d'un espace scénique… Le plus souvent c'est une sorte de nébuleuse de propriétés essentielles et permanentes attribuées à l'objet fabriqué et le définissant par leur mise ensemble. Il s'agit de traits formulant des formes et des directions, de mots formulant des substances et des qualités, de nombres formulant des tailles et des quantités avec en plus des étiquettes lettres et chiffres de repérage des parties du dessin, l'étiquette du dessin dans l'ensemble projeté.
La précision demandée au dessin (sa finesse des contours, des formes, des traits), son échelle, son support (papier ou numérique), ses cotes intégrées, la symbolique de son graphisme (rien, trait, pointillés, hachures, gris plus ou moins fort, couleur, combinaison des précédents) sont liées au métier de la personne concernée qui doit agir.
L'utilité d'un dessin dépend étroitement du type de personnes qui est amené, professionnellement, à en faire usage. Les priorités qui président à sa conception et sa réalisation ne sont pas les mêmes s'il s'agit d'un urbaniste, d'un organisme d'enregistrement des parcelles bâties par le biais d'un notaire, d'un maître d'ouvrage, maître d'œuvre ou d'un exécutant bâtisseur ou jardinier (artisan ou autre), etc.
Le nombre des intervenants propres à la construction est très variable, même dans les pays très industrialisés ; Selon la technique de l'ingénierie en bureau d'étude présente ou non[note 3].
Et bien entendu le protocole de construction dépend du pays avec ses normes et ses usages très souvent lié au son climat où se situe la chose dont on parle représentée par des dessins. Les rôles et les métiers des intervenants sont soumises aux lois, donc les droits (propriété[7], usage etc.) sont aussi liés aux dessins qui doivent dans les pays occidentaux être archivés (par les concepteurs et par les organismes locaux). Les contrats passés par les intervenants — concepteurs et œuvrants — imposent l'adjonction aux dessins d'écrits détaillés (devis descriptif des objets, matériaux et matières finies obtenus, devis estimatif des coûts préalable)[2].
- Types de dessin

- Selon l'objet : construction existante ou projetée ; ampleur de la construction ; degré de détail ;
- Selon sa place dans le projet : dessin d'observation ou esquisse ; document administratif ; représentation technique[8] ou esthétique ; dessin d'exécution ;
- Selon la pratique et les conventions :
- Plans : représentations selon une coupe horizontale ;
- Projections, telle que l'élévation, projection sur un plan vertical d'une face de l'objet à représenter : façade principale, façade latérale, etc. ;
- Coupes : tout dessin dans un plan quelconque de l'édifice ;
- Lavis : réalisés en supposant la construction éclairée à 45° verticalement et horizontalement Les dessins ainsi lavés se nomment rendus[9].
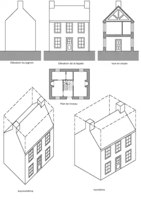
Vues standards

Plan de niveau

Le plan de niveau est le principal dessin d'architecture. C'est une vue de dessus qui représente la disposition des espaces dans un bâtiment, à la manière d'une carte, pour un étage du bâtiment.
Techniquement, c'est une section horizontale d'un bâtiment (conventionnellement à un mètre au-dessus du sol), représentant notamment les murs, les portes et les fenêtres.
À partir du haut Moyen Âge, les circulations — surtout celle des hommes — sont très clairement un objectif architectural depuis la création en Europe du métier d'architecte, celui qui établit la programmation du chantier par le dessin.
Les baies (éclairage du volume créé) étant d'une grande importance, on remarque dans l'architecture classique monumentale les triforiums, les déambulatoires et les coursières et coursives. Il peut donc y avoir les plans de niveau les expliquant.
Il est peu utile de superposer des plans sur des hauteurs différentes à celle de la convention dans l'architecture de type cubique. Le plan de niveau est en général un plan distinct unique par niveau par bâtiment dans le projet.
Il est nécessaire suivant l'époque d'associer les deux : Plan de niveau et Vues en coupe (voir infra); Une architecture dont la conception des volumes évolue avec le temps, des grandes et hautes salles avant le XIXe siècle, aux étages du XXe siècle qui reproduisent une répétition des volumes où on les confond avec niveau. Au XXIe siècle, l'architecture est devenue quelquefois moins cubique, moins « corbuséenne »[note 4].
Élévation


Une élévation est la représentation d'une façade ; l'élévation ne doit pas être confondue avec la façade. C'est la vue la plus commune pour représenter l'aspect extérieur d'un bâtiment. Chaque élévation est nommée selon la position relative à la façade à rue (avant, gauche, droite ou arrière) ou de la position relative aux points cardinaux.
Avec le système de l'entresol, (entre le sol et le premier étage, issu du fenêtrage avec des croisées), l'élévation montre que l'étage ne se confond pas forcément avec le niveau. Le plan de niveau de l'entresol est alors fourni (on voit actuellement à Hôtel de La Trémoille, côté jardin un entresol). L'entresol s'il est un étage carré mis à disposition au-dessus d'un passage sous le bâtiment peut comporter une cheminée avec âtre.
Les bâtiments n'étant quasi jamais de forme rectangulaire, une élévation typique montre tous les éléments d'un bâtiment visibles dans une direction particulière.
Une élévation peut être intérieure. Elle sera forcément une perspective ou une vue en coupe comportant en fond une élévation. Elle permet de voir les galeries et déambulatoires.
Géométriquement, une élévation est une projection orthogonale horizontale d'un bâtiment sur un plan vertical, le plan vertical étant parallèle à la façade choisie du bâtiment.
Vue en coupe
Une vue en coupe représente un bâtiment coupé par un plan vertical. Dans cette vue, chaque élément coupé par le plan est représenté par une ligne en gras. Les coupes sont notamment utilisées pour décrire les relations entre les différents étages d'un bâtiment.
Géométriquement, une coupe est une projection orthographique horizontale d'un bâtiment sur un plan vertical, le plan vertical coupant le bâtiment. Ce plan peut être représenté projeté sur le plan de niveau par un trait nommé indiquant la direction (exemple: coupe A^___^A').
Lorsque la coupe est significative d'une architecture non répétitive, ce qui est visible sur le plan de niveau ou exprimé sur la coupe (exemple: illustration de gauche), on peut la compléter avec d'autres coupes. Cela a été utile pour exprimer de manière sensible ce qui est technique. Ceci est particulièrement utile[note 5] dans l'architecture n'ayant pas un axe de symétrie telle qu'apparait l'architecture à la fin du XXe siècle utilisant les coupoles et les membres de corps de bâtiment non polygonaux[10].
Les vues en coupe fournies par les outils numériques sont particulièrement pertinentes techniquement pour l'architecture d'avant-garde du XXIe siècle[note 4].
Perspectives



Les projections isométriques et axonométriques sont des façons simples de représenter un objet tridimensionnel, en gardant les éléments à l'échelle, et en montrant les relations entre les différents côtés du même objet. Les vues en perspectives permettent de bien appréhender la complexité d'un objet.
La projection axonométrique est un cas général de projection sans point de fuite (toutes les lignes d'une direction donnée restent parallèles).
La projection isométrique utilise un repère dans lequel les trois directions de l'espace ont la même proportion. Ce mode de projection était le plus utilisé jusqu'au milieu du XXe siècle, et est resté populaire jusqu'aux années 1970[11],[12].
Les projections axonométriques sont aujourd'hui remplacés par des vues générés par des outils de CAO à partir d'un modèle tridimensionnel. Il existe différents modes de projection sans point de fuite. Dans chacune de ces projections, la direction verticale est projetée verticalement sur la page : donc aujourd'hui peu utilisés, sauf dans le cas de détails de constructions simples.
La perspective cavalière permet de garder le côté principal sans distorsion, et applique une échelle 0,7 sur la profondeur. Ce mode de perspective a maintenant disparu de l'usage général.
Voir épannelage en ce qui concerne l'urbanisation contemporaine, avec des corps de bâtiments à forme, largeur, hauteur, et longueur de membre imposées au corps de bâtiment.
Plan-masse ou plan de masse
Un plan-masse (ou plan de masse)[13] est destiné à montrer une vue d'ensemble d'un projet, du dessus, incluant les limites de propriété, les accès, et les structures environnantes si elles ont un intérêt pour le plan. Pour un projet de construction, le plan-masse indique aussi les connexions aux réseaux (eau, électricité, communications...).
Le plan-masse est en général utilisé pour représenter un projet avant le dessin détaillé. Son dessin permet de décider de la configuration du site et de l'orientation des nouveaux bâtiments. Il permet aussi de vérifier qu'un projet respecte les règles d'urbanisme lorsqu'elles existent.
Bases géométriques
Le dessin en architecture que l'on appelle le plan géométral (abrév. géométral) s'appuie sur la géométrie élémentaire, la géométrie descriptive, la perspective (perspective axonométrique ; perspective isométrique ; perspective cavalière).
Question d'échelles
- Échelles principales
- Les plans d'ensemble sont dressés à petite échelle : 0,001 (ou 1/1000) 0,002 (ou 1/500) 0,005 (ou 1/200) pour des groupes de bâtiments.
- L'échelle ordinaire d'exécution est de l'ordre de 0,02 (ou 1/50) et adaptée dans le cas de détails.
- Certains objets, certains détails d'exécution, comme un vitrail ou le profil d'une moulure peut être à l'échelle un, grandeur d'exécution.
Le système de projection

- Projection orthogonale (plan, coupe, élévation)
- Projections axonométrique, oblique et conique
Composantes esthétiques

La sensibilité esthétique et l'expérience individuelle s'expriment dans les phases de conception, mais aussi dans la réalisation d'un dessin si celui-ci n'accompagne pas la conception (croquis, esquisse...).
Même s'il s'agit avant tout de traduire des caractéristiques techniques, les compétences graphiques contribuent à la finition ainsi qu'à l'agrément des utilisateurs, sans pour autant laisser place à la fantaisie.
Les compétences d'ordre esthétique sont particulièrement mobilisables dans les représentations du design d'intérieur.
- Qualités graphiques : mise en valeur des structures et reliefs (ombres), de la cohérence du bâtiment ou de son intégration...
- Représentation du design...
- Expression d'un style architectural…
Jusqu'au XXIe siècle, l'esthétique des dessins d'architecture hormis la perspective (pour faire la réclame-publicité) n'a jamais été utilisée comme marque de créativité d'artiste. En art contemporain graphique, certains dessins utilisant ces techniques sont totalement détachées des œuvres concernant l'architecture idéale, mais sont de objets de collection, une production de l'imagination[note 5].
Conventions graphiques
- Conventions de base appelées les normes (DIN, AFNOR, ISA, etc.) permettant la compréhension par tous les acteurs et elles sont reportées dans les systèmes d'outils qui aident le dessinateur
- Types de traits, la fonction convenue donnée à leur vue (interprétation concernant l'objet "lu")
- Cotation ; dimensionnement
- mesurage et cotation « kutsch (règles multi-échelle) »
- Symboles
- représentation du mobilier (anciennement sur les « gabarits-pochoirs » et les « transferts » lettres, chiffres, symboles de mobilier standard)
Préparation des dessins
Conception
- Exploitation du cahier des charges : formalisations ;
- Inventaire des destinataires ;
- Les « principes d'exécution » par le chargé des méthodes ;
- Le « parti pris architectural » ;
Choix du mode de représentation

La représentation peut se faire en mode d'affichage paysage ou en mode d'affichage portrait, sur une feuille de papier de différentes formats A0,A1,A2,A3,A4. Les plus utilisés en dessin d'architecture sont A3,A2 et A1,A0 pour les projets de grande ampleur.
Traçage des dessins
Dessin à main levée

Le dessin à main levée — le croquis — ne s'appuie pas uniquement sur la précision ; il traduit en partie la vision de son auteur et laisse la place à une certaine interprétation[1], même si certains éléments peuvent être rigoureusement définis, au besoin au moyen d'annotations.
C'est un outil graphique de communication dont la maîtrise peut s'avérer utile dans toutes les phases de l'évolution du projet d'architecture.
- En phase préliminaire de relevé, c'est l'outil indispensable pour compléter l'observation et la compréhension de la situation existante.
- En phase de recherche, il permet de vérifier rapidement l'impact des diverses manipulations sur la composition de l'espace.
- Lors de la communication avec le client, il permet de restituer par le croquis des informations parfois difficiles à assimiler par le profane, au départ des documents conventionnels en deux dimensions (plans et coupes).
- Lors de la rédaction des documents d'entreprise (cahier spécial des charges, métrés, etc.) c'est un moyen efficace pour permettre aux entrepreneurs de comprendre rapidement l'intention de l'auteur de projet, sans devoir nécessairement décrypter les documents conventionnels en deux dimensions (plans et coupes).
- Lors de la réalisation des ouvrages, sur chantier, c'est un moyen graphique qui permet de matérialiser une situation existante et de rendre évidentes les décisions prises dans le cadre des procès-verbaux de chantier.
Dessin aux instruments

Le trait est dessiné au crayon avec la précision requise, puis est encré au tire-lignes pour l'exécution finale.
L'usage du tire-ligne est remplacé par celui du stylo tubulaire à encre de Chine pour lequel, l'épaisseur du trait est réglé de façon unique et définitive par le diamètre de la plume tubulaire qui distribue l'encre sur le support. Il faut donc un stylo par épaisseur de trait (les différentes épaisseurs disponibles sur le marché correspondent aux épaisseurs normalisées)
Dessin assisté par ordinateur
Le dessin assisté par ordinateur est de plus en plus exploité en architecture depuis les années 1990. Ces logiciels font un grand usage de la modélisation tridimensionnelle.
En adaptant à l'infini des objets et processus de base, des logiciels spécialisés gèrent toute la chaîne de production graphique et participent dans certains cas au processus de réalisation matérielle.
Ce type d'outil de représentation (DAO) est souvent utilisé comme outil de conception (CAO). Par la mise à disposition d'automatismes d'allocation — qualification des espaces en représentation schématiques ou en représentation perspective, la conception architecturale est facilitée. La formulation ne sort pas alors du champ des possibilités d'accès facile de l'outil commercialisé passé de l'empilement de plans au volumique perceptible et donne incidemment une coloration « numérisé-type » à l'édifice.
Avec le XXIe siècle, sont apparus des logiciels facilitant la réalisation de relevé en dimensions « vraies » de bâtiments existants[note 1].
Reproduction des dessins
Historiquement la reproduction de dessins d'architecture classique faits à la main commence à partir de la technique du poncif : on utilise de la poudre passée dans des trous d'aiguille à travers le dessin à reproduire.
Avec l'usage de papier calque dans l'époque moderne, on est passé à la reproduction par une méthode de tirage utilisant la lumière pour reproduire l'original transparent sur du papier-contact photosensible révélé par de la vapeur d'ammoniac donnant un dessin bleu, d'où le nom de « bleu » du tirage, effectué par des sociétés de tirage installées pour permettre la production des dossiers.
Puis maintenant on est arrivé au dessin numérique qui n'est plus un dessin mais une traduction en algèbre matricielle sur support électronique de la géométrie, d'autres éléments (hétérogènes) que la forme y sont référencés (voir supra) — donnant un dessin imprimé un papier par un procédé magnéto-électrique par des tireuses-imprimantes (machines évoluées à partir des photocopieurs) ou par procédé du jet d'encre sur un film pastique ou encore visualisé sur des écrans.
Notes et références
- (en) Cet article est partiellement ou en totalité issu de l’article de Wikipédia en anglais intitulé « Architectural drawing » (voir la liste des auteurs).
Notes
- Ces logiciels sont installés sur une base de repérage qui permet leur utilisation au cours du temps pour mesurer les fluctuations dimensionnelles pouvant aboutir très probablement au désordre de la structure porteuse fournissant le volume et/ou de l'aspect du décor.
- Il s'agit de l'image projetée en plan des traits générateurs d'une enveloppe conique à double courbure inverse. Un traceur fabriqué dans les années 1960 (Georg Nees).
- En Europe, suivant les missions de responsabilité présentées par les architectes (gradation[6]: dépôt de permis de construire, étude, mission complète) l'ingénierie est très présente avec l'imbrication de la technique et de l'architecture depuis le XXe siècle (voir Jean Prouvé).
- Le déconstructivisme illustré par le Phaeno 2000 de Wolfsburg en Allemagne, par l'archi. Zaha Hadid utilise les outils numériques pour effectuer les vues en coupe nécessaires à la technique de construction.
- Beyret Nicolas,Démarches d'artistes, démarches d'architectes... Comparaison « La rencontre entre art et architecture dépasse largement la simple confrontation du mur et de la toile. L’évolution de ces deux domaines de la création fait, qu’entre eux, il existe beaucoup plus qu’une relation de lieu. L’art œuvre réputée sans fonction, et l’architecture, par nécessité plus contingente, relèvent aujourd’hui de démarches et de statuts parallèles. Car l’architecture revendique sa voie propre, dans l’autonomie de décisions esthétiques, au-delà du respect des lieux et des fonctions. Tandis que l’art devient de plus en plus sensible aux édifices, villes et territoires qui l’accueillent. Il les intègre ou les transforme, fusion subtile ou provocation radicale qui en modifie la perception et l’identité. »(site [http://w3.toulouse.archi.fr/li2a/amc*/ ENSBAT-amc consulté le 1/12/2019).
Table traçante « lissant » du sable, œuvre contemporaine dans un musée.
Références
- Dessin d'architecture (site de l'École Nationale Supérieure d'Architecture de Toulouse mémoires consulté le 30/11/2019).
- Manteau et Leriche 1979, p. 303.
- Kheira Bettayeb et la rédaction, « Voici les plus anciens plans architecturaux ! », sur Journal du CNRS, (consulté le ).
- (en) Rémy Crassard, Wael Abu-Azizeh, Olivier Barge et Jacques Élie Brochier, « The oldest plans to scale of humanmade mega-structures », PLOS One, vol. 18, no 5, , article no e0277927 (DOI 10.1371/journal.pone.0277927).
- Maude Dufrène, « Le dessin d’architecture : variations d’un outil support de la réflexion et du dialogue. Architecture, aménagement de l’espace. 2016. dumas-01624459 »
[PDF], sur dumas.ccsd.cnrs.fr, (consulté le ) - missions d'un architecte en tableau détaillé (site Ordre des architectes, Belgique -consulté le 1/12/2019)
- Didier 1990, p. 16.
- Barbier, Cadiergues et Stoskopf 1979, p. 16Pas de définition pour les concepteurs: Plan d'épannelage et Plan masse sont les seuls répertoriés.
- Denfer, Architecture et constructions civiles, 1893.
- Exemple : Oscar Niemeyer, Eero Saarinen
- W. B. McKay, McKay's Building Construction, Donhead Publishing, 2005. (ISBN 978-1-873394-72-4) A new reprint of the combined three volumes that McKay published between 1938 and 1944. Heavily illustrated textbook of architectural detailing.
- http://www.donhead.com/Look%20Inside/Mckay2.pdf Sample pages of isometric drawings from McKay's Building Construction.
- Le Petit Dicobat, 3e édition, éditions Arcature, Jean de Vigan, p.669
Annexes
Articles connexes
Bibliographie
- M. Buchotte, Les règles du dessin et du lavis pour les plans particuliers des ouvrages et des bâtiments, C. Jombert, Paris, 1722.
- M. Buchotte, Les règles du dessin et du lavis pour les plans particuliers des ouvrages et des bâtiments Nouvelle édition, revue, corrigée & augmentée, C. Jombert, Paris, 1754.
- Jean-Marie Pérouse de Montclos, Architecture méthode et vocabulaire, 6e édition 2007, éditions du Patrimoine, Centre des monuments nationaux.
- Jean de Vigan, Le Petit Dicobat, 3e édition 2005, éditions Arcature.
- Michel Didier, Utilité et valeur de l'information géographique, Paris, Economica, , 255 p. (ISBN 2-7178-1898-7)
- M. Barbier, R. Cadiergues et G. Stoskopf, Dictionnaire technique du bâtiment et des travaux publics, Eyroles, Paris, 7e édition 1979, 151 p.
- M. Manteau et F. Leriche, Cours de métré de bâtiment, tous corps d'état, Eyroles, Paris, 4e édition 1979, 304 p.
- Portail de l’architecture et de l’urbanisme
