Hammarbyhöjden
Hammarbyhöjden est un quartier de la proche banlieue sud de Stockholm en Suède. Il est situé principalement dans le district de Skarpnäck, mais la partie sud appartient au district d'Enskede-Årsta-Vantör. C'est un lieu particulièrement accidenté, le point le plus haut, rue Nathorstvägen, est situé à une altitude de 58 mètres.

Hammarbyhöjden a appartenu à la commune de Nacka mais a été incorporé à la commune de Stockholm le .
Avant les années 1930

Dans le nom Hammarbyhöjden, on reconnait les mots by (village) et höjd (hauteur, colline). Le préfixe hammar signifie quant à lui rocher ou terrain rocheux. Les premières références à Hammarby remontent aux années 1330. Jusqu'au milieu des années 1930, les lieux ne sont pas développés, on y trouve simplement des fermes, des jardins familiaux et des pépinières. C'est dans la partie nord de Hammarbyhöjden qu'est situé le dernier lieu d'exécution publique de Stockholm, où entre autres Johan Anckarström, assassin du roi Gustave III, a été décapité en 1792. La dernière exécution publique y a eu lieu en 1862.
On raconte que pendant les travaux de construction du quartier, on a retrouvé des ossements humains dans le sol. Cela n'a néanmoins pas été ébruité, pour ne pas effrayer les futurs locataires[1].
Années 1930, 40 et 50

Le début des années 1930 est marqué par une crise économique sévère. Dans les pays occidentaux, des millions de personnes ont perdu leur travail. Pendant l'hiver 1932-1933, la Suède compte 200 000 chômeurs. Les enfants sont durement touchés. On estime qu'un tiers d'entre eux souffrent de malnutrition. Le taux de natalité s'effondre, devenant le plus bas du monde occidental[2]. Les familles s'entassent dans des logements exigus. Au centre de Stockholm, la qualité de l'habitat est particulièrement mauvaise. Ainsi, en 1930, seuls 34 % des appartements disposent d'une salle de bain.
Au début des années 1930, 85 % des habitants de Stockholm vivent dans des appartements en location dans le centre-ville. Dans la banlieue, on trouve essentiellement des villas et des lotissements pavillonnaires[3]. À partir de 1935, la politique du logement en Suède est marquée par un effort particulier en direction des familles nombreuses à faibles revenus. Ceci vient en réponse au livre Kris i befolkningsfrågan (Crise démographique) d'Alva et Gunnar Myrdal (tous deux futurs lauréats du prix Nobel). Paru en 1934, cet ouvrage propose entre autres la construction de logements de meilleure qualité.
Le projet d'aménagement du quartier de Hammarbyhöjden est réalisé par le bureau de développement urbain de la ville de Stockholm, qui puise son inspiration dans l'utopie urbaine fonctionnaliste. Les bases d'un tel plan de construction sont présentées lors de l'exposition de Stockholm en 1930. On s'inspire notamment de réalisations urbaines récentes en Allemagne[4]. Axel Dahlberg, directeur de la construction urbaine de Stockholm entre 1933 et 1945, est considéré comme un élément moteur du projet

Le quartier a essentiellement été construit dans les années 1936 à 1939, mais le projet remonte à la fin des années 1920. Les premiers plans d'aménagement sont réalisés en 1930, et concernent la partie nord-ouest uniquement. Les immeubles sont positionnés exactement sur l'ancien site d'exécution. Les premiers bâtiments, situés rue Olaus Magnus väg, sont prêts en . Ils sont dessinés par l'architecte Wolter Gahn pour le constructeur AB Familjebostäder. Seules les familles de trois enfants et plus sont autorisées à s'y installer[5].
Hammarbyhöjden est, avec Traneberg, l'un des premiers exemples de barnrikehus (logements pour familles nombreuses) construits à Stockholm. Il s'agit de logements encadrés par une législation spécifique, dont les loyers, via des subventions de l'état, sont dégressifs en fonction du nombre d'enfants qui y habitent. Les appartements comptent une ou deux pièces et sont d'un bon standard pour l'époque : ils disposent d'une salle de bain et d'une cuisine. De nombreuses familles, qui vivaient à l'étroit au centre-ville, s'y installent. Des crèches sont ouvertes au pied des immeubles.
Tous les appartements disposent du chauffage central. De larges fenêtres laissent entrer la lumière et l'air frais, les cages d'escalier sont équipées de vide-ordures et on crée des aires de jeux et des espaces verts à l'extérieur.
Les travaux se poursuivent pendant plusieurs années. Au milieu des années 1940, c'est la zone située au sud du métro qui est aménagée. On y construit huit immeubles sur des plans des architectes Archibald Frid et Edvin Engström. Dans les premiers temps, le quartier souffre du manque de services et de commerces. On y trouve seulement quelques boutiques au rez-de-chaussée des immeubles. Le cinéma Kaza de la rue Palandergatan, inauguré le , compte 460 places assises et est très apprécié des habitants. Il ferme ses portes en 1965. Les locaux sont ensuite occupés pendant plusieurs décennies par un studio d'enregistrement de la compagnie Thorn EMI.
Dans les premières années, une ligne de bus assure une liaison entre la place Finn Malmgrens plan et le centre de Stockholm. La station de métro Hammarbyhöjden est inaugurée le . La station Skärmarbrink, située 400 mètres à l'ouest de la rue Olaus Magnus väg, avait quant à elle ouvert le [6].
Citation
En 1988, l'un des habitants, dont la famille a emménagé à Hammarbyhöjden en 1938, tenait les propos suivants :
« Maman était vraiment contente, elle trouvait ça fantastique d'avoir de l'eau au robinet. Ce n'était pas comme ça là où on habitait avant. Je l'entends encore chanter en faisant la vaisselle[7]. »
Après les années 1980
Cinquante ans plus tard, les logements pour familles nombreuses se sont transformés en logements pour retraités. Au début des années 1950, Hammarbyhöjden avait connu un pic de population avec 13 360 habitants, mais en 1985 la population n'est plus que de 5 574 personnes. Les enfants sont partis, et les parents sont restés. En 1940, le nombre moyen d'occupants par logement était de 3,59. En 1984, ce nombre est descendu à 1,34, et le pourcentage de retraités est supérieur à 30 %[8]. D'autres banlieues, construites dans les années 1930 et 1940, connaissent une situation identique[9].
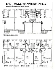
Pour mettre un terme aux départs, le conseil municipal de Stockholm lance en 1983 un programme d'action pour la rénovation des quartiers vieillissants. Parmi les idées avancées : la modernisation des appartements, leur fusion pour créer des surfaces plus grandes, l'installation d'ascenseurs et la construction de logements neufs pour "densifier" les quartiers. Six zones sont déclarées prioritaires pour ce programme de "renouvellement urbain", et Hammarbyhöjden en fait partie[10].
Au cours des années 1980, le quartier est rénové et modernisé, grâce une nouvelle fois à des subventions et à des prêts subventionnés de l'état. De nouveaux immeubles sont construits, sans toutefois que soient atteints les objectifs initiaux. Dans les années 2007 et 2008, on construit en particulier à l'est de la station de métro Blåsut.
Noms des rues
La plupart des rues du quartier sont nommées en hommage à des explorateurs, des ethnologues ou des écrivains voyageurs.
| Rue | Personnalité | Années |
|---|---|---|
| Björnståhlsgatan | Jakob Jonas Björnståhl | 1731-1779 |
| Finn Malmgrens väg | Finn Malmgren | 1895-1928 |
| Forsskålsgatan | Pehr Forsskål | 1732-1763 |
| Hasselquistvägen | Fredrik Hasselquist | 1722-1752 |
| Kalmgatan | Pehr Kalm | 1716-1779 |
| Nathorstvägen | Alfred Gabriel Nathorst | 1850-1921 |
| Olaus Magnus väg | Olaus Magnus | 1490-1557 |
| Petrejusvägen | Petrus Petrejus | ca 1570-? |
| Solandergatan | Daniel Solander | 1733-1782 |
| Åkerbladsgatan | Johan David Åkerblad | 1763-1819 |
Au sud de la station de métro, les rues portent essentiellement des noms de localités du Västergötland.
Galerie
La rue Björnståhlsgatan dans les années 1940.
La rue Björnståhlsgatan en .
La rue Olaus Magnus väg.
La rue Björnståhlsgatan.
Annexes
- (sv) Cet article est partiellement ou en totalité issu de l’article de Wikipédia en suédois intitulé « Hammarbyhöjden » (voir la liste des auteurs).
Notes
- (sv) Sax (1989), p. 67.
- (sv) Sax (1989), p. 25.
- (sv) Sax (1989), p. 68.
- (sv) Sax (1989), p.49.
- (sv) Tidningen familjär. Septembre 2006.
- (sv) Stockholms tunnelbanor 1975 : teknisk beskrivning.
- (sv) Sax (1989), p. 105.
- (sv) Statistisk årsbok för Stockholm.
- (sv) Sax (1989), p. 181 et 183.
- (sv) Sax (1989), p. 213.
Bibliographie
- (sv) Ulrika Sax. Den vita staden: Hammarbyhöjden under femtio år. Stockholms stad. 1989. (ISBN 91-7031-009-2).
- Portail de l’architecture et de l’urbanisme
- Portail de Stockholm