Haus der Kunst
La Haus der Kunst (« Maison de l'Art ») est un musée allemand situé à Munich. Il est situé au 1, Prinzregentenstraße et au sud de l'Englischer Garten, le plus grand parc de Munich.

Histoire

Le bâtiment a été construit entre 1933 et 1937 pour remplacer le Palais des glaces, le principal espace d'exposition de Munich, détruit par un incendie en 1931. Il a été édifié sur les plans de l'architecte Paul Troost selon les canons de l'architecture du national-socialisme (étant décédé en 1934, c'est sa femme, Gerdy, également architecte, qui supervise la fin des travaux). Des mosaïques de plafond reprenant les motifs du NSDAP sont aujourd'hui encore visibles.
Le musée, qui s'appelait alors Haus der deutschen Kunst (« Maison de l'art allemand »), a ouvert en . Il conservait de grandes œuvres de l'histoire allemande. Son exposition inaugurale, la Große Deutsche Kunstausstellung (« Grande exposition d'art allemand »), condamne l'art moderne appelé Art dégénéré (« Entartete Kunst »). Les 15 et , cette exposition est complétée par le Tag der deutschen Kunst (« Journée de l'art allemand »), monumentale célébration de « 2000 ans de culture germanique », où est présenté un Parteiadler de 5 mètres de hauteur. Adolf Hitler, Hermann Göring, Joseph Goebbels, Heinrich Himmler, Albert Speer, Robert Ley, Reinhard Heydrich et beaucoup d'autres nazis de haut rang sont présents.

Après la fin de la Seconde Guerre mondiale, le bâtiment du musée est d'abord utilisé comme mess pour les officiers des forces d'occupation américaines ; à cette époque, le bâtiment est appelé « P1 », abréviation de son adresse. À partir de 1946, les salles du musée, désormais divisées en plusieurs petits espaces, servent pour des salons et des expositions artistiques. Certaines pièces du musée ont également été utilisées pour mettre en valeur des œuvres appartenant aux galeries d'art munichoises détruites pendant la guerre. En 2002, la Collection nationale d'art moderne et art contemporain est déplacée dans la Pinakothek der Moderne. Aujourd'hui, le musée n'a toujours pas de collection permanente et accueille des expositions temporaires et itinérantes. Elle a par exemple accueilli l'exposition présentant les pièces du tombeau de Toutânkhamon. Depuis 1983, un bâtiment du musée abrite une discothèque, le « P1 ».
Description du monument
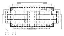
Le bâtiment est construit avec l'utilisation d'une symétrie stricte : technique du béton armé et de pierre pour l'intérieur du musée ; et du marbre pour l'extérieur. Le bâtiment a une longueur de 175 m et une largeur de 75 m ainsi qu'une hauteur de 30 m : ce qui montre que le musée est gigantesque. Les façades qui montrent vers la rue et sur le jardin sont constituées de portique de vingt colonnes et de deux piliers aux extrémités.

Le musée a une organisation intérieure exceptionnelle : la salle centrale "Ehrenhalle" servait aux discours (salle de représentation). Autour se trouvent les salles d'expositions. Toutes les salles sont dotées d'un équipement très modernes, quatre ascenseurs, de la climatisation, un grand éclairage zénithal (par le toit de la salle centrale), bunkers,...
Interprétation de l'œuvre
Le bâtiment a été utilisé comme édifice de propagande destiné à glorifier le régime nazi à travers une architecture monumentale et pour offrir un sanctuaire au vrai art allemand (art nazi). Il sert également à faire de Munich la "Hauptstadt der deutschen Kunst" (capitale de l'art allemand) avec d'autres édifices nazis dans la ville.
Les usages du monument
L'édifice a été utilisé comme musée de l'art allemand (exposition annuelle des productions artistiques contemporaines jusqu'en 1944 choisies par un jury auquel Hitler participe). À partir de 1946 le bâtiment est de nouveau utilisé comme musée d'art contemporain : la première exposition en 1946 fut de Picasso.
Notes et références
Sources
- (en) Cet article est partiellement ou en totalité issu de l’article de Wikipédia en anglais intitulé « Haus der Kunst » (voir la liste des auteurs).
Liens externes
- GDK Research, plate-forme pour la recherche d'images des Große Deutsche Kunstausstellungen 1937-1944
- Catalogues complets des Große Deutsche Kunstausstellungen 1937-1944
- Reconstruction virtuelle de la Haus der Deutschen Kunst
- Sites officiels : (en) hausderkunst.de/en et (de) hausderkunst.de
- Ressource relative aux beaux-arts :
- Portail du nazisme
- Portail des musées
- Portail de l’architecture et de l’urbanisme
- Portail de Munich