Villa romaine de Faragola
L'ancienne villa romaine de Faragola était une grande (au moins 1 200 m2) et luxueuse résidence située à 5 km de l'ancien Ausculum (Ascoli Satriano) dans l'actuelle province de Foggia. Les fouilles menées depuis 2001 ont révélé une partie du domaine avec des thermes et une salle à manger (cenatio).
| Villa romaine de Faragola | |
Vue arérienne | |
| Localisation | |
|---|---|
| Pays | |
| Province | Foggia |
| Région | Pouilles |
| Type | Villa romaine |
| Coordonnées | 41° 13′ 42″ nord, 15° 33′ 35″ est |
Elle connut sa plus grande taille entre les IVe et VIe siècles (Antiquité tardive), ce qui est inhabituel pour une villa romaine. Elle se trouvait le long du tracé de la Via Aurelia qui reliait Herdonia à Aeclanum (en), et la Via Appia avec la Via Traiana.
La villa est importante car elle montre la continuité de la vie aristocratique au milieu du Ve siècle, dans une période ailleurs difficile. et en relation avec les lettres de Quintus Aurelius Memmius Symmachus, lui-même propriétaire de villas dans le sud de l'Italie, et le témoignage de Sidoine Apollinaire. En plus d'offrir d'agréables vacances, le propriétaire les exploitait pour le mécénat, pour s'occuper de ses affaires et pour obtenir des revenus substantiels[1],[2].
Historique
La villa romaine, d'importance pour appartenir à une famille sénatoriale et peut-être possédée par une branche de la gens Cornelii selon une inscription, a été construite sur les vestiges d'une colonie daunienne des IVe et IIIe siècles av. J.-C. et d'une villa rustica des Ier et IIIe siècles[3].
La villa de l'Antiquité tardive a connu deux phases principales : la première des IIIe et IVe siècles avec un grand péristyle et un atrium, avec de nombreuses pièces disposées autour ; puis aux Ve et VIe siècles, fortement modifiée, réutilisant partiellement les pièces et espaces de la villa précédente, avec l'ajout de thermes, une spectaculaire salle à manger d'été (cenatio), de nombreuses pièces de service et une augmentation de la hauteur, avec des pièces d'habitation situées à l'étage supérieur, typique des modèles de la fin de l'Antiquité.
La villa témoigne que la région a connu une longue période de tranquillité et de sécurité relatives pendant la crise du troisième siècle et également au cours du siècle suivant, contrairement aux régions du centre-nord qui ont connu le déclin économique et l'exode rural. L'heureuse position centrale de cette région méditerranéenne et le bon réseau terrestre et maritime ont été des facteurs décisifs pour l'investissement de la riche aristocratie sénatoriale romaine et des notables locaux aux IVe et Ve siècles, ainsi que pour la détention des propriétés impériales. Ce territoire a connu un essor économique et une croissance significative de la population rurale, avec les nombreuses villas, fermes, villages, églises et diocèses ruraux identifiés par reconnaissance de surface et photographie aérienne. C'était l'une des dernières enclaves, entre les Ve et VIe siècles, de grands domaines et de développement économique lié à l'agriculture, à l'élevage, à l'artisanat et au commerce, tandis qu'ailleurs en Italie le système s'effondrait.
Il semble avoir été abandonné vers la seconde moitié du VIe siècle, suivi de phases d'occupation complexes qui ont duré au moins jusqu'au milieu de la seconde moitié du IXe siècle.Le site fut alors occupé par un village du Haut Moyen Âge (VIIe et VIIIe siècles), probablement identifiable à une seigneurie lombarde.
Archéologie

La zone, acquise en 1997 par la commune d'Ascoli Satriano, fait l'objet de fouilles archéologiques systématiques par l'Université de Foggia depuis 2003[4], sous la direction de Giuliano Volpe et Maria Turchino. En 2009, le site est partiellement ouvert au public (parc archéologique de Faragola), avec le musée de la cantine d'été (cenatio). Au cours des années suivantes, l'aménagement du musée a également concerné les thermes et certaines zones de service.
Dans la nuit du 6 au 7 septembre 2017, un incendie criminel a détruit l'intégralité de la toiture, endommageant une grande partie des structures de la villa et de ses décorations [5].
Le site archéologique
La villa des IIIe et IVe siècles

Les vestiges de la première phase de la villa ultérieure montrent qu'elle était grande et très luxueuse. Le noyau résidentiel était l'endroit où la grande salle à manger (cenatio) fut construite plus tard. Elle possédait un grand péristyle à portiques et les bains d'origine au sud-ouest. Le péristyle a une superficie totale (environ 1 225 m2) qui le place dans le groupe des villas plus grandes auxquelles appartiennent, par exemple, la Villa romaine du Casale de Piazza Armerina et la Villa Romana di Patti (en) de Patti en Sicile.
Le long du bras ouest du péristyle était probablement préexistante une série de pièces incorporées et restructurées en même temps que le jardin monumental avec surélévation des allées et déplacement de l'entrée des pièces sur le côté est, avec ouverture directe sur le portique. Un atrium était entouré d'un portique.
De nombreuses salles et certaines salles des bains furent abandonnées vers la seconde moitié du IVe siècle, tandis que d'autres, comme les thermes et le couloir oriental du grand péristyle, ont été intégrés à la nouvelle construction. Le tremblement de terre de 346 apr. J.-C. a endommagé de nombreux bâtiments dans la ville voisine de Herdonia et pourrait avoir endommagé la villa.
La villa des Ve et VIe siècles
.png.webp)
La villa a subi des modifications radicales au Ve siècle avec la construction de la luxueuse salle à manger (cenatio) et les bains ont été considérablement agrandis et embellis, avec un système de bains doubles. Plusieurs aires de services et un entrepôt ont été créés.
Les murs de l'ouest du péristyle et les pièces du côté est du portique furent démolis et rasés. De nombreuses salles et certaines salles des anciens bains furent réutilisées dans les grands bains des Ve et VIe siècles.
La villa a également gagné un étage supérieur, ce qui était une tendance typique de la construction de l'Antiquité tardive.
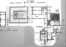
Les thermes


Les thermes sont l'un des plus grands thermes romains privés connus en Italie, avec une superficie de plus de 1 000 m2. La décoration des sols et des murs est comparable aux villas aristocratiques les plus luxueuses de la fin de l'Antiquité.
Le noyau originel datant peut-être des Ier et IIe siècles a fait l'objet de rénovations, d'agrandissements et de modifications successives au cours des IIIe et Ve siècles [6]. Il se compose de deux zones contiguës, avec des entrées indépendantes et des caractéristiques constructives et dimensionnelles différentes. Les Petits Bains au nord-ouest des Grands Bains semblent être plus récents et destinés à être une alternative ou un remplacement, peut-être en raison de problèmes techniques ou de leur taille considérable et une utilisation réduite.
La position centrale des bains pourrait être de créer une connexion avec la salle à manger à travers un long couloir, conçu comme un véritable parcours officiel.
Une pièce attenante aux bains, d'une superficie de 100 m2, est d'une superficie remarquable, et probablement une palestre, destinée à servir d'espace de réception et multifonctionnel, avec une mosaïque polychrome raffinée recouverte d'un large répertoire de motifs géométriques. Il était probablement utilisé pour le divertissement, les massages et peut-être pour la gymnastique. Le grand frigidarium était équipé de deux bassins et d'une piscine, avec des voûtes décorées de carreaux de mosaïque polychrome en pâte de verre et des décorations murales en opus sectile avec un socle en marbre cipollino et un sol en dalles lisses de marbre blanc avec un emblème central. Des mosaïques, des revêtements muraux en placage de marbre et en stuc avec des cadres de palmettes et d'ovoli caractérisent également les deux tepidarium, tandis que le marbre brèche de couleur rose est utilisé pour le sol du long caldarium rectangulaire et des deux sudatorium. Pour un raffinement extrême, des marbres blancs et clairs ont été utilisés pour le frigidarium, tandis que des marbres chauds et roses recouvraient le caldarium.
La cenatio


La grande salle à manger d'été (cenatio) de 128 m2, avec ses riches décorations sur les murs et le sol, avait pour but d'exalter le banquet en tant qu'événement important et de « mettre en valeur » le style de vie de l'aristocratie de l'Antiquité tardive. L'élite était obligée de recevoir des invités et d'afficher son statut social à travers le standard de ses maisons avec sa grandeur architecturale, afin de rencontrer des amis mais surtout de créer des liens politiques et d'afficher son statut social. Un dominus invitait souvent ses clients qui en retour lui apportaient un soutien politique.
Dans sa première phase, au début du Ve siècle, la cenatio possédait un sol en mosaïque semblable à celui des thermes adjacents. Vers le milieu du siècle, l'impressionnant stibadium, l'espace semi-circulaire en maçonnerie surélevé pouvant accueillir jusqu'à 7 convives, a été créé et le sol a été rénové.
La salle à manger avait un contact visuel direct avec le paysage environnant grâce à de grandes ouvertures sur les côtés longs avec l'utilisation de colonnes ou de piliers, soulignant la volonté d'en faire une sorte de belvédère luxueux pour les banquets à la campagne.
Autres pièces
Au sud de la cenatio se trouvaient des pièces utilisées comme entrepôts et garde-manger, ainsi que des latrines. D'autres pièces de l'étage supérieur étaient accessibles par un escalier dont il reste des vestiges visibles.
Au nord de la cenatio, a été découvert un autre bloc de pièces, avec divers espaces de service au rez-de-chaussée (cuisines, entrepôts) et probablement des habitations au premier étage, selon un modèle de construction typique de la fin de l'Antiquité.
À quelques dizaines de mètres de la cenatio se dressait un grand bâtiment, qui pourrait être un horreum, un grand entrepôt de céréales.
Galerie
Frigidarium.
Voir aussi
Notes et références
- Villa Faragola - Site archeologiavocidalpassato.com
- Oasi LaSalata - Site villaggituristicipuglia.it.
- A late roman villaat Faaragola - Site archeologia.unifg.it
- La découverte lors d'une campagne de fouilles dans les Pouilles - Site republica.it
- Incendie du site archéologiqie - Site bari.republica.it
- Villa romana di Faragola - Site romanoimpero.com
- (it) Cet article est partiellement ou en totalité issu de l’article de Wikipédia en italien intitulé « Villa di Faragola » (voir la liste des auteurs).
Bibliographie
- Giuliano Volpe, Giuliano De Felice, Maria Turchiano, Faragola (Ascoli Satriano). Una residenza aristocratica tardoantica e un villaggio altomedievale nella Valle del Carapelle: Foggia, 2004, Bari 2005.
- Giuliano Volpe, Giuliano De Felice, Maria Turchiano, Musiva e sectilia in una lussuosa residenza rurale dell’Apulia tardoantica: la villa di Faragola (Ascoli Satriano), in Musiva&Sectilia, I, 2004.
- Giuliano Volpe, Giuliano, Stibadium e convivium in una villa tardoantica (Faragola - Ascoli, Satriano), en M. Silvestrini, T. Spagnuolo Vigorita y G. Volpe (eds.), Studi in honore di Francesco Grelle. Bari 2006, p. 314–349.
- Giuliano De Felice, Maria Turchiano, La villa tardoantica di Faragola (Acoli, Satriano) in Apulia', en A. Chavarría, J. Arce, J. P. Brogiolo (eds), Villas tardoantiguas en el Mediterráneo Occidental (Anejos de AEspa XXXIX). Archivo Español de Arqueología, CSIC, Madrid, 2006.
- Giuliano Volpe, Maria Turchiano (a cura di), Faragola 1. Un insediamento rurale nella valle del Carapelle. Ricerche e studi, Edipuglia, Bari, 2009.
- Giuliano Volpe, Maria Turchiano, Faragola di Ascoli Satriano. Guida agli scavi archeologici, Claudio Grenzi Editore, 2010.
- Giuliano Volpe, Maria Turchiano, Giovanni De Venuto, Roberto Goffredo, L’insediamento altomedievale di Faragola: dinamiche insediative, assetti economici e cultura materiale tra VII e IX secolo, Tavolario Edizioni, Cimitile, 2012.
- Giuliano Volpe, Maria Turchiano, La villa tardoantica e l’abitato altomedievale di Faragola (Ascoli Satriano), in Mitteilungen des Deutschen Archäologischen Instituts, Römische Abteilung.
- G. Volpe, M. Turchiano, La villa tardoantica di Faragola (Ascoli Satriano) Macerata, 2013.2
- Maria Turchiano, Giuliano Volpe, Faragola e l’eredità delle ville in Italia meridionale tra Tardoantico e Altomedioevo, in Anales de Arquologìa Cordobesa, 2016.
- Portail de l’architecture et de l’urbanisme
- Portail de la Rome antique
- Portail des Pouilles
- Portail de l’archéologie


