Pergame
Pergame (en grec Πέργαμον / Pérgamon, littéralement « citadelle », en latin Pergamum) est une ancienne ville d'Asie Mineure, en Éolide, située au nord de Smyrne, au confluent du Caïque et du Cétios, à environ 25 km de la mer Égée.
| Pergame (grc) Πέργαμον | |||
Maquette de la ville antique de Pergame, Staatliche Museen, Berlin. | |||
| Localisation | |||
|---|---|---|---|
| Pays | |||
| Province | Izmir | ||
| District | Bergama | ||
| Régions antiques | Mysie | ||
| Protection | |||
| Coordonnées | 39° 07′ 08″ nord, 27° 09′ 56″ est | ||
| Géolocalisation sur la carte : Turquie
Géolocalisation sur la carte : province d'İzmir
| |||
Pergame et son paysage culturel à multiples strates *
| |
| Coordonnées | 39° 07′ 00″ nord, 27° 11′ 00″ est |
|---|---|
| Pays | |
| Type | Culturel |
| Critères | (i) (ii) (iii) (iv) (vi) |
| Numéro d’identification |
1457 |
| Région | Europe et Amérique du Nord ** |
| Année d’inscription | 2014 (38e session) |
| * Descriptif officiel UNESCO ** Classification UNESCO |
|


À l'heure actuelle, son nom est Bergama (Turquie, province d'Izmir).
- Pour la ville moderne et le district du même nom, voir l'article Bergama.
Histoire
Le peuplement de Pergame est attesté dès le VIIIe siècle av. J.-C. Bien que la tradition la dise fondée par des Grecs d'Arcadie, il est peu probable qu'elle ait été une colonie grecque, vu son éloignement de la mer. Le roi de Perse la donne au Spartiate Démarate vers Une autre mention attestée de la ville remonte à , date à laquelle elle est gouvernée par un tyran grec.
Le royaume de Pergame
Pergame émerge après la mort d'Alexandre le Grand, en Le diadoque Lysimaque, un de ses généraux, y a entreposé ses trésors sous la garde de l'eunuque Philétairos. Celui-ci s'empare de Pergame et fonde en l'État Pergamien. Il règne d'abord sous la tutelle des Séleucides. Profitant de la lutte entre ces derniers, son neveu et fils adoptif Eumène Ier, véritable fondateur de la dynastie des Attalides, vainc Antiochos Ier en et assure ainsi l'indépendance de Pergame, consolidée par son successeur Attale Ier Sôter, premier de la dynastie à prendre le titre de roi. Il s'allie avec les Romains au cours de la première guerre macédonienne, contre Philippe V de Macédoine. Après la victoire romaine de Magnésie du Sipyle en , par la paix d'Apamée, Pergame reçoit de Rome une grande partie de l'Asie mineure. Par la victoire d'Attale Ier Sôter contre les Galates (des Celtes d'Anatolie centrale), Pergame étend son territoire de l'Hellespont à la Carie et l'Ionie, à la Cappadoce et à la partie occidentale de la Phrygie. C'est alors un royaume continental, avec un seul port important, Attalia, car les ports grecs de la mer Égée gardent leur indépendance.
L'apogée de Pergame est atteint sous Eumène II (roi à partir de , mort en ). La ville possède une agriculture et une industrie prospères : l'industrie fabrique des tissus, de la céramique et, surtout, des parchemins (grec ancien : περγαμηνή / pergamênế, qui veut dire « peau de Pergame », devenu en français « parchemin »), dont l'industrie s'est développée après l'interdiction de Ptolémée V, jaloux de la bibliothèque de Pergame, d'exporter des papyrus égyptiens vers Pergame. Grand bâtisseur, Eumène II agrandit la ville, consolide les fortifications, édifie le Grand Autel (actuellement au Pergamonmuseum de Berlin) et le temple d'Athéna, de nombreux gymnases, et une grande bibliothèque. Il acquiert des sculptures et protège Delphes. À cette époque, Pergame est à la fois l'alliée de Rome et un promoteur de l'hellénisme en Asie Mineure pour contrebalancer cette alliance génératrice d'inimitiés de la part des villes grecques. Elle devient l'un des grands centres de la culture hellénistique, avec Athènes et Alexandrie. Elle attire de nombreux sculpteurs et philosophes.

Le dernier souverain attalide, Attale III ( à ), sans héritier, choisit par testament Rome comme exécuteur testamentaire, en , lui laissant le choix de trouver le meilleur successeur. Le Sénat romain préfère conserver l'administration du riche royaume, dont il fait la province d'Asie. Sous gouvernement romain, la prospérité et l'expansion de Pergame continuent.
Au IIe siècle apr. J.-C., elle connaît même un second apogée, avec l'édification de temples, dont le temple des dieux égyptiens, dit « Basilique rouge » (Kızıl Avlu). Le sanctuaire d'Asclépios devient un centre médical d'une grande renommée. C'est la patrie du grand médecin Galien.
À la fin de ce même IIe siècle, Pergame se convertit au christianisme. Le temple de Sérapis, dans le sanctuaire des dieux égyptiens, est transformé en église chrétienne ; elle est citée dans l'Apocalypse parmi les sept Églises d'Asie[1]. Les chrétiens de la ville sont mis en garde contre les tenants du nicolaïsme[2]. La ville connaît ensuite le déclin de l'Empire romain.
En 716, elle est conquise par les Arabes, puis est reprise par les Byzantins et passe sous domination ottomane au XIVe siècle. Cette ville provinciale existe toujours, sous le nom de Bergama.
Liste des rois de Pergame de à
- – : Lysimaque, roi de Thrace
- – : Philétaire, dynaste
- – : Eumène Ier, dynaste
- – : Attale Ier Sôter, dynaste puis roi en
- – : Eumène II, Sôter
- – : Attale II, Philadelphe
- – : Attale III, Philometor
- – : Eumène III, Aristonicos
La ville à son apogée au IIe siècle av. J.-C.

Pergame, construite sur une hauteur (335 m), est la superposition de trois villes, réunies les unes aux autres par des escaliers, avec des belvédères et des terrasses supportant des portiques à deux étages. Dans la ville haute se trouvent les bâtiments administratifs (agora, palais, arsenal, bibliothèque, théâtre, temples de Dionysos, d’Athéna Polias, Grand Autel dit Autel de Zeus) et dans la ville moyenne un magnifique gymnase, les temples de Déméter et d’Héra Basileia, le Prytanée. La ville basse constitue le centre commercial.
La ville est au centre d’un riche terroir (blé, oliviers, vignes, élevage). L’industrie est diversifiée (parfums, draps fins, parchemins). Sa bibliothèque, riche de 200 000 volumes, rivalise avec celle d'Alexandrie[3]. Le palais royal renferme un véritable musée de sculptures. Elle est fameuse pour son école de rhéteurs, ses ateliers de sculpteurs. Ses artistes dionysiaques en font le principal foyer de l’art dramatique.
La bibliothèque de Pergame

La bibliothèque de Pergame est une des plus importantes bibliothèques de l'Antiquité. Elle n'était dépassée, dans le monde grec, que par celle d'Alexandrie.
Attale Ier (-), roi de Pergame, protecteur des arts et des sciences, fit venir dans sa ville de nombreux savants[4]. Il a peut-être lancé lui-même le projet d'une bibliothèque, mais c'est son successeur, Eumène II (-), qui l'établit sur l'acropole, probablement au-dessus la stoa (le portique) nord du sanctuaire d'Athéna, auquel elle était associée[5].
Archéologie
Acropole haute
![]() Carte historique de l'acropole de Pergame (1880). |
![]() Monuments de l'acropole de Pergame. |

Autel de Pergame


La construction la plus prestigieuse de la ville antique est l'autel monumental du début du IIe siècle av. J.-C., probablement dédié à Zeus ou à Athéna, dont les fondations sont toujours visibles au sommet de l'acropole, dominant le théâtre, la ville et les autres temples de Pergame. Les vestiges de la frise du grand autel de Pergame ont été recueillis par les archéologues allemands à la fin du XIXe siècle, qui les ont réassemblés et reconstitués dans toute la mesure du possible. Ils sont conservés et exposés au musée de Pergame, à Berlin (fermé jusqu'en 2027 pour une nouvelle configuration).
Pour la construction de l'autel, la colline a été aplanie et aménagée en terrasses, afin d'harmoniser l'orientation du monument avec le temple d'Athéna voisin. La base, d'environ 36 × 33 m, était ornée à l'extérieur d'une représentation détaillée en haut-relief de la Gigantomachie, la bataille mythique entre les dieux de l'Olympe et les Géants. La frise, d'une hauteur de 2,30 m et d'une longueur de 113 m, est la plus longue frise de l’Antiquité après celle du Parthénon. Un escalier monumental de 20 m de large, du côté ouest, mène à la structure supérieure, formée d'une vaste cour ceinte d'une colonnade dont les murs intérieurs étaient ornés d'une seconde frise illustrant la vie de Télèphe, fils d'Héraclès et fondateur légendaire de la cité. Cette frise, d'une hauteur d'environ 1,60 m, est donc de dimensions nettement moindres que la frise extérieure[6],[7].
Temple d'Athéna

Le sanctuaire d'Athéna, situé sur la terrasse de l'Acropole juste au-dessus du théâtre, entre le temple de Trajan et le Grand Autel, est le plus ancien temple de Pergame, du IVe siècle av. J.-C. C'était un temple périptère dorique orienté au nord, à 6 × 10 colonnes, avec une cella divisée en deux salles. Les fondations, d'environ 12,70 × 21,80 m, sont encore visibles aujourd'hui. Les colonnes mesuraient environ 5,25 m de haut et 0,75 m de diamètre, la distance entre les colonnes étant de 1,62 m : la colonnade était donc très légère pour un temple de cette époque. Cela correspond à la forme des triglyphes, qui se présentent habituellement en une séquence de deux triglyphes et deux métopes, mais sont ici composés de trois triglyphes et trois métopes. Les colonnes sont non cannelées et non ravalées, sans qu'on sache clairement si cela est dû à la négligence ou à l'inachèvement.
Une stoa à deux niveaux, entourant le temple sur trois côtés, a été ajoutée sous Eumène II, ainsi que le propylée de l'angle sud-est, qui se trouve maintenant, en grande partie reconstitué, au musée de Pergame à Berlin. La balustrade du niveau supérieur des portiques est et nord était décorée de reliefs représentant des armes qui commémoraient les victoires d'Eumène II. La construction mêlait des colonnes ioniques et des triglyphes doriques (dont il reste cinq triglyphes et métopes). Dans la zone du sanctuaire, Attale Ier et Eumène II ont construit des monuments commémorant leurs victoires, notamment sur les Gaulois. La stoa nord semble avoir abrité la bibliothèque de Pergame[8].
Temple de Trajan

Au point culminant de l'acropole se dressait le temple de Trajan et de Zeus Philios. Au milieu d'une terrasse établie sur une structure en voûte, le temple s'élevait sur un podium d'une hauteur de 2,90 m. Le temple lui-même était d'ordre corinthien, de 18 mètres de large, de 6 × 9 colonnes et deux colonnes in antis.
Au nord, la zone était fermée par une haute stoa, tandis que sur les côtés ouest et est, elle était entourée de simples murs de pierre de taille, jusqu'à ce que, sous le règne d'Hadrien, d'autres stoas soient insérées.
Les fouilles de la cella ont révélé des fragments de statues de Trajan et d'Hadrien, et de la statue de culte de Zeus Philios[9].
Théâtre

Le théâtre, bien conservé, est lui aussi rattaché à la période hellénistique, sans qu'il soit possible de donner une date précise pour sa construction. Il pouvait accueillir environ 10 000 spectateurs, sur 78 rangées de gradins. D'une hauteur de 36 mètres, c'est le plus abrupt de tous les théâtres antiques. Le koilon (ensemble des gradins) est divisé horizontalement par deux allées (diazomata), et verticalement par des escaliers de 0,75 m de large en sept secteurs dans la partie basse et six dans les parties du milieu et du haut[10],[11].
Terrasse du théâtre et temple de Dionysos

Au-dessous du théâtre s'étend une longue terrasse de 247 × 17,4 m, reposant sur un haut mur de soutènement et encadrée par une stoa (portique). Venant de l'agora supérieure, on pouvait y accéder par un bâtiment d'entrée situé au sud.
À la fin du IIIe siècle av. J.-C., les Attalides firent de Dionysos le dieu tutélaire de leur dynastie[12]. Au début du IIe siècle av. J.-C., Eumène II fit ériger un temple de Dionysos à l'extrémité nord et à 4,50 m au-dessus du niveau de la terrasse du théâtre. Ce temple a été conçu comme un édifice prostyle d'ordre ionique en marbre, tétrastyle avec deux colonnes en arrière-plan donnant accès au pronaos[13]. Seuls quelques vestiges de la phase de construction hellénistique ont été conservés. La plus grande partie des matériaux visibles résultent d'une rénovation du temple, probablement sous Caracalla, peut-être aussi sous Hadrien[14].

Acropole basse
À mi-hauteur de la colline de l'Acropole se trouvent les vestiges d'un sanctuaire de Déméter, d'un temple d'Héra, d'un gymnase et? plus bas, au pied de la colline, d'une seconde agora (« agora inférieure »), zone fouillée par Wilhelm Dörpfeld et Alexander Conze de 1900 à 1913.
Sanctuaire de Déméter

Le grand sanctuaire de Déméter, d'environ 50 × 110 m, était situé sur la corniche médiane au sud de la colline de l'acropole. Le sanctuaire lui-même est ancien : son utilisation remonte au IVe siècle av. J.-C.
On entrait dans le sanctuaire par un propylée, à l'est, qui s'ouvrait sur une cour entourée de portiques sur trois côtés. Au milieu de la moitié ouest de la cour s'élevait le temple ionique de Déméter, un simple temple in antis de 6,45 × 12,70 m, qui, à l'époque d'Antonin le Pieux, reçut un vestibule corinthien. Le bâtiment hellénistique, construit à partir de matériaux locaux, avait une frise de marbre ornée de bucranes et de guirlandes. À environ 9,50 m devant le bâtiment orienté à l'est se trouvait un autel d'environ 7 × 2,30 m. Le temple et l'autel ont été construits par Philétairos et son frère Eumène en l'honneur de leur mère la déesse Boa.
Dans la cour est, devant la salle à colonnes nord, ont été aménagés plus d'une dizaine de gradins pour les participants aux Mystères de Déméter. Environ 800 mystes pouvaient y prendre place[15].
Temple d'Héra

Le sanctuaire d'Héra Basiléia (« la reine ») se trouve au nord de la terrasse supérieure du gymnase. Sa structure repose sur deux terrasses parallèles : celle du sud à environ 107,4 m au-dessus du niveau de la mer et celle du nord à environ 109,8 m au-dessus du niveau de la mer. Le temple d'Héra était établi au milieu de la terrasse supérieure, face au sud, avec une exèdre de 6 m de large à l'ouest et un bâtiment dont la fonction est très peu claire à l'est. Les deux terrasses étaient reliées par un escalier de onze marches d'environ 7,5 m de large, descendant de l'avant du temple.
Le temple mesurait environ 7 × 12 m. Il reposait sur une fondation à trois marches. C'était un temple prostyle tétrastyle dorique, avec trois triglyphes et métopes pour chaque travée de l'entablement. Tous les autres bâtiments du sanctuaire étaient en trachyte, mais la partie visible du temple était en marbre ou du moins avait un revêtement en marbre. Une base, à l'intérieur de la cella, soutenait trois statues de culte.
Les restes de l'inscription sur l'architrave indiquent que le bâtiment était le temple d'Héra Basiléia et qu'il a été érigé par Attale II[16].
Gymnase
Un grand gymnase a été construit au IIe siècle av. J.-C. sur le côté sud de l'Acropole. Il se composait de trois terrasses, avec l'entrée principale à l'angle sud-est de la terrasse la plus basse.
La terrasse la plus basse et la plus au sud est de petites dimensions, presque exempte de bâtiments. Ce gymnase inférieur a été identifié comme celui des garçons[17].
La terrasse du milieu mesure environ 250 m de long et 70 m de large au centre. Sur son côté nord se trouvait une salle à deux étages. La partie est de la terrasse portait un petit temple prostyle d'ordre corinthien[18]. Un stade couvert, communément appelé stade souterrain, est situé entre la terrasse moyenne et la terrasse supérieure[19].
La terrasse supérieure s'étend sur 150 × 70 m, ce qui en fait la plus grande des trois terrasses. Elle se composait d'une cour entourée de stoas et d'autres structures, mesurant environ 36 × 74 m. Ce complexe, identifié comme une palestre, comportait une salle de conférences en forme de théâtre au-delà de la stoa nord, probablement d'époque romaine, et une grande salle de banquets au centre. D'autres salles de fonctions incertaines étaient accessibles depuis les stoas. À l'ouest se trouvait un temple ionique in antis exposé au sud qui constituait le sanctuaire central du gymnase. La zone orientale a laissé place à un complexe thermal à l'époque romaine. D'autres bains romains ont été construits à l'ouest du temple ionique[20].
Cour rouge et pont romain sur le Sélinus


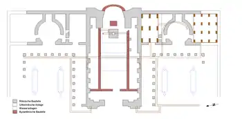
La Basilique rouge ou Cour rouge (en turc : Kızıl Avlu) est un temple romain monumental dont les ruines imposantes en briques rouges dominent le centre de la ville actuelle de Pergame. Le temple a probablement été construit du temps d'Hadrien, pour le culte des dieux égyptiens Isis, Sérapis, peut-être Osiris, et aussi d'autres dieux mineurs, à qui peut-être était dédiée une paire de rotondes annexes pratiquement intactes, de part et d'autre du temple principal.

Les parties romaines sont en gris, les ajouts d'époque byzantine en rouge ; les installations souterraines sont en bistre et les bassins en bleu.
Bien que le bâtiment lui-même soit d'une taille immense, il ne s'agit que d'une partie d'un complexe sacré beaucoup plus vaste, entouré de hauts murs, comparable à celui du temple colossal de Jupiter à Baalbek.
L'ensemble du complexe a été construit directement au-dessus de la rivière Sélinus, ce qui constitue un exploit technique : la construction d'un immense pont d'une largeur de 196 mètres de largeur, unique en son genre durant toute l'Antiquité, a permis de canaliser la rivière en un double tunnel traversant en diagonale l'esplanade du temple. Le pont-tunnel romain de Pergame tient toujours aujourd'hui, soutenant des bâtiments modernes et même le trafic des véhicules.
Une autre série de tunnels et de chambres se trouve sous le temple principal, le reliant aux rotondes latérales et donnant un accès privé à différentes zones du complexe. Divers bassins et canaux de drainage situés sous le temple principal ont peut-être servi à des reconstitutions symboliques de la crue du Nil.
Le temple a été converti par les Byzantins en une église chrétienne dédiée à saint Jean, qui fut ensuite détruite et abandonnée. De nos jours, on peut visiter les ruines du temple principal et l’une des rotondes latérales, tandis que l’autre rotonde (au nord) est utilisée comme une petite mosquée.
Basilique et rotonde nord.
Plan d'ensemble avec le pont sous l'esplanade.
Entrée des deux canalisations du pont, au nord-ouest.
Sanctuaire d'Asclépios


Le sanctuaire d'Asclépios (ou Asclépiéion), le dieu guérisseur, se trouve adossé à une colline, à 3 km au sud-ouest de l'Acropole, à laquelle il était relié par une voie sacrée bordée d'une colonnade. Les patients venaient s'y faire soigner sous des portiques d'incubation et d'autres bâtiments organisés autour d'une source sacrée. Comme dans tous les autres sanctuaires d'Asclépios, ils espéraient être visités dans leurs rêves par le dieu Asclépios, censé leur apporter la guérison. Galien, médecin personnel de l'empereur Marc-Aurèle, a exercé à l'Asclépiéion de Pergame durant de nombreuses années.
Le site archéologique conserve un théâtre romain, des portiques (stoa nord et sud), le temple d'Asclépios, ainsi qu'un centre de traitement circulaire parfois appelé temple de Télesphore.

Notes et références
- Les sept Églises d'Asie sont Éphèse, Smyrne, Pergame, Thyatire, Sardes, Philadelphie, et Laodicée. Voir l'Apocalypse 1,11.
- Apocalypse 2,12-23.
- Véronique Boudon-Millot, Galien de Pergame, Les Belles Lettres, , 404 p.
- (en) Lionel Casson, Libraries in the Ancient World, Yale University Press, , 177 p. (ISBN 978-0-300-08809-0, OCLC 952733520, lire en ligne), pp. 48-49.
- Harry H. Gamble (trad. Pascale Renaud-Grosbras), Livres et lecteurs au premier temps du christianisme : Usage et production des premiers textes chrétiens antiques, Genève, Labor et Fides, 355 p., p. 241.
- Wolf-Dieter Heilmeyer (ed.), Der Pergamonaltar. Die neue Präsentation nach Restaurierung des Telephosfrieses. Wasmuth, Tübingen 1997, (ISBN 3-8030-1045-4); Huberta Heres & Volker Kästner: Der Pergamonaltar. Zabern, Mainz 2004 (ISBN 3-8053-3307-2).
- Tucker, p. 28–29.
- Altertümer von Pergamon. II; Gottfried Gruben: Die Tempel der Griechen. 3. Auflage. Hirmer, Munich 1980, p. 425–429.
- Jens Rohmann, Die Kapitellproduktion der römischen Kaiserzeit in Pergamon. W. de Gruyter, Berlin – New York 1998, (ISBN 3-11-015555-9), p. 8–38 (Pergamenische Forschungen. Bd. 10); Altertümer von Pergamon. V 2; älterer Forschungsstand bei Gottfried Gruben: Die Tempel der Griechen. 3. Auflage. Hirmer, München 1980, p. 434–435.
- Altertümer von Pergamon. IV; Gottfried Gruben: Die Tempel der Griechen. 3rd edition. Hirmer, München 1980, pp. 439–440.
- accessed September 24, 20.07
- Helmut Müller: Ein neues hellenistisches Weihepigramm aus Pergamon. In: Chiron 1989, S. 539–553.
- Wolfgang Radt: Pergamon: Geschichte und Bauten einer antiken Metropole. Darmstadt 1999, S. 189.
- Wolfgang Radt: Pergamon: Geschichte und Bauten einer antiken Metropole. Darmstadt 2005, S. 190.
- Zum Demeterheiligtum: Altertümer von Pergamon. XIII; älterer Forschungsstand: Gottfried Gruben: Die Tempel der Griechen. 3. Auflage. Hirmer, München 1980, S. 437–440.
- Zum Heraheiligtum: Altertümer von Pergamon. VI, p. 102–110, Tafeln I–-II, IV–V, VI–VII, VIII, X–XI, XVIII, XXXII, XXXIII, XXXIV, XXXV.
- On the Lower Terrace: Altertümer von Pergamon. VI, p. 5–6, 19–27.
- Altertümer von Pergamon. VI, pp. 40–43.
- On the Middle gymnasium: Altertümer von Pergamon. VI, p. 5, 28–43.
- On the upper terrace: Altertümer von Pergamon. VI, p. 4, 43–79.
Annexes
Bibliographie
- Le grand Mourre, dictionnaire encyclopédique d'histoire (ISBN 2-04-006517-2)
- (de) Klaus Grewe et Ünal Özis, « Die antiken Flußüberbauungen von Pergamon und Nysa (Türkei) », Antike Welt, vol. 25, no 4, , p. 348–352
- Helmut Halfmann Ephèse et Pergame. Urbanisme et commanditaires en Asie mineure romaine, Bordeaux, Ausonius, Scripta Antiqua 11, 2004, 148 p. (ISBN 2-910023-55-9)
- Hansen, Esther V. (1971). The Attalids of Pergamon. Ithaca, New York: Cornell University Press; London: Cornell University Press Ltd. (ISBN 0-8014-0615-3)
- Kekeç, Tevhit. (1989). Pergamon. Istanbul, Turkey: Hitit Color. (ISBN 9789757487012)
- Kosmetatou, Elizabeth (2003) "The Attalids of Pergamon", in Andrew Erskine, ed., A Companion to the Hellenistic World. Oxford: Blackwell: p. 159–174. (ISBN 1-4051-3278-7)
- McEvedy, Colin (2012). Cities of the Classical World. Penguin Global
- Nagy, Gregory (1998). "The Library of Pergamon as a Classical Model", in Helmut Koester, ed., Pergamon: Citadel of the Gods. Harrisburg PA: Trinity Press International: 185-232
- Nagy, Gregory (2007). "The Idea of the Library as a Classical Model for European Culture", http://chs.harvard.edu/publications.sec/online_print_books.ssp/. Center for Hellenic Studies
- Jack Tucker, Innocents Return Abroad : Exploring Ancient Sites in Western Turkey, , 374 p. (ISBN 978-1-4783-4358-5)
- Xenophon. Xenophon in Seven Volumes, Carleton L. Brownson. Harvard University Press, Cambridge, MA; William Heinemann, Ltd., London. vol. 1. 1918, vol. 2. 1921, vol 3. 1922
- Ventroux, Olivier, Pergame. Les élites d'une ancienne capitale royale à l'époque romaine, Presses universitaires de Rennes, 2017, Rennes, (ISBN 978-2-7535-5524-2)
Télévision
- Un épisode des émissions du commandant Cousteau, intitulé Le Butin de Pergame sauvé des eaux, est consacré à l’épave d'Anticythère, qui fit naufrage en provenance de Pergame.
Articles connexes
- Grand autel de Pergame
- Allianoi
- Théâtre de Pergame
- Autres établissements chrétiens du premier siècle : Antioche, Tarse, Derbé, Pergé, Lystre, Antioche de Pisidie, Hiérapolis, Éphèse, Milet, Iconium, Troas
Plans : liens externes
- (en) « Pergamon acropolis : General Directorate for Cultural Assets and Museums », sur www.turkishmuseums.com (consulté le ) avec un plan simple et l'indication des monuments.
- (en) « Pergamon Digital Map », sur Pergamon Micro-Region (consulté le ) : The 1:2.000 map (A0) shows the ancient city hill with its immediate surroundings. téléchargeable en PDF, indication des monuments.
- Portail de la Grèce antique
- Portail de la Turquie
- Portail de l’archéologie
- Portail du patrimoine mondial
- Portail du Monde hellénistique




